Magasin - Local commercial en Vente

€ 320 000
1
78 m²
1

Remarque

Annonce mise à jour le 25/01/2026
Description

référence: 5181

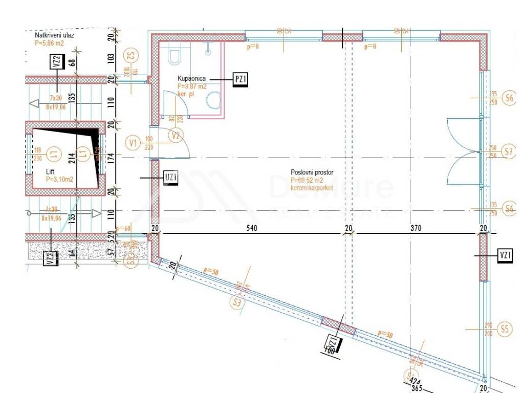
U prodaji je poslovni prostor u kvalitetnoj novogradnji na odličnoj lokaciji u gradu Zadru, na području Belafuže.
Radi se o projektu poslovno-stambene zgrade u izgradnji, koja se sastoji od jednog poslovnog prostora i pet komfornih stanova.
Zgrada ima 4 etaže i to: podrum, prizemlje, prvi i drugi kat, a sve etaže povezane su liftom i stubištem.
Predviđeni rok za završetak građevinskih radova je do kraja 2026. godine.
 
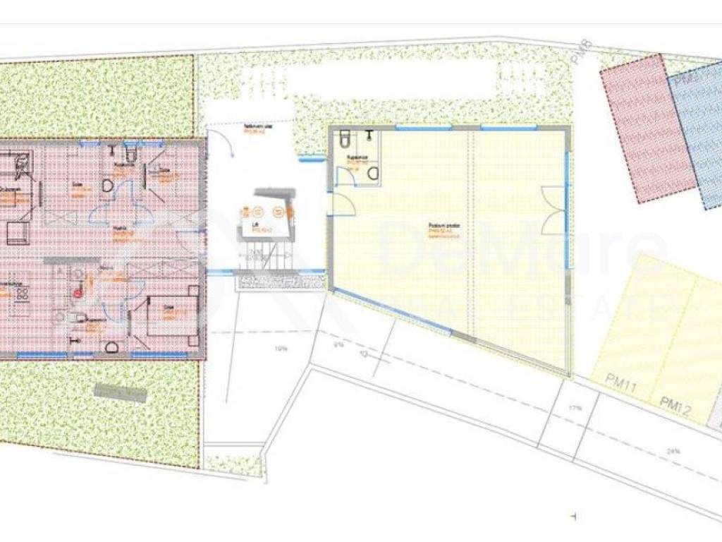
Poslovni prostor nalazi se u prizemlju zgrade, a sastoji se od prostorije površine 69.52 m2 koja je ispunjena prirodnim svjetlom zbog velikih staklenih stijena, i sanitarnog čvora / kupaonice 3,87 m2.
Na okućnici zgrade nalaze se i dva parkirna mjesta (2 x 13,75 m2) koja su uključena u cijenu.
Ukupna obračunska korisna vrijednost površine prostora s pripadcima iznosi 78,89 m2.
 
KARAKTERISTIKE ZGRADE:
- Armirano-betonska konstrukcija
- Kvalitetna PVC stolarija sa ugrađenim komarnicima i roletama na elektropogon
- Klimatizacijski uređaj / Multi-Split sistem 
- Sanitarije renomiranih proizvođača, kvalitetna keramika 
- Protuprovalna / Protupožarna ulazna vrata
 
Prostor je orijenitiran prema ulici, a ulaz je odvojen od ulaza za stambene jedinice. 
Lokacija je odlična zbog urbanog razvoja ovog dijela grada, i planirane izgradnje nekoliko stambenih objekata, pa će s obizom na to nekretnine na ovoj lokaciji povećavati svoju buduću tržišnu vrijednost.
 
PREDNOST kod kupnje ove nekretnine :
Prodavatelj je pravna osoba u sustavu PDV-a, pa stoga kupac NE PLAĆA porez na promet nekretnina!
 
Za obilazak lokacije / nekretnine i sve ostale informacije slobodno nas kontaktirajte!
 
LOKACIJA:
Zgrada je na odličnoj poziciji u blizini svih sadržaja, u mirnom dijelu naselja okružena modernim novim zgradama. Udaljenost do mora je 1,2 km (zračne linije), a do centra grada je 2 km.
 
 
 
Si vous voulez en savoir plus, vous pouvez parler à Ivo Strenja.
Caractéristiques
Transaction
Vente
Superficie
78 m²
Chambres/pièces
1 chambre/pièce, 1 bain/douche
Étages du bâtiment
2
Box, places stationnement
2 dans garage/box, 2 place(s) de parking
Informations sur les prix
Prix
€ 320 000
Prix au m²
4 103 €/m²
Détails des coûts
Charges de copropriété
Aucun frais de copropriété
Efficacité énergétique
  • État

    Nouveau / En construction
  • Certification énergétique

    Non classifiable
Découvrez chaque recoin de la propriété
+6
Options additionnelles

Contacter l'annonceur

Ou