1/12


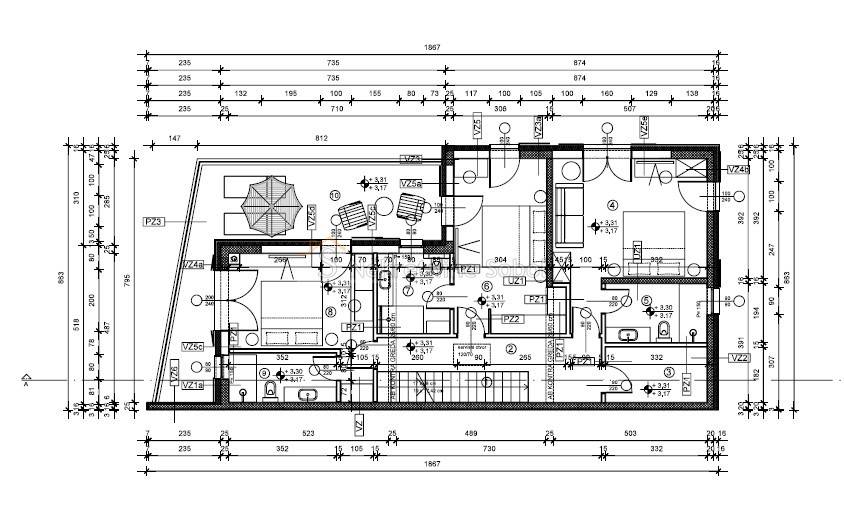
Maison individuelle 268 m², neuve, Cres
€ 1 545 000
Annonce mise à jour le 30/10/2025
Description
référence: 3869
newbuilding - villa with swimming pool and sea view.
Caractéristiques
- Typologie
- Maison individuelle | Propriété de luxe
- Transaction
- Vente
- Ascenseur
- Non
- Superficie
- 268 m²
- Chambres/pièces
- 4
- Chambres
- 4
- Bains/douches
- 3+
- Balcon
- Non
- Terrasse
- Oui
- Chauffage
- Individuel, avec air
- Climatisation
- Autonome
Autres caractéristiques
Informations sur les prix
- Prix
- € 1 545 000
- Prix au m²
- 5 765 €/m²
Efficacité énergétique
Découvrez chaque recoin de la propriété
Options additionnelles