map icon

Villa indépendante 185 m², bon état, Labin

Labin
€ 510 000
5+
185 m²
3
Terrasse
Meublé

Remarque

Annonce mise à jour le 15/02/2026
Description

référence: 992-1

Prodaje se luksuzna vila sa bazenom u blizini Labina, Istra.
Kuća je površine 185 m2, prizemlje + kat, nalazi se na uređenoj okućnici od 1.207 m2.
Sastoji se od dnevnog boravka, 4 spavaće sobe, 3 kupaone, velika terasa oko cijele kuće, sve luksuzno uređeno.
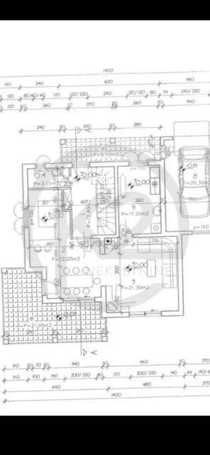
Prizemlje:
-Hodnik
12,40 m2
-Kuhinj i blag.
22,05 m2
-Dnevni boravak
21,30 m2
-Kupaona
3,25 m2
-Radna soba
11,20 m2
UKUPNO:
70,20 m2
-Natkr. terasa
21,05 m2
-Natkr. Ulaz
9,10 m2
-Garaža
20,30 m2
SVEUKUPNO:
120,65 m2

Kat:
-stepenište
16,70 m2
-Soba 1
11,20 m2
-Soba 2
10,40 m2
-Soba 3
14,35 m2
-Kupaona 1
3,20 m2
-Kupaona 2
5,45 m2
UKUPNO:
61,30 m2
-Natkr. tersa
6,55 m2
SVEUKUPNO:
67,85 m2
STAMB. NETTO POV.
131,50 m2
POVR. TERASA
36,70 m2
POVR: GARAŽE
20,30 m2
SVEUKUPNO:
188,50 m2

Kuća je sagrađena 2012. g., izuzetno kvalitetno, konstrukcija opeka i armirani beton, krovna konstrukcija od betonskih gredica i ciglenih tavelica, na podu hrastov parket, prvoklasne keramičke pločice, ulaz u kuću i okolno opločenje obloženo kamenim pločama tipa Kanfanar. Stolarija drvena, tipska sa IZO staklima.
Uz kuću je smještena garaža i 2 parkirna mjesta.
Dokumentacija uredna, moguća kupnja kreditom banke.
Dodatne informacije na +385 91 518 4526, Vesna.
K2 NEKRETNINE
QBAT STUDIO d.o.o.
Si vous voulez en savoir plus, vous pouvez parler à Vesna Čizmar.
Caractéristiques
Typologie
Villa indépendante
Transaction
Vente
Superficie
185 m²
Chambres/pièces
5+
Chambres
4
Bains/douches
3
Meublé
Oui
Terrasse
Oui
Climatisation
Centralisé, froid/chaud
Autres caractéristiques
  • Piscine
  • Système TV avec parabole satellitaire
Informations sur les prix
Prix
€ 510 000
Prix au m²
2 757 €/m²
Efficacité énergétique
  • Année de construction

    2012
  • État

    Bon / Habitable
  • Climatisation

    Centralisé, froid/chaud
  • Certification énergétique

    Non classifiable
Découvrez chaque recoin de la propriété
+18
Options additionnelles

Contacter l'annonceur

Ou