Maison individuelle 166 m², neuve, Luka, Poreč

€ 550 000
5+
166 m²
3+
Terrasse

Remarque

Annonce mise à jour le 14/03/2026
Description

This description has been translated automatically and may not be accurate

référence: 2365-1

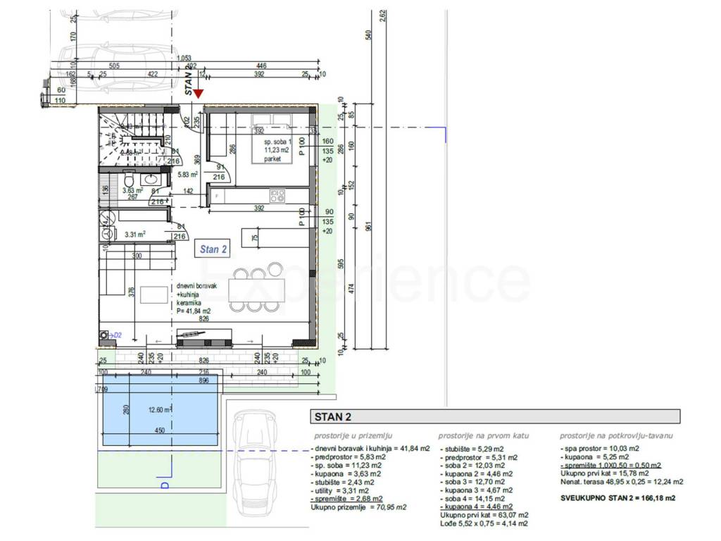
Located in a quiet, green area of Poreč, just 2 kilometers from the city center and the beach, this modern semi-detached new-build house is for sale, with a total area of 166,18 m. Spread over three floors, it perfectly combines contemporary design, airy space, and a functional layout. Thanks to wide glass openings and a carefully planned floor plan, the house offers plenty of natural light and a feeling of comfort throughout the year.

Room Layout:
Ground floor: Entrance hall, open space concept of the living room, kitchen and dining area with access to a covered terrace and garden, bedroom, bathroom, laundry room and storage room.
First floor: Three comfortable bedrooms, each with its own bathroom two bedrooms with access to a balcony (5,52 m),
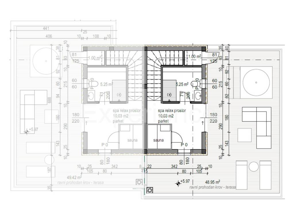
Attic: SPA relaxation area with a sauna, bathroom, and a spacious rooftop terrace (48,95 m) with a jacuzzi connection, west-facing a perfect spot to enjoy the sunset view.

EXTERIOR
Outdoor enjoyment is enhanced by a private garden with a swimming pool of 12,60 m an ideal spot for summer refreshment and relaxation in the privacy of your own garden.

The house will be equipped with underfloor heating and air conditioning units that ensure a comfortable temperature throughout the year.

Planned completion of construction: June 2026.

Situated in a peaceful residential zone, this home offers privacy and tranquility, while being within walking distance of all essential amenities: grocery stores, restaurants, cafés, and more. The location offers the perfect balance between relaxed living and proximity to the city and sea.

Additional Benefits:
A well-known investor with many years of experience and recognizable quality projects,
The buyer does not pay real estate transfer tax in the amount of 3% of the purchase price,
The price includes VAT (25%).
Si vous voulez en savoir plus, vous pouvez parler à Patricija Simonetti.
Caractéristiques
Typologie
Maison individuelle
Transaction
Vente
Étage
1
Superficie
166 m² | commerciale 312 m²
Chambres/pièces
5+
Chambres
4
Bains/douches
3+
Terrasse
Oui
Chauffage
Collectif
Détail de la surface

Habitation

Étage
1
Superficie
166,0 m²
Coefficient
100%
Type de superficie
Habitable
Sup. commercial
166,0 m²

Terrain

Étage
Rez-de-chaussée
Superficie
146,0 m²
Coefficient
100%
Type de superficie
Accessoires
Sup. commercial
146,0 m²
Informations sur les prix
Prix
€ 550 000
Prix au m²
1 763 €/m²
Efficacité énergétique
  • Année de construction

    2026
  • État

    Nouveau / En construction
  • Chauffage

    Collectif
  • Certification énergétique

    Non classifiable
Découvrez chaque recoin de la propriété
+9
Options additionnelles

Contacter l'annonceur

Ou