Terrain constructible en Vente

€ 75 000
564 m²

Remarque

Annonce mise à jour le 14/03/2026
Description

référence: 2459-1

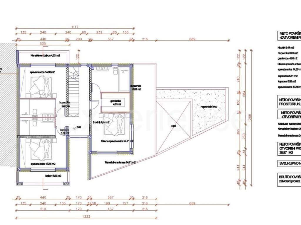
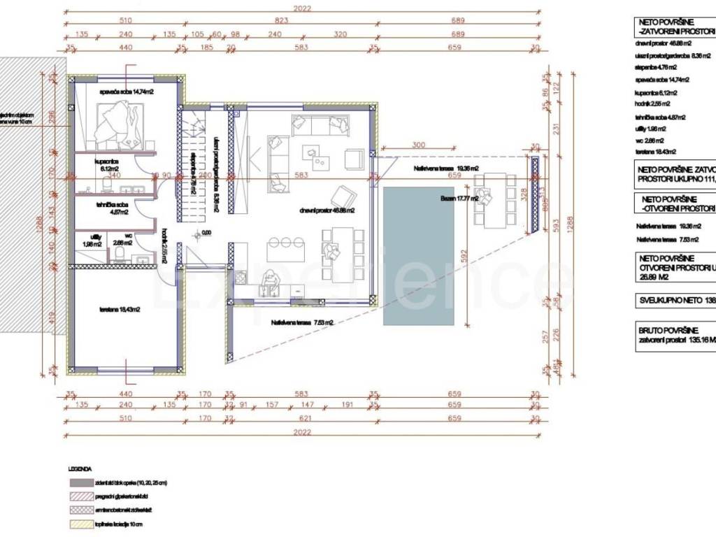
U okolici Višnjana, u iznimno mirnom ambijentu na prodaji je građevinsko zemljište, površine 564 m. Zemljište se nalazi u tipičnom istarskom selu sa svega nekoliko kuća, na rubu naselja. Teren je ravan, uzvišen, te pruža otvoreni panoramski pogled na okolna brda.

Ishodovana je građevinska dozvola i plaćene su komunalije za izgradnju dvojne obiteljske kuće sa bazenom, ukupne neto površine 317 m. Plaćen je komunalni doprinos u iznosu od 7.500 .

Priključci za struju i vodu nalaze se uz parcelu.
Si vous voulez en savoir plus, vous pouvez parler à Patricija Simonetti.
Caractéristiques
Transaction
Vente
Typologie
Terrain constructible
Superficie
564 m²
Informations sur les prix
Prix
€ 75 000
Prix au m²
133 €/m²
Découvrez chaque recoin de la propriété
+6
Options additionnelles

Contacter l'annonceur

Ou