Terrain constructible en Vente

€ 137 500
552 m²

Remarque

Annonce mise à jour le 14/03/2026
Description

référence: 2458-1

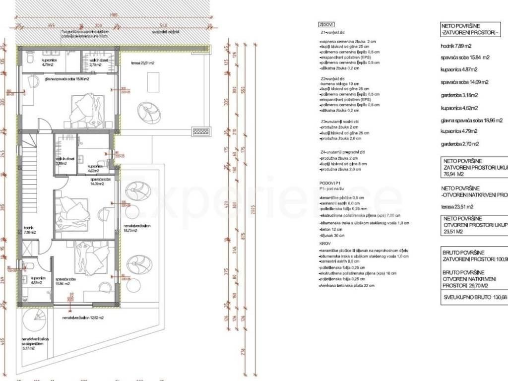
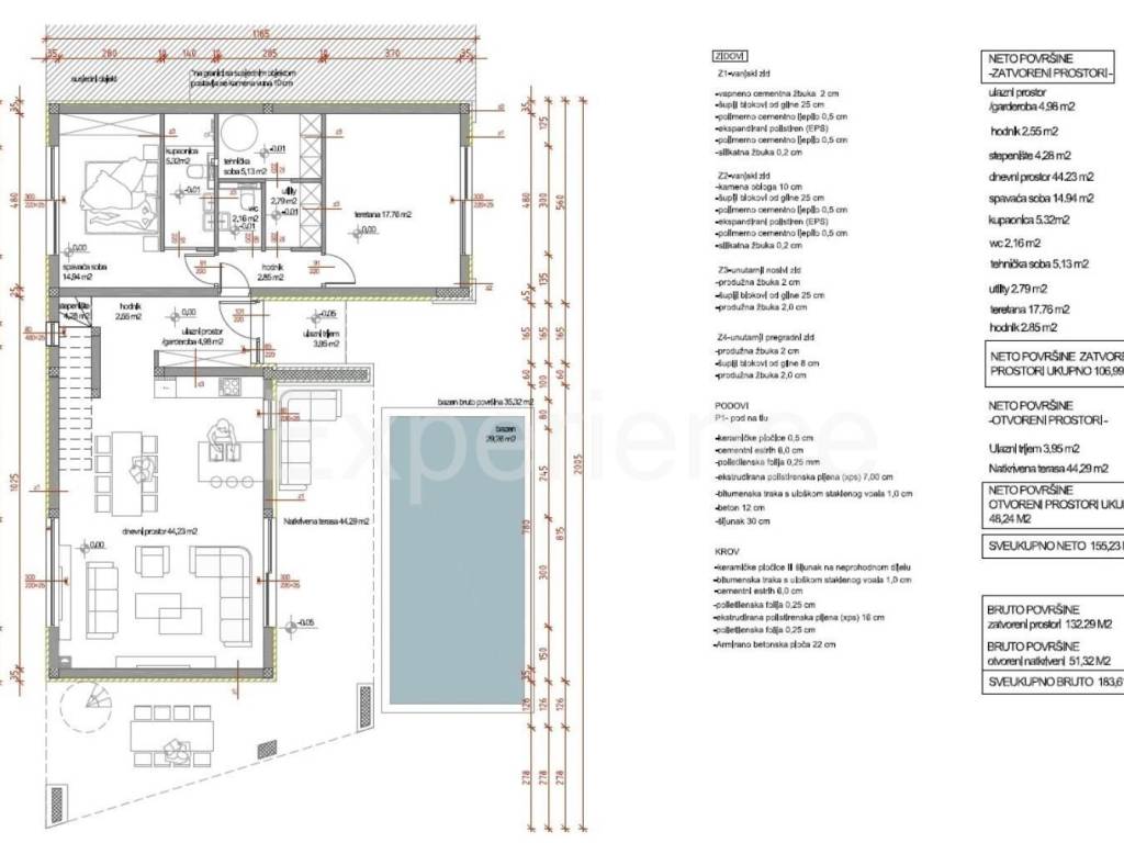
U okolici Višnjana, u iznimno mirnom ambijentu na prodaji je građevinsko zemljište, površine 552 m. Zemljište se nalazi u tipičnom istarskom selu sa svega nekoliko kuća, na rubu građevinske zone. Teren je ravan, uzvišen, te pruža otvoreni panoramski pogled na okolna brda.

Ishodovana je građevinska dozvola i plaćene su komunalije za izgradnju dvojne obiteljske kuće sa bazenom, ukupne neto površine 223 m. Plaćene su komunalije u iznosu od 7.000 . Započeta je izgradnja, izgrađeni su temelji.

Priključci za struju i vodu nalaze se uz parcelu.

U navedenoj cijeni uključen je PDV u iznosu od 25%.
Si vous voulez en savoir plus, vous pouvez parler à Patricija Simonetti.
Caractéristiques
Transaction
Vente
Typologie
Terrain constructible
Superficie
552 m²
Informations sur les prix
Prix
€ 137 500
Prix au m²
249 €/m²
Découvrez chaque recoin de la propriété
+5
Options additionnelles

Contacter l'annonceur

Ou