Maison individuelle 280 m², neuve, Vrsi

€ 850 000
5+
280 m²
3+

Remarque

Annonce mise à jour le 04/02/2026
Description

référence: 2112-1

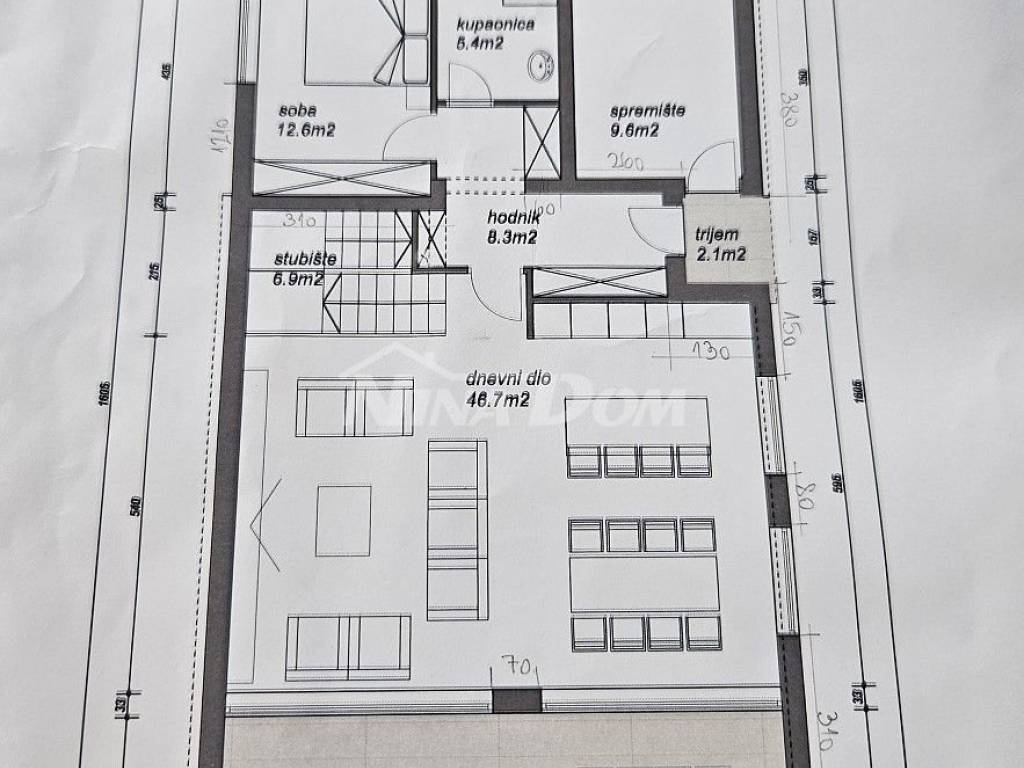
Novogradnja, samostojeća nekretnina s bazenom.
Građevinske površine 240 m2 izgrađena na 485 m2.
Prizemlje: kuhinja s dnevnim boravkom i blagovaonicom, jedna spavaća soba, kupaonica, hodnik, spremište, terasa. Bazen 4x8.
unutarnje stepenice : kat: 3 spavaće sobe s tri kupaonice, dvije terase..
(Kupaonice s podnim grijanjem).
Planirani rok svih završnih radova 2025 godina.
Udaljena je od lijepo uređene plaže 370 metara.
Si vous voulez en savoir plus, vous pouvez parler à Gordana Ivanika.
Caractéristiques
Typologie
Maison individuelle
Transaction
Vente
Étage
1
Superficie
280 m² | commerciale 765 m²
Chambres/pièces
5+
Chambres
4
Bains/douches
3+
Climatisation
Centralisé, froid/chaud
Autres caractéristiques
  • Piscine
Détail de la surface

Habitation

Étage
1
Superficie
280,0 m²
Coefficient
100%
Type de superficie
Habitable
Sup. commercial
280,0 m²

Terrain

Étage
Rez-de-chaussée
Superficie
485,0 m²
Coefficient
100%
Type de superficie
Accessoires
Sup. commercial
485,0 m²
Informations sur les prix
Prix
€ 850 000
Prix au m²
1 111 €/m²
Efficacité énergétique
  • Année de construction

    2024
  • État

    Nouveau / En construction
  • Climatisation

    Centralisé, froid/chaud
  • Certification énergétique

    Non classifiable
Découvrez chaque recoin de la propriété
+16
Options additionnelles

Contacter l'annonceur

Ou