Maison individuelle 220 m², neuve, Seget

€ 510 000
5+
220 m²
3
Terrasse

Remarque

Annonce mise à jour le 05/12/2025
Description

This description has been translated automatically and may not be accurate

référence: 6216-1

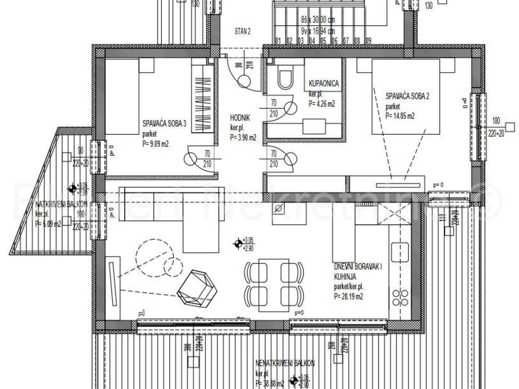
Seget Vranjica, villa 220 m2 under construction. The house is in the phase of completing the facade and all installations, plastering, smoothing and painting have been completed. The house is located on a plot of 424 m2, and is located on two floors. On the lower floor there is a two-bedroom apartment with one large bedroom with its own bathroom, hallway, technical room, kitchen with dining room and large living room and an outdoor terrace with an open view of the sea. On the upper floor, which is reached by internal stairs, there is another two-bedroom apartment with two bedrooms, bathroom, hallway, kitchen with dining room and large living room and a smaller loggia that can be accessed from the room, and a large terrace (31 m2) with a beautiful and open view of the sea and the town of Seget Vranjica itself. The house is being sold in its current condition, with the proviso that the facade will still be completely completed. The house is located in a peaceful and quiet location on a small hill with a beautiful view of the sea and islands. It is only 420 m from the sea and the beach. The ownership is in order. For more information, contact the agency.
Caractéristiques
Typologie
Maison individuelle
Transaction
Vente
Étage
Rez-de-chaussée
Superficie
220 m² | commerciale 644 m²
Chambres/pièces
5+
Chambres
4
Bains/douches
3
Terrasse
Oui
Détail de la surface

Habitation

Étage
Rez-de-chaussée
Superficie
220,0 m²
Coefficient
100%
Type de superficie
Habitable
Sup. commercial
220,0 m²

Terrain

Étage
Rez-de-chaussée
Superficie
424,0 m²
Coefficient
100%
Type de superficie
Accessoires
Sup. commercial
424,0 m²
Informations sur les prix
Prix
€ 510 000
Prix au m²
792 €/m²
Efficacité énergétique
  • Année de construction

    2025
  • État

    Nouveau / En construction
  • Certification énergétique

    Non classifiable
Découvrez chaque recoin de la propriété
+18
Options additionnelles

Contacter l'annonceur

Ou