Maison individuelle 238 m², neuve, Kaštela

€ 730 000
5
238 m²

Remarque

Annonce mise à jour le 05/12/2025
Description

This description has been translated automatically and may not be accurate

référence: 5772-1

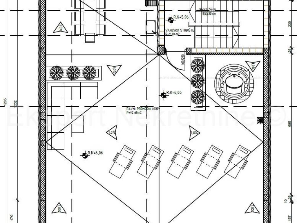
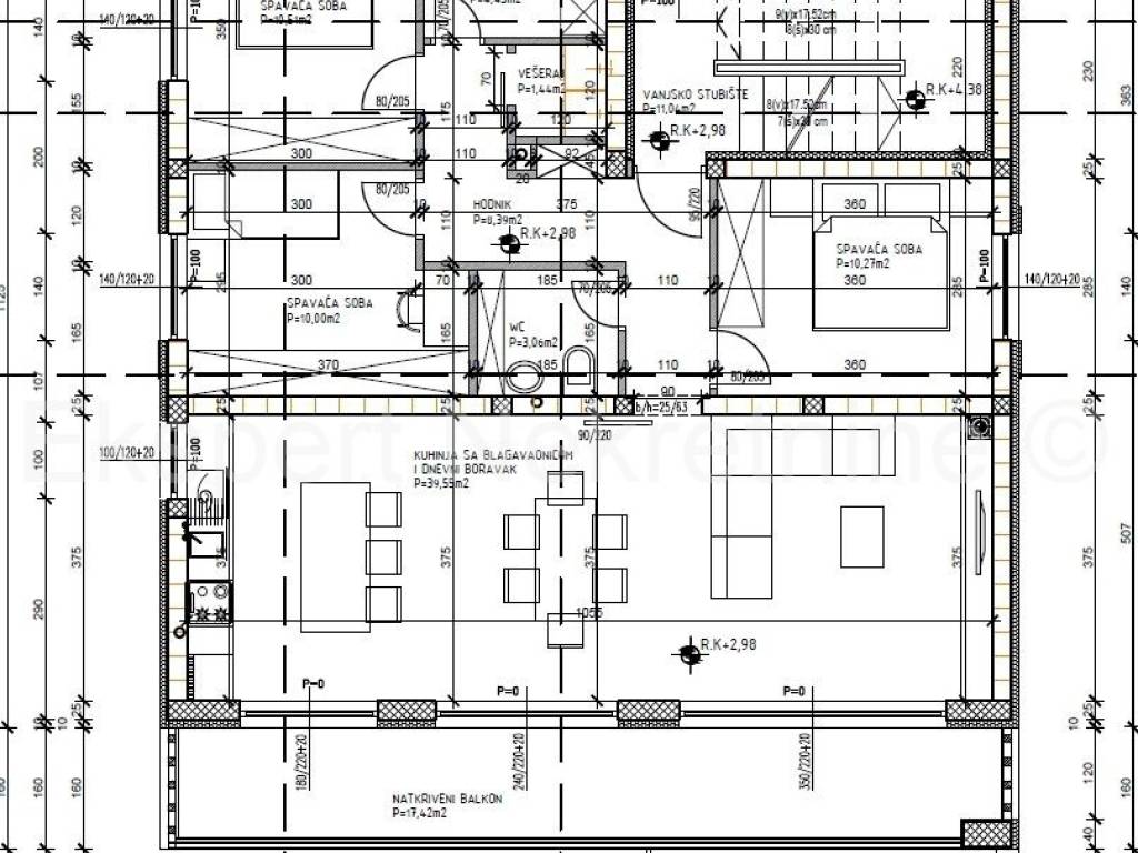
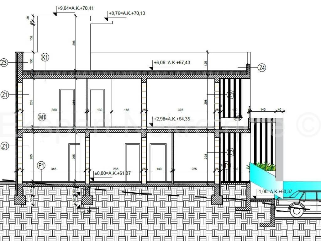
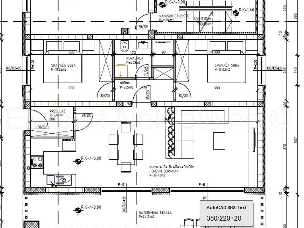
Kaštel Stari, detached two-story house 238m2 with garden 400m2 and swimming pool 24.5m2.
The house is located on a plot of 508m2.
It consists of a ground floor (107.4m2), a first floor (107.4m2) and a roof terrace (92.65m2).
It is connected to electricity and city water supply.
The building is currently under construction, it is possible to buy it "turnkey" or for the future buyer to continue construction on his own.
Current phase: high roh-bau.
Caractéristiques
Typologie
Maison individuelle
Transaction
Vente
Étage
Rez-de-chaussée
Superficie
238 m² | commerciale 746 m²
Chambres/pièces
5
Climatisation
Centralisé, froid/chaud
Autres caractéristiques
  • Porte blindée
  • Piscine
Détail de la surface

Habitation

Étage
Rez-de-chaussée
Superficie
238,0 m²
Coefficient
100%
Type de superficie
Habitable
Sup. commercial
238,0 m²

Terrain

Étage
Rez-de-chaussée
Superficie
508,0 m²
Coefficient
100%
Type de superficie
Accessoires
Sup. commercial
508,0 m²
Informations sur les prix
Prix
€ 730 000
Prix au m²
979 €/m²
Efficacité énergétique
  • État

    Nouveau / En construction
  • Climatisation

    Centralisé, froid/chaud
  • Certification énergétique

    Non classifiable
Découvrez chaque recoin de la propriété
+9
Options additionnelles

Contacter l'annonceur

Ou