Appartement 3 chambres neuf, rez-de-chaussée, Povljana

€ 233 940
3
66 m²
1
0
Oui
Balcon

Remarque

Annonce mise à jour le 04/05/2026
Description

This description has been translated automatically and may not be accurate

référence: 300411003-2004

NEW IN OFFER!! NEW BUILDING

Residential building with a total of four apartments. It is located on the island of Pag in the village of Povljana. The building features one duplex apartment that consists of an entrance and living area on the ground floor. The bedrooms are located on the first/second floor. On the ground floor and first floor, there are two identical apartments, each with two bedrooms and a living area. The second floor contains a penthouse with three bedrooms and a living area. The living room and bedrooms have separate terraces, both offering beautiful sea views.

Planned completion of construction - Winter 2025.
Valid building permit obtained.
Current prices are for pre-sales; for other inquiries, we are at your disposal.
Penthouse: Three bedrooms and sea view.
Duplex apartment: Three bedrooms and garden.
Ground floor apartment: Two bedrooms and garden.
First floor apartment: Two bedrooms.
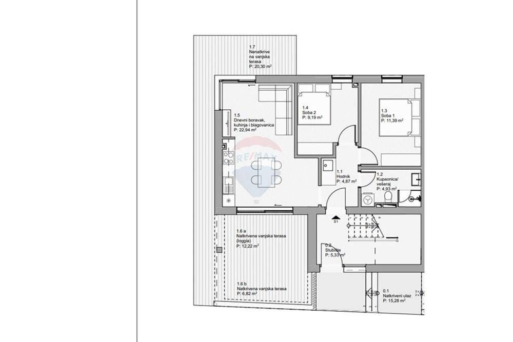
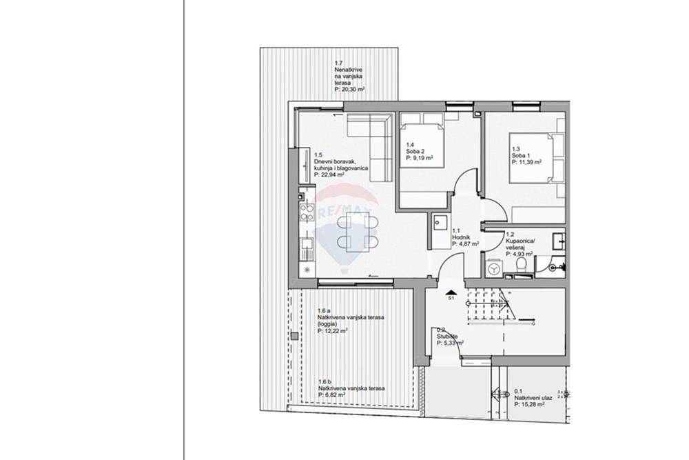
APARTMENT S3 ON THE FIRST FLOOR - 233,940 euros; The apartment includes TWO bedrooms, a living area, and a bathroom (underfloor heating in the bathrooms), as well as a spacious terrace. The size of the apartment is 53.32 m of enclosed space, 16.43 m of terrace, and 1 parking space. The total area with coefficients is 66.84 m.

LOCATION: The future building is located in the village of Povljana on the island of Pag, 650m from the sea, and 950m from the local beach. The building is elevated, providing a beautiful view of the sea. On the other side, there is also a stunning view of Mount Velebit.

The city of Pag is just a 10-minute drive away, and the airport and city of Zadar are only an hour's drive by car.

Pag Island is known for its premium cheeses and diverse gastronomic offerings. On the other side of the island is Zrće Beach in Novalja, which is a well-known party destination. Therefore, we can say that Pag Island is a destination that offers a well-balanced location for family vacations as well as for entertainment.

ID CODE: 300411003-2004

RE/MAX Complete
Voditelj ureda
Mob: +385 914444271
Tel: +385 53 560 173
E-mail: complete@remax.hr
https://www.remax.hr/Complete
Si vous voulez en savoir plus, vous pouvez parler à RE/MAX Complete.
Caractéristiques
Typologie
Appartement
Transaction
Vente
Étage
Rez-de-chaussée
Ascenseur
Oui
Superficie
66 m²
Chambres/pièces
3
Chambres
2
Bains/douches
1
Balcon
Oui
Terrasse
Non
Climatisation
Autonome, froid/chaud
Autres caractéristiques
  • Porte blindée
Informations sur les prix
Prix
€ 233 940
Prix au m²
3 545 €/m²
Efficacité énergétique
  • État

    Nouveau / En construction
  • Climatisation

    Autonome, froid/chaud
  • Certification énergétique

    Exempt
Découvrez chaque recoin de la propriété
+22
Options additionnelles

Contacter l'annonceur

Ou