Appartement 4 chambres neuf, rez-de-chaussée, Povljana

€ 415 695
4
118 m²
2
0
Oui
Balcon

Remarque

Annonce mise à jour le 04/05/2026
Description

This description has been translated automatically and may not be accurate

référence: 300411003-2021

NEW ON OFFER!!
NEW CONSTRUCTION

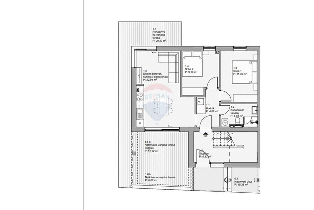
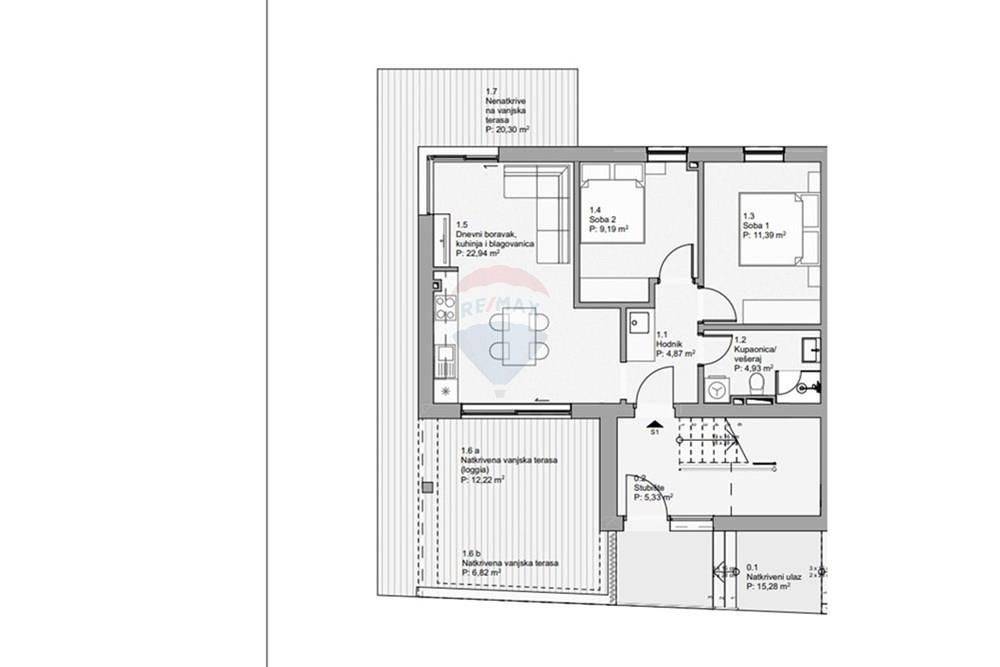
Residential building with a total of four apartments. It is located on the island of Pag in the town of Povljana. The building has one two-story apartment consisting of an entrance and a living room on the ground floor. The bedrooms are located on the first/second floor. On the ground floor and on the first floor there are two more identical apartments, with two bedrooms and a living room. The 2nd floor contains a penthouse with three bedrooms and a living room. The living room and bedrooms have separate terraces. Both with a beautiful view of the sea.

- Planned completion of construction - winter 2025.
- Valid construction permit obtained
-Presale prices are currently listed, and we are at your disposal for other inquiries
- Penthouse: Three bedrooms and sea view
- Duplex apartment: Three bedrooms and a garden
- Apartment on the ground floor: Two bedrooms and a garden
- Apartment on the 1st floor: Two bedrooms

-PENTHOUSE S4- 375,970 euros;
The apartment contains THREE bedrooms, a living room, two separate bathrooms and a laundry room. The apartment has 92.90 m of indoor space, 32.63 m of terrace and 2 parking spaces. The total square footage with coefficients is 118.77 m

LOCATION:
The future building is located in Povljana on the island of Pag, 650m from the sea, 950m from the local beach. The building is on an elevated site, which is why it has a beautiful view of the sea. On the other side, there is also a beautiful view of the Velebit mountain.
The city of Pag is only a 10-minute drive away, and the airport and the city of Zadar are only one hour away by car.
The island of Pag is known for its excellent cheeses and a wide gastronomic offer. On the other side of the island is the Zrće beach in Novalja, which is a famous party destination. With this, we can say that the island of Pag is a destination that has well-balanced locations for family vacations, as well as for entertainment.

ID CODE: 300411003-2021

RE/MAX Complete
Voditelj ureda
Mob: +385 914444271
Tel: +385 53 560 173
E-mail: complete@remax.hr
https://www.remax.hr/Complete
Si vous voulez en savoir plus, vous pouvez parler à RE/MAX Complete.
Caractéristiques
Typologie
Appartement
Transaction
Vente
Étage
Rez-de-chaussée
Ascenseur
Oui
Superficie
118 m²
Chambres/pièces
4
Chambres
3
Bains/douches
2
Balcon
Oui
Terrasse
Non
Climatisation
Autonome, froid/chaud
Informations sur les prix
Prix
€ 415 695
Prix au m²
3 523 €/m²
Efficacité énergétique
  • État

    Nouveau / En construction
  • Climatisation

    Autonome, froid/chaud
  • Certification énergétique

    Exempt
Découvrez chaque recoin de la propriété
+22
Options additionnelles

Contacter l'annonceur

Ou