map icon

Appartement 4 chambres sous-sol, Kostrena

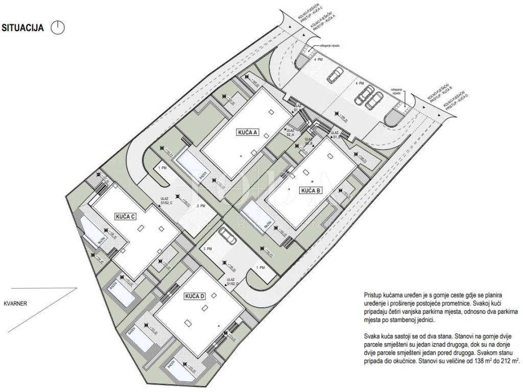
Kostrena
€ 902 000
4
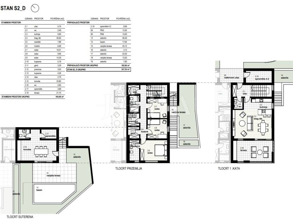
164 m²
2
S
Terrasse
Cave

Remarque

Annonce mise à jour le 17/11/2025
Description

This description has been translated automatically and may not be accurate

référence: 6773

We are selling a luxurious three-storey apartment with a total area of 165 m in a green and quiet part of Kostrena. The apartment is located in a new building with a beautiful sea view and includes a private pool, terraces, a landscaped garden and top-notch technical equipment.

The apartment consists of:
- living room and dining room with kitchen
- three bedrooms, wardrobe, cellar, pantry
- two bathrooms, two additional toilets, hallway and terrace

The apartment includes the following associated spaces:
- private pool
- two terraces and a landscaped garden
- two outdoor parking spaces
- storage room (8 m)

The property is equipped with:
- underfloor heating via heat pump
- air conditioning
- aluminum joinery
- security doors and top-quality finishing materials

It is sold on a turnkey basis, without furniture. The seller is VAT registered.

ID CODE: 6773

Stjepan Vrsalović, mag.oec.
Agent s licencom
Mob: 0914848887
Tel: 051403771
E-mail: stjepan@joda-nekretnine.hr
www.joda-nekretnine.hr
Si vous voulez en savoir plus, vous pouvez parler à Stjepan Vrsalović, mag.oec..
Caractéristiques
Typologie
Appartement
Transaction
Vente
Étage
Sous-sol
Superficie
164 m²
Chambres/pièces
4
Chambres
3
Bains/douches
2
Balcon
Non
Terrasse
Oui
Climatisation
Autonome, froid/chaud
Informations sur les prix
Prix
€ 902 000
Prix au m²
5 500 €/m²
Efficacité énergétique
  • Année de construction

    2026
  • Climatisation

    Autonome, froid/chaud
  • Certification énergétique

    Exempt
Découvrez chaque recoin de la propriété
+7
Annonceur
agent male

Stjepan Vrsalović, mag.oec.

fiche agence
Options additionnelles

Contacter l'annonceur

Ou
agent male

Stjepan Vrsalović, mag.oec.