Maison individuelle 317 m², neuve, Pobri, Volosko, Opatija

€ 195 000
5+
317 m²
2

Remarque

Annonce mise à jour le 25/03/2026
Description

This description has been translated automatically and may not be accurate

référence: 16206

OPATIJA - POBRI

For sale is an unfinished detached house on a land plot of 1199 m2, in a beautiful and quiet location just 5 minutes drive from the sea and the center of Opatija.

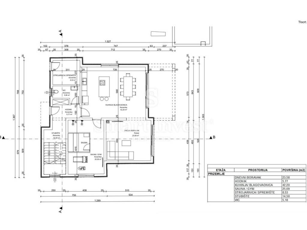
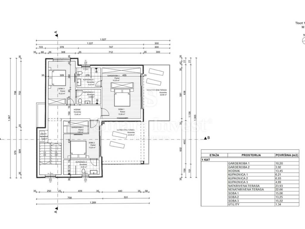
A building permit has been obtained for a house with a ground floor + first floor and construction has begun (a basement floor has been built). According to the building permit, the house with a total net area of 317.99 m2 consists of 2 apartments, each apartment has 3 bedrooms, a living room with a kitchen and dining room, a bathroom, an additional toilet, spacious terraces and balconies. In the basement of the house there is a tavern, a toilet, a laundry room and two spacious storage rooms.

There is a preliminary design for the conversion of the house into a modern family house with a swimming pool on the ground floor + first floor, measuring 261.71 m2. According to the design, the house would have 3 bedrooms, each with its own bathroom, a living room with a kitchen and dining room, a gym and a sauna, a toilet and a storage room.

*Floor plans in the ad are from a preliminary design for a modern house. Price is not fixed.

For more information and a viewing appointment, call: +385/99/320-0008

ID CODE: 16206

Agencija Opatija
Ovlašteni posrednik
Mob: +385/99/320-0008
E-mail: office@smart-invest.hr
www.smart-invest.hr
Si vous voulez en savoir plus, vous pouvez parler à Agencija Opatija.
Caractéristiques
Typologie
Maison individuelle
Transaction
Vente
Étage
1
Superficie
317 m² | commerciale 1 516 m²
Chambres/pièces
5+
Chambres
6
Bains/douches
2
Balcon
Non
Terrasse
Non
Détail de la surface

Habitation

Étage
1
Superficie
317,0 m²
Coefficient
100%
Type de superficie
Habitable
Sup. commercial
317,0 m²

Terrain

Étage
Rez-de-chaussée
Superficie
1 199,0 m²
Coefficient
100%
Type de superficie
Accessoires
Sup. commercial
1 199,0 m²
Informations sur les prix
Prix
€ 195 000
Prix au m²
129 €/m²
Efficacité énergétique
  • État

    Nouveau / En construction
  • Certification énergétique

    Exempt
Découvrez chaque recoin de la propriété
+8
Options additionnelles

Contacter l'annonceur

Ou