Terrain constructible en Vente

€ 300 000
1 368 m²

Remarque

Annonce mise à jour le 04/05/2026
Description

référence: 14535

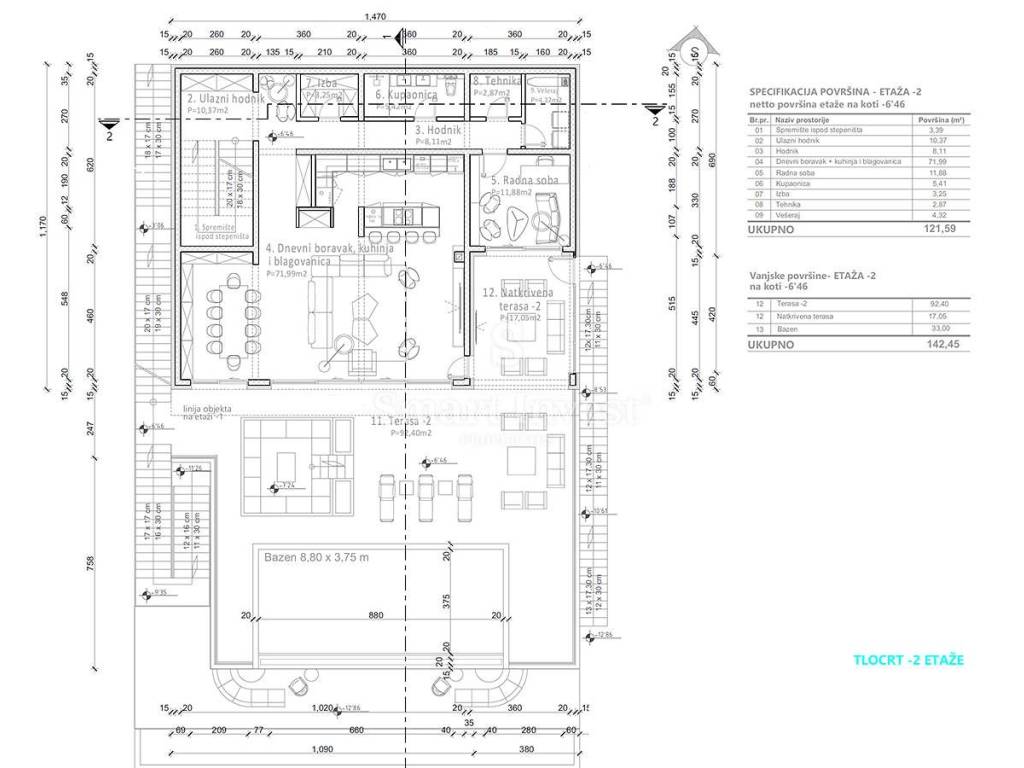
OPATIJA - IČIĆI, na prodaju je građevinsko zemljište s građevinskom dozvolom za modernu vilu s bazenom i prekrasnim pogledom na more, na lijepoj mirnoj lokaciji okruženoj prirodom te svega deset minuta šetnje udaljenoj od mora i ACI marine.

Ovo zemljište se nalazi na mirnoj lokaciji sa spektakularnim pogledom na more. Svega 10 minuta šetnje udaljeno je od mora i ACI marine u Ićićima te deset minuta vožnje od centra Opatije, što ga čini idealnim mjestom za vašu buduću luksuznu vilu. Uživat ćete u privatnosti i prekrasnom okolišu, dok ćete istovremeno imati sve blagodati obale i gradskih sadržaja na dohvat ruke.

GLAVNE ZNAČAJKE
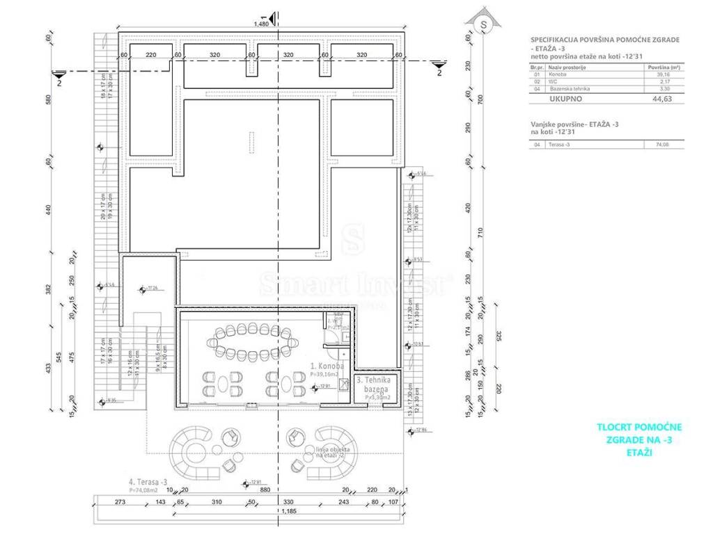
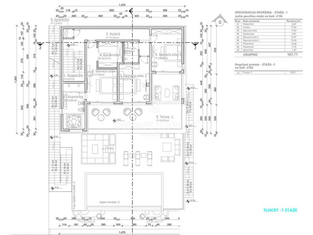
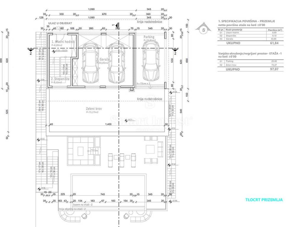
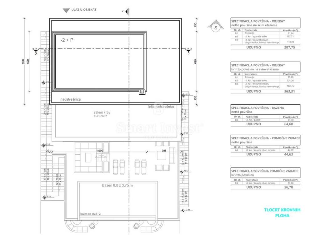
Površina zemljišta: 1368 m2
Površina vile: neto 287,75 m2 (bruto 363,31 m2)

Projektom je predviđena gradnja luksuzne vile koja će se isticati svojim modernim dizajnom s elegantnim i jednostavnim linijama. Prostrane staklene površine omogućuju besprijekoran pogled na more. Predviđeno je da će vila imati 3 prostrane spavaće sobe za udoban boravak obitelji i gostiju + 1 radnu sobu, 3 luksuzne kupaonice, konobu za druženje s obitelji i prijateljima te prekrasan infinity bazen s prostranom terasom za potpunu relaksaciju.

Ovo zemljište je idealno za one koji cijene kvalitetu života i žele živjeti u blizini mora, a istodobno uživati u miru i tišini i prekrasnom pogledu na more.

Bilo da tražite zemljište za gradnju vlastitog doma ili za investiciju, ovo zemljište će ispuniti sva vaša očekivanja.

Za više informacija i razgled nazovite +385/99/320-0008

ID KOD AGENCIJE: 14535

Agencija Opatija
Ovlašteni posrednik
Mob: +385/99/320-0008
E-mail: office@smart-invest.hr
www.smart-invest.hr
Si vous voulez en savoir plus, vous pouvez parler à Agencija Opatija.
Caractéristiques
Transaction
Vente
Typologie
Terrain constructible
Superficie
1 368 m²
Informations sur les prix
Prix
€ 300 000
Prix au m²
219 €/m²
Découvrez chaque recoin de la propriété
+23
Options additionnelles

Contacter l'annonceur

Ou