Appartement 3 chambres neuf, troisième étage, Stari Medulin, Medulin

€ 520 000
3
94 m²
2
3
Terrasse

Remarque

Annonce mise à jour le 02/05/2026
Description

This description has been translated automatically and may not be accurate

référence: 42673

ISTRIA, MEDULIN - Luxury penthouse overlooking the Medulin Bay

Medulin - once a small fishing village, but due to its attractive location it has become one of the most famous tourist destinations in Istria. Enjoy the variety of rocky, pebble and sandy beaches and indulge in the charm of nature. The place is suitable for a quiet and romantic vacation, but sports fans will also find something for themselves. Football, horseback riding, tennis, sailing, mini golf, flying, bowling, beach volleyball or diving - Medulin offers a real experience for everyone.

The position of the building and the apartment itself ensures plenty of daylight through the glass walls that surround the entire apartment and provide an unforgettable view of the Medulin Bay.
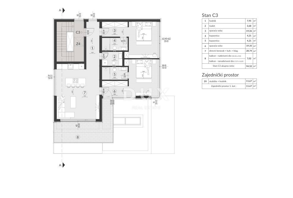
A well-designed floor plan and layout separate the private from the social part of the apartment. At the entrance to the apartment there is a hallway from which we come to the spacious open space living room connected to the modern kitchen and dining room, and from every corner of the room there is a view of the sea.
The private part of the apartment hides two bedrooms with en-suite bathrooms and one guest toilet.
The living room also provides access to a spacious terrace, surrounded by a glass fence, where future owners can enjoy a unique panoramic view of the sea and the Medulin Bay.
There are two private parking spaces in the building's courtyard.

The apartment will be equipped with top-quality materials from renowned international manufacturers. The interior will use Travertine Stone, which has a natural, warm look in earthy tones and gives the rooms and outdoor areas a Mediterranean and rustic atmosphere.
The modern design of the apartments with tall Schüco windows and a glass balcony ensures plenty of light. Aluminum electric blinds are installed.

The air conditioning units are built into the suspended ceiling, so that only discreet air vents are visible. This ensures an aesthetically clean room concept.
The air is distributed through several vents, resulting in comfortable cooling or heating without drafts.
Since the main unit is built into the ceiling, it operates more quietly than wall units.

Buying a property at this stage allows future owners to choose the ceramics and personalize it according to their wishes

This special property in Medulin is a real gem and a smart purchase for a comfortable life and residence and for a return on investment through tourism.

Dear clients, the agency commission is charged in accordance with the General Terms and Conditions.
www.dux-nekretnine.hr/opci-uvjeti-poslovanja

ID CODE: 42673

Deniro Osmanović
Agent pripravnik
Mob: +385 99 371 3802
Tel: +385 91 480 8808
E-mail: deniro@dux-istra.com
www.dux-istra.com

Aldin Begić
Agent pripravnik
Mob: +385 95 391 9185
Tel: +385 91 480 8808
E-mail: aldin@dux-istra.com
www.dux-istra.com
Si vous voulez en savoir plus, vous pouvez parler à Deniro Osmanović.
Caractéristiques
Typologie
Appartement
Transaction
Vente
Étage
3 étage
Superficie
94 m²
Chambres/pièces
3
Chambres
2
Bains/douches
2
Balcon
Non
Terrasse
Oui
Climatisation
Autonome, froid/chaud
Informations sur les prix
Prix
€ 520 000
Prix au m²
5 532 €/m²
Efficacité énergétique
  • Année de construction

    2025
  • État

    Nouveau / En construction
  • Climatisation

    Autonome, froid/chaud
  • Certification énergétique

    Exempt
Découvrez chaque recoin de la propriété
+19
Options additionnelles

Contacter l'annonceur

Ou