Terrain constructible en Vente

€ 399 000
2 860 m²

Remarque

Annonce mise à jour le 04/05/2026
Description

référence: 42672

INVESTICIJSKA PRILIKA U ZELENOM SRCU HRVATSKE!

GORSKI KOTAR - STARI LAZ: zemljište s pravomoćnom građevinskom dozvolom za 4 luksuzne planinske vile

LOKACIJA koja osvaja: Gorski kotar, "Zelena oaza Hrvatske", regija je jedinstvenog prirodnog bogatstva i savršenog položaja povezuje kontinentalnu i mediteransku Hrvatsku! Blizina velikih gradova i zračnih luka (Zagreb, Ljubljana, Rijeka) te odlična prometna povezanost čine Stari Laz idealnom destinacijom za turizam, aktivan odmor i mir.

ODMAH SPREMNO ZA GRADNJU! Prodaje se zemljište smješteno u T2 zoni (ugostiteljsko-turistička namjena), za koje je:
ishodovana pravomoćna građevinska dozvola!
plaćeni komunalni doprinosi!
napravljeni pripremni radovi

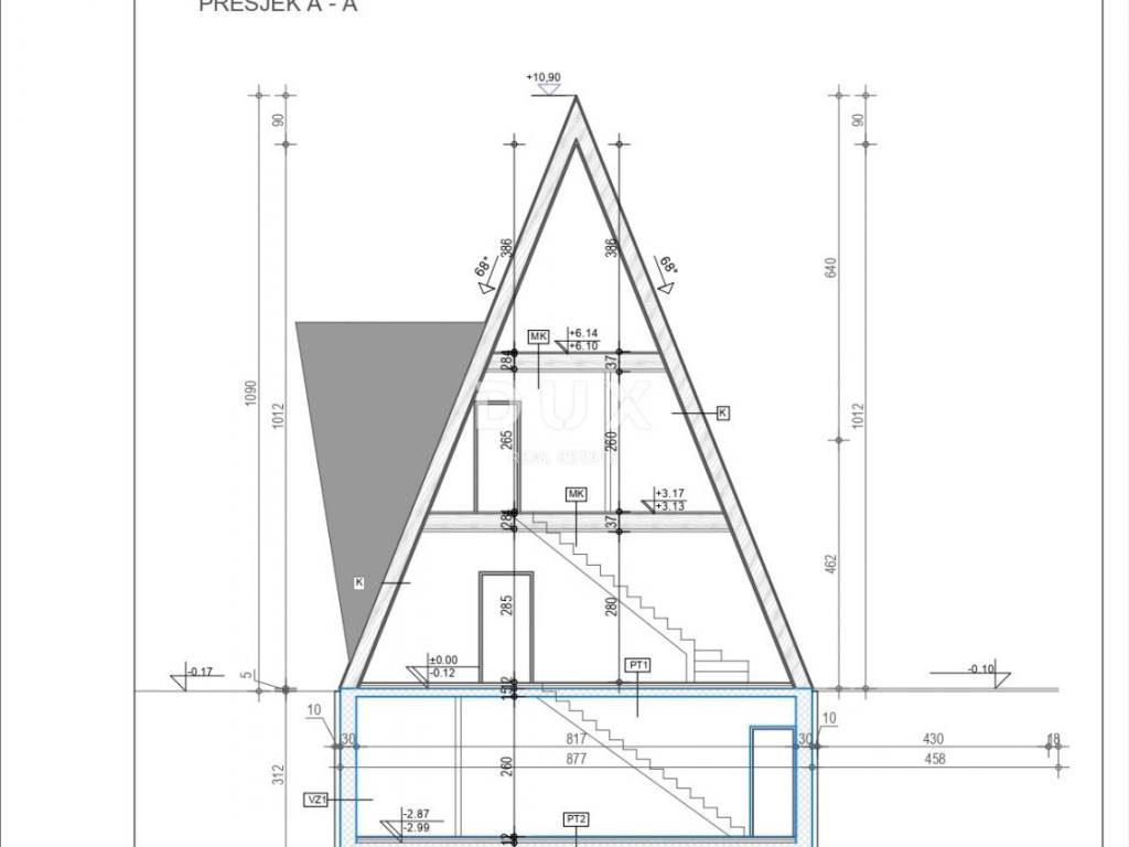
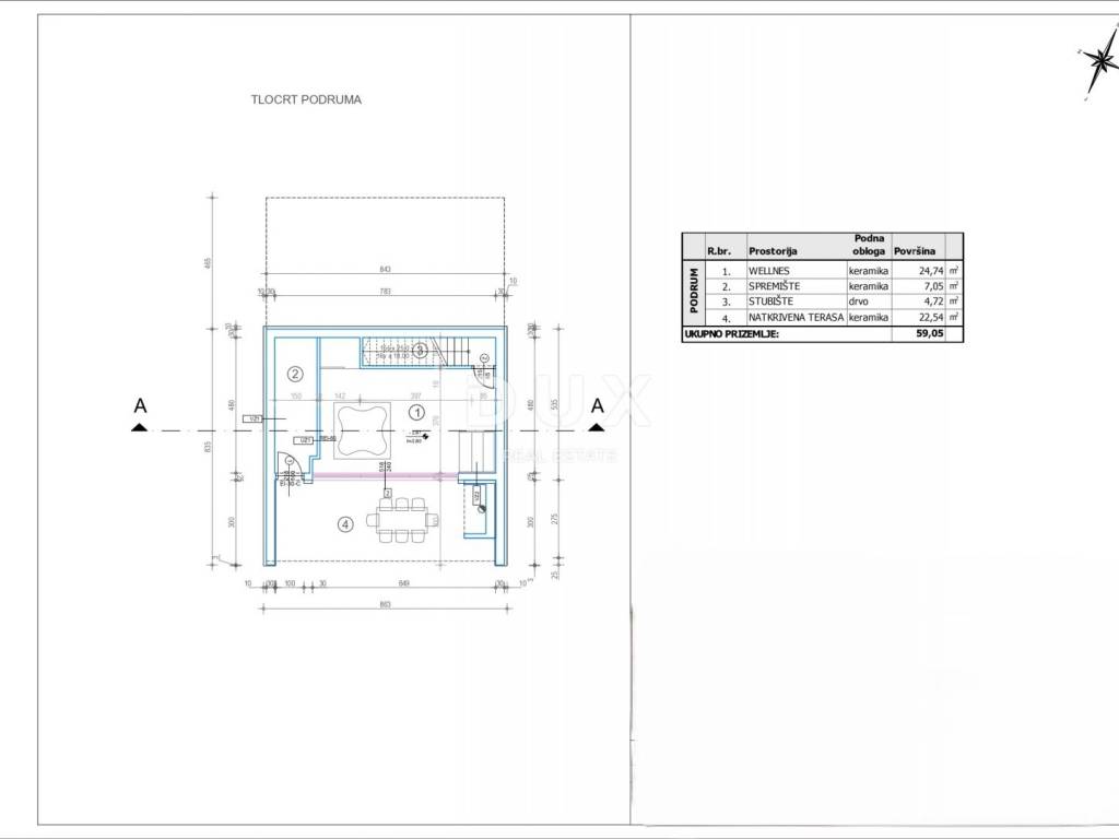
PROJEKT KOMPLEKSA OD 4 VILE: Planirana je izgradnja kompleksa od četiri ekskluzivne planinske vile, koncipirane kao troetažne cjeline (Podrum, Prizemlje i Kat), idealne za turistički najam ili osobno uživanje.

Detalji vila:
Tri vile (A, B, C) površine su 227 m2, a jedna vila (D) je 178 m2.
podrum (Wellness Zona): Wellness, spremište, stubište i natkrivena terasa zona za opuštanje.
prizemlje (Dnevni dio): Prostrani Dnevni boravak/Blagovaonica/Kuhinja, spavaća soba 1, kupaonica 1, WC, Kotlovnica/Praonica i natkrivena terasa.
kat (Spavaći dio): Hodnik, Spavaća soba 2 s kupaonicom 2, Spavaća soba 3 s kupaonicom 3 i natkriveni balkon.

ZAŠTO INVESTIRATI? Ovo je jedinstvena prilika za ulazak u investiciju s minimalnim birokratskim preprekama. Imate gotov projekt s važećom dozvolom za izgradnju traženog tipa nekretnina luksuznih planinskih vila s wellness sadržajima. Osigurajte svoj udio u rastućem turizmu Gorskog kotara!

Ne čekajte! Započnite gradnju odmah i iskoristite puni potencijal ove jedinstvene investicije!

Kontaktirajte nas za više informacija i uvid u projektnu dokumentaciju.

ID KOD AGENCIJE: 42672

Tony Jerković
Direktor
Mob: +385 91 480 8808
Tel: +385 51 518 174
E-mail: tony@dux-nekretnine.hr
www.dux-nekretnine.hr
Si vous voulez en savoir plus, vous pouvez parler à Tony Jerković.
Caractéristiques
Transaction
Vente
Typologie
Terrain constructible
Superficie
2 860 m²
Informations sur les prix
Prix
€ 399 000
Prix au m²
140 €/m²
Découvrez chaque recoin de la propriété
+23
Options additionnelles

Contacter l'annonceur

Ou