Terrain constructible en Vente

€ 519 600
1 732 m²

Remarque

Annonce mise à jour le 20/12/2025
Description

référence: 42225

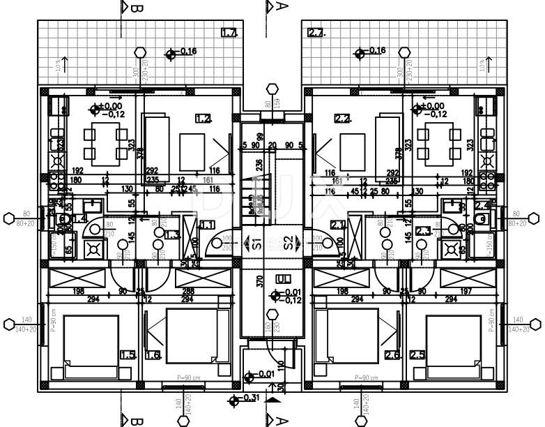
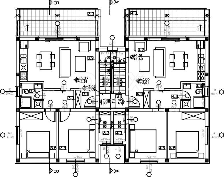
ZADAR, ZUKVE - Zemljište za 12 stanova s građevinskom dozvolom!

Prodaje se atraktivno građevinsko zemljište površine 1732 m2 s gotovim projektom za 3 moderne zgrade s četiri stambene jedinice, sveukupno 12 stanova i već ishođenim građevinskim dozvolama za sve tri zgrade. Zemljište se nalazi na izvrsnoj lokaciji svega 300 metara od mora, odnosno 56 minuta lagane šetnje do plaže te ima čak dva pristupna puta parceli. Prava prilika za investitore i graditelje koji traže gotovu i sigurnu investiciju s brzom realizacijom i izvrsnim povratom ulaganja.

Zemljište je u vlasništvu pravne osobe te se ne plaća porez na promet nekretnina.

Zemljište se nalazi u mirnom i vrlo traženom dijelu Zukava, u blizini Vrsi i povijesnog Nina destinacija koje sve više dobivaju na vrijednosti zahvaljujući svojoj prirodnoj ljepoti, čistom moru i odličnom turističkom potencijalu. Grad Zadar, s bogatom ponudom sadržaja, zračnom lukom i cjelogodišnjim prometom, udaljen je svega 20-ak minuta vožnje.

Ovo je izvanredna prilika za sve koji žele odmah započeti s gradnjom bez čekanja na dozvole.

Javite nam se za više informacija i osobni obilazak!

Poštovani klijenti, agencijska provizija naplaćuje se u skladu s Općim uvjetima poslovanja:
www.dux-nekretnine.hr/opci-uvjeti-poslovanja

ID KOD AGENCIJE: 42225

Josip Šestan
Agent s licencom
Mob: +385 91 799 6986
Tel: +385 91 480 8808
E-mail: josip@dux-dalmacija.com
www.dux-dalmacija.com
Si vous voulez en savoir plus, vous pouvez parler à Josip Šestan.
Caractéristiques
Transaction
Vente
Typologie
Terrain constructible
Superficie
1 732 m²
Informations sur les prix
Prix
€ 519 600
Prix au m²
300 €/m²
Découvrez chaque recoin de la propriété
+10
Options additionnelles

Contacter l'annonceur

Ou