map icon

Maison individuelle 179 m², neuve, Privlaka

Privlaka
€ 840 000
5+
179 m²
3+
Terrasse

Remarque

Annonce mise à jour le 17/11/2025
Description

This description has been translated automatically and may not be accurate

référence: 35957

ZADAR, PRIVLAKA - Elegant house 110 meters from the beach! New construction! B

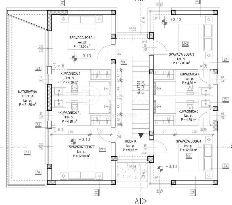
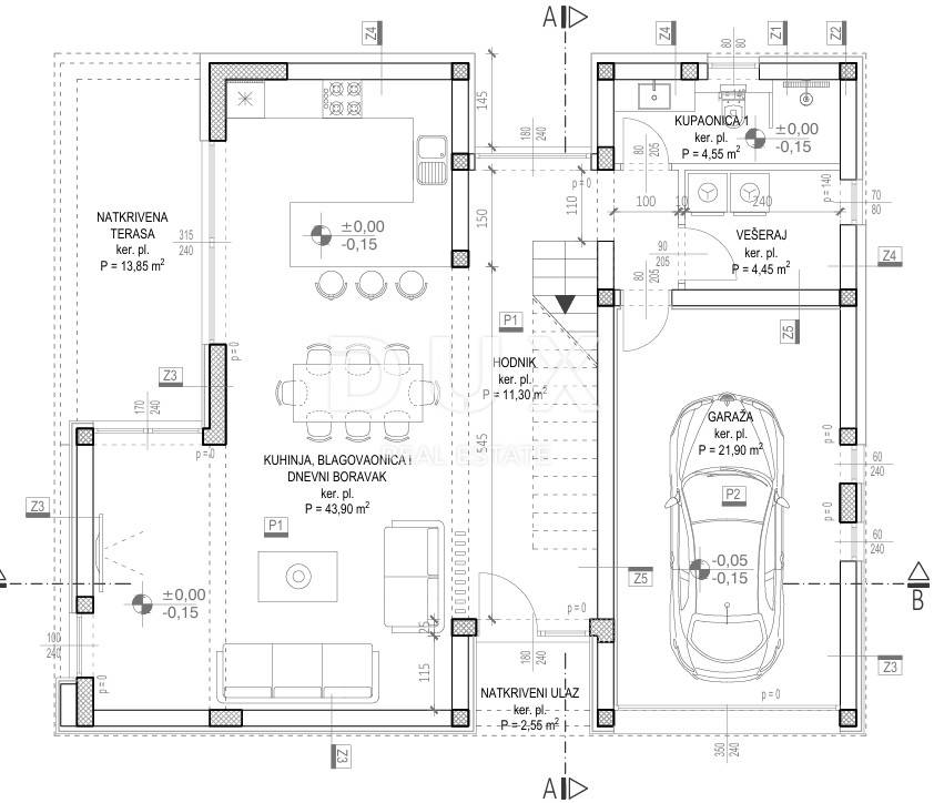
A modern villa for sale located just 110 meters from the beach, offering a combination of luxury, comfort and a beautiful sea view. This new building with a swimming pool is spread over a plot of 401 m2, while the net area of the house is 179.58 m2. On the ground floor there is a garage space, bathroom, laundry room, spacious living room, dining room, kitchen and a covered terrace, ideal for enjoying warm evenings by the pool. On the first floor there are four bedrooms, each with its own bathroom and access to a covered terrace with a sea view. The villa is equipped with underfloor heating throughout the house and air conditioning in all rooms, ensuring a pleasant atmosphere throughout the year. This is a unique opportunity for those looking for a luxurious property near the sea, perfect for a vacation or as an investment. Contact us for additional information and to arrange a viewing!

Dear clients, the agency commission is charged in accordance with the General Business Conditions: www.dux-nekretnine.hr/opci-uvjeti-poslovanja

ID CODE: 35957

Josip Šestan
Agent s licencom
Mob: +385 91 799 6986
Tel: +385 91 480 8808
E-mail: josip@dux-dalmacija.com
www.dux-dalmacija.com
Si vous voulez en savoir plus, vous pouvez parler à Josip Šestan.
Caractéristiques
Typologie
Maison individuelle
Transaction
Vente
Étage
1
Superficie
179 m² | commerciale 580 m²
Chambres/pièces
5+
Chambres
4
Bains/douches
3+
Balcon
Non
Terrasse
Oui
Box, places stationnement
1 dans garage/box
Climatisation
Autonome, froid/chaud
Autres caractéristiques
  • Piscine
Détail de la surface

Habitation

Étage
1
Superficie
179,0 m²
Coefficient
100%
Type de superficie
Habitable
Sup. commercial
179,0 m²

Terrain

Étage
Rez-de-chaussée
Superficie
401,0 m²
Coefficient
100%
Type de superficie
Accessoires
Sup. commercial
401,0 m²
Informations sur les prix
Prix
€ 840 000
Prix au m²
1 448 €/m²
Efficacité énergétique
  • Année de construction

    2025
  • État

    Nouveau / En construction
  • Climatisation

    Autonome, froid/chaud
  • Certification énergétique

    Exempt
Découvrez chaque recoin de la propriété
+12
Options additionnelles

Contacter l'annonceur

Ou