Terrain constructible en Vente

€ 1 000 000
2 800 m²

Remarque

Annonce mise à jour le 04/05/2026
Description

référence: 34670

OPATIJA, IČIĆI - građevinsko zemljište 2800m2 S LOKACIJSKOM DOZVOLOM!! I s pogledom na more za stambenu zgradustanove /apartmane

Zemljište se u naravi sastoji od 2 parcele, svaka po cca 1400m2, te za jednu od tih parcela ishodovana je lokacijska dozvola za objekt od 1131m2 (BRP) + bazen

Za drugu parcelu (koja također ima cca 1400m2) zasada ne postoji nikakava dozvola, ali je predan zahtjev lokacijsku dozvolu dozvolu po projektu koji je je gotovo pa isti koji je na prvoj parceli.

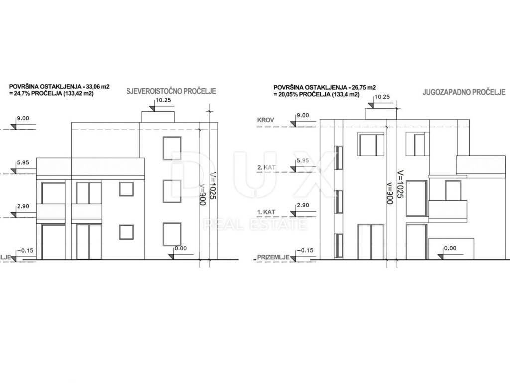
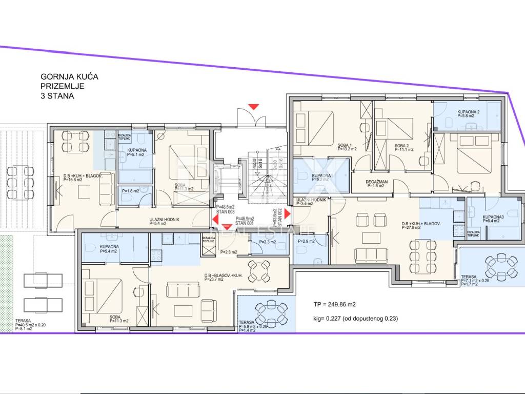
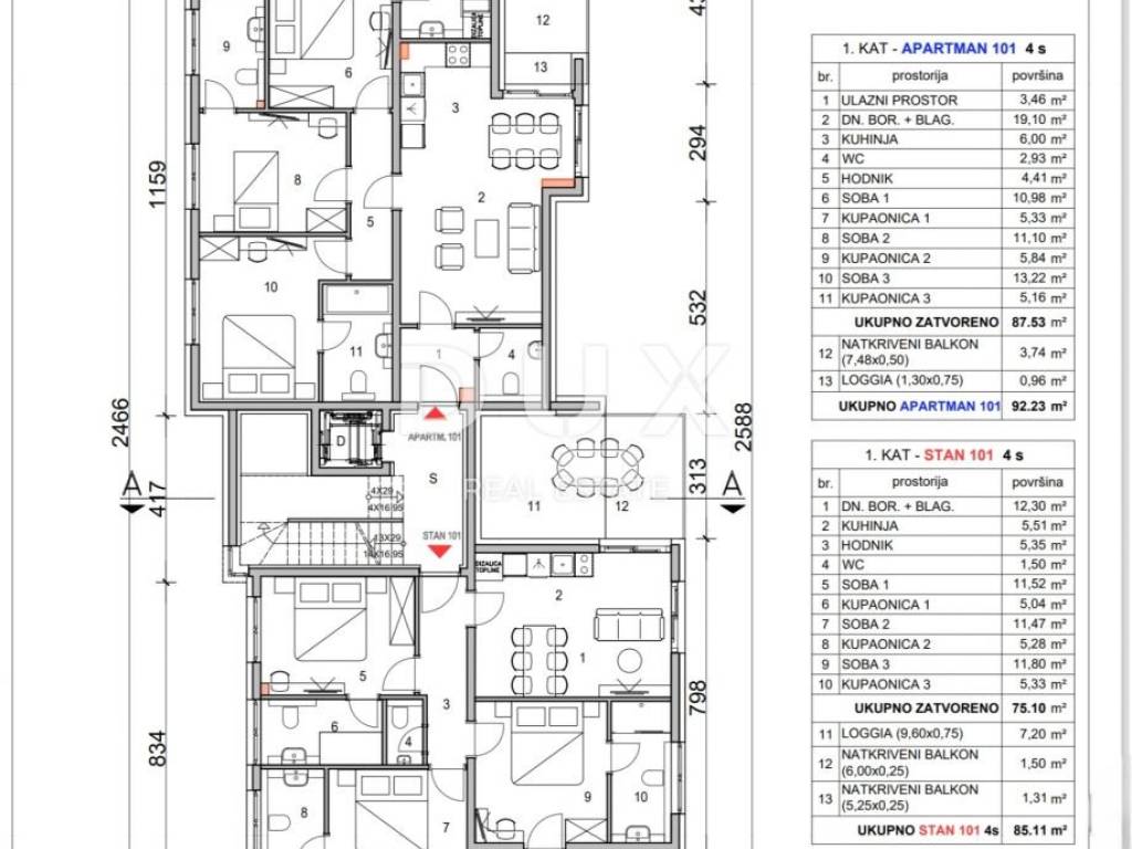
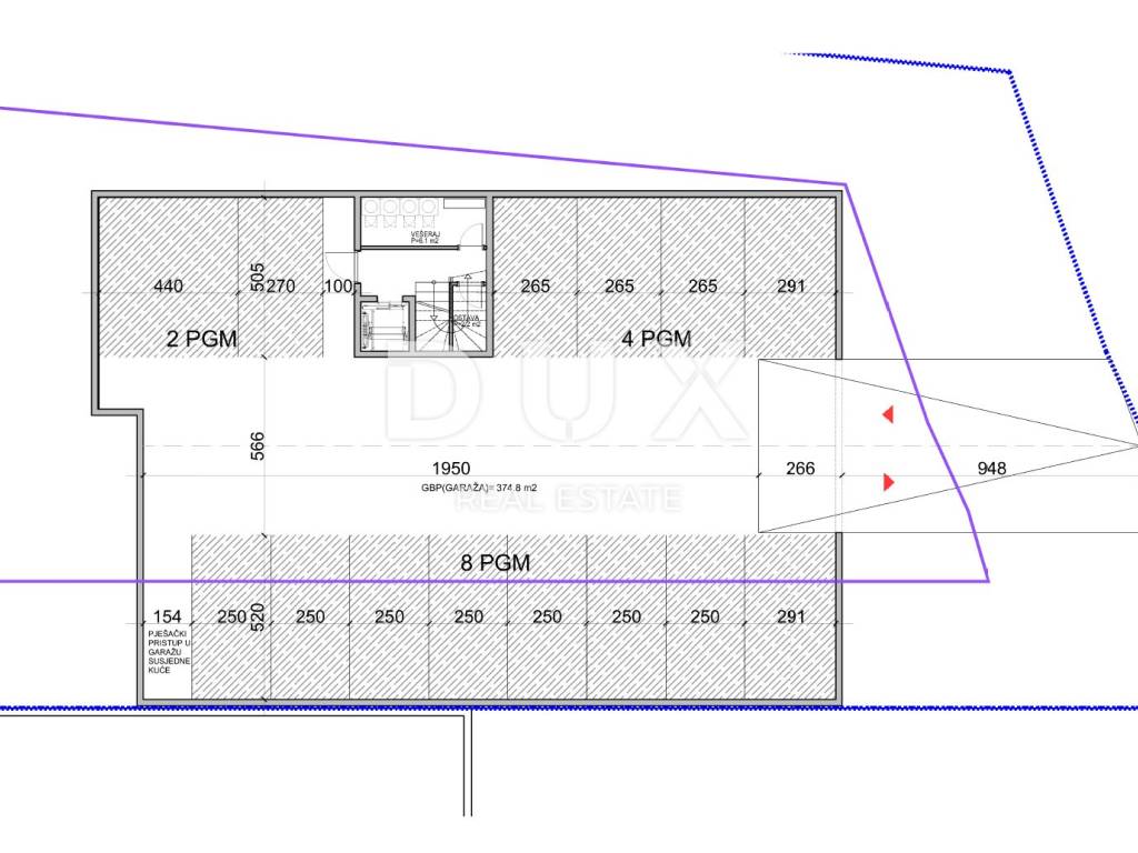
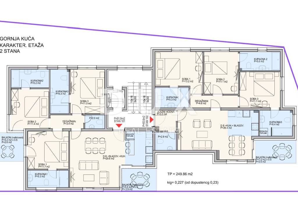
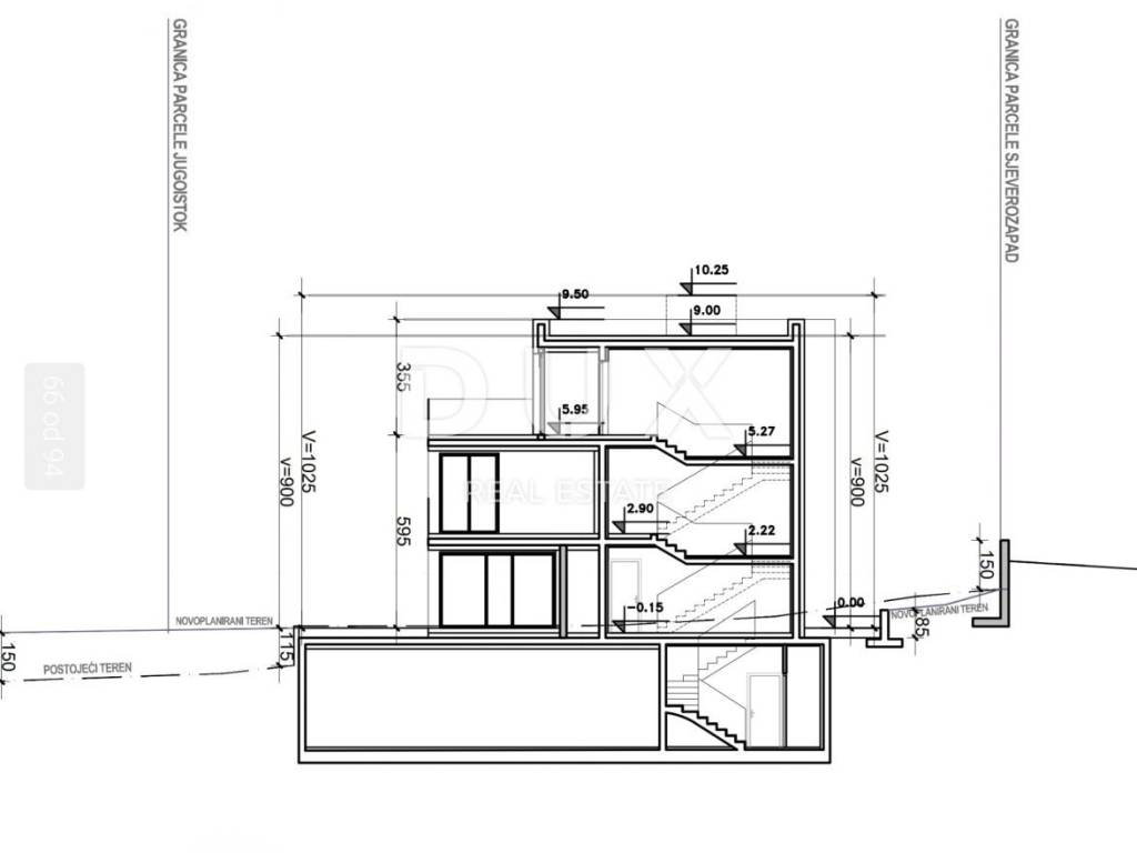
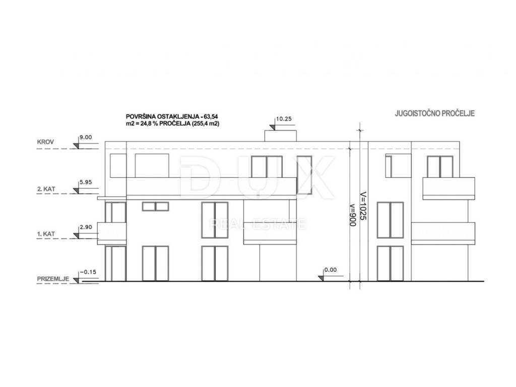
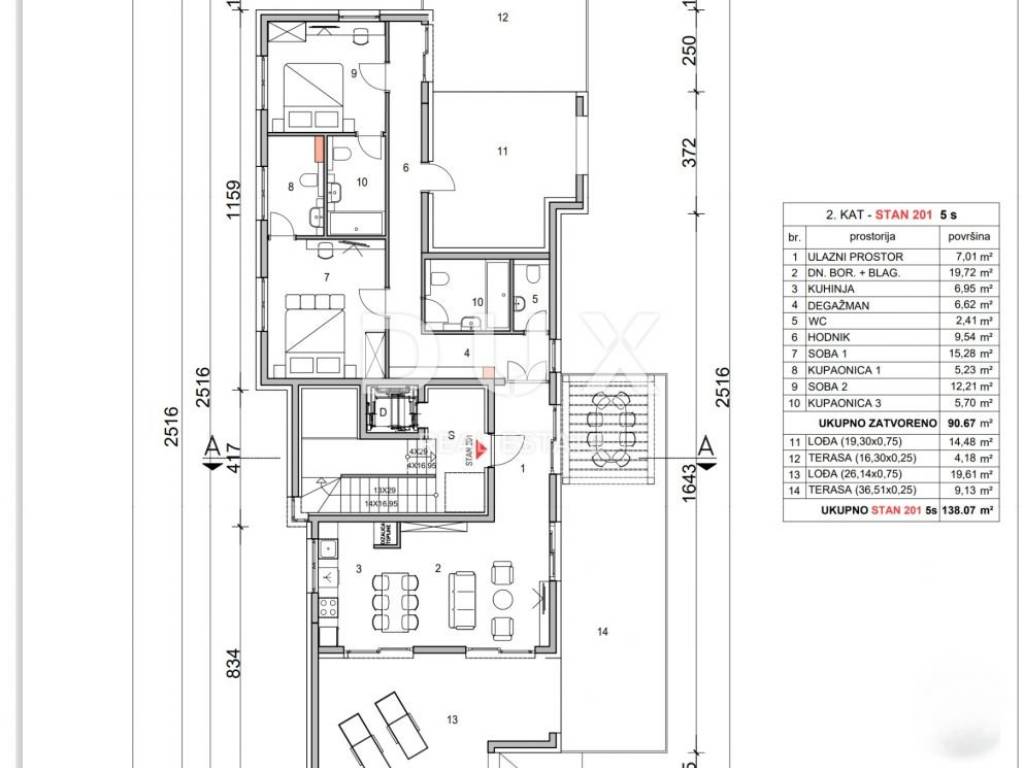
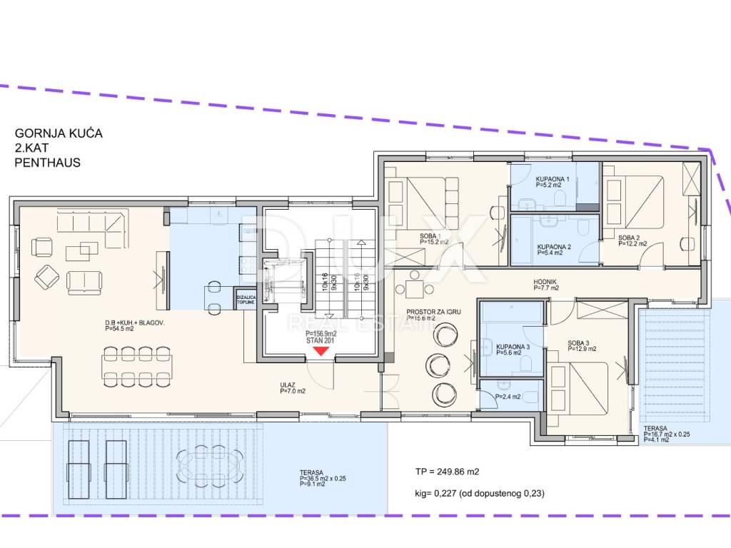
Lokacijska dozvola je dobivena za zgradu koja se sastoji od (po projektu koji je na slikama):
-PODRUM ukupne površine 381m2 garažni prostor s parking mjestima + prostor za spremnike + wellnes (ili neki drugi sadržaj po želji potencijalnog kupca)

-PRIZEMLJE- ukupne površine 250m2 3 stana (dva stana 1S+DB i jedan stan 2S+DB)

- 1.KAT ukupne površine 250m2 2 stana (dva stana 3S+DB)

- 2.KAT ukupne površine 250m2 1 penthouse (3S+DB)

Građevinsko zemljište je udaljeno 700 m zračne linije od mora, ima pogled na more i južnu orijentaciju.
Teren je konfiguracijski potpuno ravan.

Teren se nalazi na tihoj i mirnoj poziciji i odmah do asfaltiranog puta.
Sve komunalije do terena.
Čisto i uredno vlasništvo.
Teren je očišćen i spreman za gradnju.

Buduće izgrađena nekretnina na ovoj parceli bi imala pogled na more čak iz prizemlja, ali s prve etaže pružao bi se panoramski otvoreni pogled na more, cijeli Kvarnerski zaljev i otoke.

Građevinsko zemljište je na pravnu osobu (firmu) koja je otvorena samo za ovaj projekt, tako da postoji i opcija da se kupi cijala firma zajedno s zemljištem.

Ova nekretnina je udaljena 700m zračne linije od mora, odnosno 1,6km automobilom (cca 4 min).

Dobra prilika za investitore koji se bave izgradnjom stambenih zgradastanova-apartmana

NEKRETNINA NA ODLIČNOJ I JEDINSTVENOJ LOKACIJI S VELIKIM POTENCIJALOM!!!

IČIĆI:
Ičići su malo turističko mjesto s oko 800 stanovnika, smješteno na sjevernom Jadranu, u Kvarnerskom zaljevu. Mjesto je udaljeno 5 km od Opatije odnosno 15 km od Rijeke. Nalazi se u podnožju planine Učka koja je visoka 1401 m i čiji je okoliš zbog posebnosti i ljepote prirode proglašen parkom prirode. Stanovništvo se pretežito bavi turizmom i ugostiteljskim djelatnostima. Zbog svog povoljnog položaja Ičići su se tijekom godina razvili u pravo turističko mjesto s mnogobrojnim ponudama, pa se tako osim bogate ugostiteljske ponude nudi mogućnost bavljenja različitim športovima, izleti, noćni izlasci.
Iz Ičića se pruža prekrasn pogled na dva najveća hrvatska otoka Krk i Cres koji se mogu posjetiti i brodom. Ovo mjesto je posebno poznato po izvranredno opremljenoj ACI Marini. Zahvaljujući raznovrstnom smještaju (hoteli, apartmani, autokamp) i športsko rekreacijskom sdržaju (teniski tereni, športovi na vodi, jedrenje ...) ovdje je mjesto za razvoj posebno našao nautički turizam. Na putu od Ičića do Učke naići ćete na mali srednjovjekovni grad Veprinac, koji posjeduje vlastiti zakon, a datira još iz 1500. godine. U blizini s nalazi autokamp Ičići koji se nalazi u blizini plaže nedaleko od teniskih terena.
Glavna turistička atrakcija Ičića je svakako plaža. Nalazi se u smom središtu mjesta, a sstoji se od betonskog i pješčanog dijela. Svake se godine ulaže u uređenje plaže zbog čega plaža iz godine u godinu dobiva plavu zastavu. Ulaz je besplatan i dostupan svima.
Plaža je omeđena s jedne strane, s ACI Marinom, dok se s druge strane nalazi manja luka koja postoji od kada i mjesto Ičići i koja se razvijala usporedno s mjestom. Ta Lučica prihvaća manje barke i podsjeća da je Ičići primorsko mjesto.
Posebno je za naglasiti da kroz Ičiće prolazi poznati Lungomare, obalno šetalište koje je izgradio austrijski car Franjo Josip I. 1885. godine. To lijepo uređeno obalno šetalište dugačko je 12 km i proteže se od Voloskog do Lovrana, a Ičići su gotovo na pola puta. Noću je diskretno osvijetljeno pa su stvoreni uvjeti za romantične šetnje. Mjesto Ičići povezano je s ostalim mjestima međugradskim i gradskim autobusima.
U primorskim mjestima su posebno poznate takozvane "Ribarske fešte" koje se organiziraju tijekom ljetnih mjeseci. Tako i Ičići ima svoje fešte za koje mještani, kao i turisti, budu obaviješteni nekoliko dana ranije preko mnogobrojnih plakata.

OPATIJA:
Opatija, predivan obalni grad smješten na Jadranskom moru poznato je turističko odredište za turiste iz cijelog svijeta. Grad je okružen prekrasnom prirodom, u podnožju planine Učka. Iz nekretnina u Opatiji pruža se neprocjenjivi pogled na more i okolne otoke Krk i Cres. Opatija je okružena šarmantnim malenim gradovima s starim kućama smještenim u uskim uličicama bogate povijesti. Ulice grada Opatije čine nekretnine koje se ističu specifičnom arhitekturom te vilama koje datiraju iz habsburškog perioda. Veliki izbor plaža, kristalno čistog mora i raznovrsne turističke usluge ključni su faktori zbog kojih je Opatija svršena turistička destinacija prepoznata od strane susjednih zemalja kao odličan investicijski izbor. Cijene nekretnina na ovom području rastu, popunjenost iznajmljivanja je izvrsna što je uzrokovalo povrat investicije od 5% do 10% i privlačenje inozemnih ulagača.

Poštovani klijenti, agencijska provizija naplaćuje se u skladu s Općim uvjetima poslovanja
www.dux-nekretnine.hr/opci-uvjeti-poslovanja

Poštovani potencijalni kupci, najmoprimci i zakupoprimci,
razgledavanje nekretnine koja vas zanima i za koju imate interes moguće je jedino i isključivo uz potpis Ugovora o posredovanju nekretnina, i to u svrhu zaštite vlasnika nekretnine od posjeta neregistriranih osoba, a i u skladu sa Zakonom o zaštiti podataka i Zakonom o posredovanju u prometu nekretnina.
Pri razgledavanju svake nekretnine potencijalni kupac/najmoprimatelj/ zakupoprimac je obavezan ispuniti i potpisati Ugovor o posredovanju nekkretnina u kojem je navedeno sljedeće:
- osnovni podaci o potencijalnom kupcu/najmoprimatelju/ zakupoprimacu
- osnovni podaci o agenciji
- iznos agencijske provizije
Agencijska provizija za kupca iznosi 3% (+25% PDV) od ukupno dogovorene kupoprodajne cijene.
Agencijska provizija za najmoprimca/zakupnika iznosi jednu mjesečnu najamninu/zakupninu (+ 25% PDV).

ID KOD AGENCIJE: 34670

Patrik Hrštić
Agent s licencom
Mob: +385 91 270 3979
Tel: +385 91 480 8808
E-mail: patrik@dux-nekretnine.hr
www.dux-opatija.com
Si vous voulez en savoir plus, vous pouvez parler à Patrik Hrštić.
Caractéristiques
Transaction
Vente
Typologie
Terrain constructible
Superficie
2 800 m²
Informations sur les prix
Prix
€ 1 000 000
Prix au m²
357 €/m²
Découvrez chaque recoin de la propriété
+23
Options additionnelles

Contacter l'annonceur

Ou