Appartement 4 chambres neuf, deuxième étage, Pješčana Uvala, Vinkuran, Medulin

€ 484 600
4
96 m²
2
2
Oui
Terrasse

Remarque

Annonce mise à jour le 04/02/2026
Description

This description has been translated automatically and may not be accurate

référence: 31934

ISTRIA, SAND BAY Luxury with a sea view and an elevator!

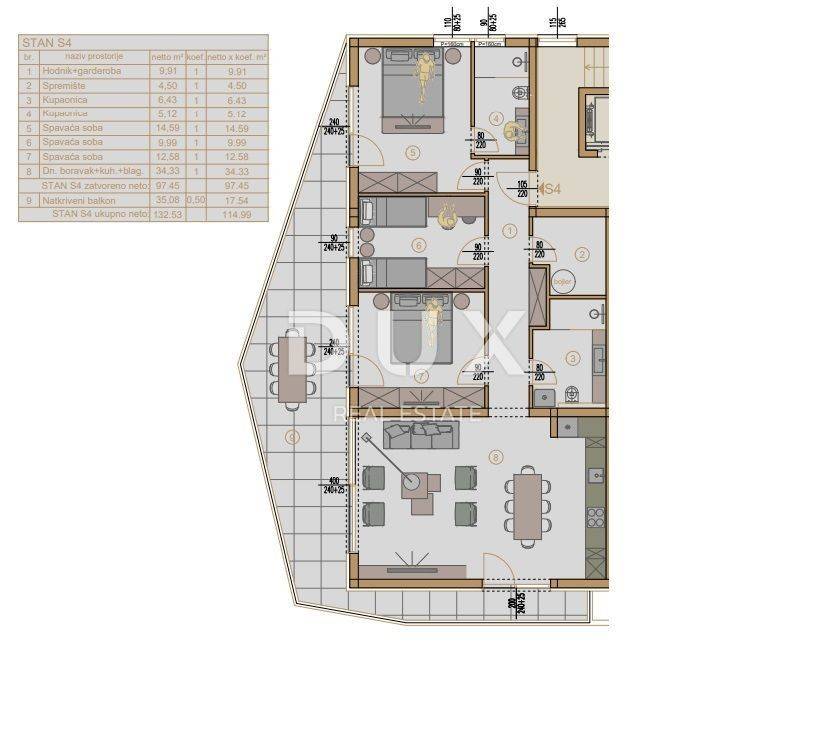
A luxury apartment in a new project is for sale in one of the most attractive locations. It is an apartment that offers 119.12 m2 of living space and is located on the first floor. It consists of a hallway with a wardrobe, a large living room with a kitchen and a dining room with access to a covered terrace, 3 bedrooms and two bathrooms. LOCATION: - the project is located 400 meters as the crow flies from the first beach - quiet environment with attractive family houses - walking distance from shops, beach bars, restaurants APARTMENT EQUIPMENT (BUILDING) - within the building there are parking garage spaces and outdoor parking lots that they buy with an additional charge at the displayed price - the building also offers an elevator, which makes this project even more attractive - underfloor heating - air conditioning - parquet in the rooms - electric shutters with mosquito nets Start of work 10/24, expected end of work 12/25. The seller is a legal entity. We are available for all other questions.

Dear clients, the agency commission is charged in accordance with the General Business Conditions: www.dux-nekretnine.hr/opci-uvjeti-poslovanja

ID CODE: 31934

Ivana Škoro
Agent s licencom
Mob: +385 95 388 1059
Tel: +385 91 480 8808
E-mail: ivana@dux-istra.com
www.dux-istra.com
Si vous voulez en savoir plus, vous pouvez parler à Ivana Škoro.
Caractéristiques
Typologie
Appartement
Transaction
Vente
Étage
2 étage
Ascenseur
Oui
Superficie
96 m²
Chambres/pièces
4
Chambres
3
Bains/douches
2
Balcon
Non
Terrasse
Oui
Climatisation
Autonome, froid/chaud
Informations sur les prix
Prix
€ 484 600
Prix au m²
5 048 €/m²
Efficacité énergétique
  • Année de construction

    2025
  • État

    Nouveau / En construction
  • Climatisation

    Autonome, froid/chaud
  • Certification énergétique

    Exempt
Découvrez chaque recoin de la propriété
+10
Options additionnelles

Contacter l'annonceur

Ou