map icon

Appartement 3 chambres neuf, rez-de-chaussée, Centar, Krk

Krk
€ 560 000
3
93 m²
1
0
Terrasse
Meublé

Remarque

Annonce mise à jour le 17/11/2025
Description

This description has been translated automatically and may not be accurate

référence: 29341

CITY OF KRK - CENTER - NEW CONSTRUCTION - Ground floor with terrace and 2 parking spaces

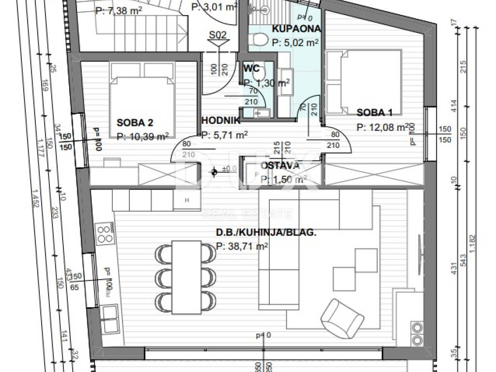
TOP LOCATION 200 meters from the sea, residential building with 3 residential units in the center of Krk. On the ground floor of a unique, quality-built building, there is an apartment with a living area of 75 m2, which offers a combination of practicality and comfort. With a spacious hallway, storage room, pantry, bathroom, separate toilet, two bedrooms and an "Open-space" concept kitchen, dining room and living room, this apartment has everything you need for a pleasant stay in the city of Krk. The living room leads to a covered terrace of 27 m2, an ideal place to relax and enjoy the fresh air. It is equipped with air conditioning in all rooms and underfloor heating with separate regulators in the rooms. High-quality CORTIZO ALU carpentry, high-quality floor and wall coverings and high-quality sanitary ware add a luxurious touch to this modern apartment. With two secured parking spaces, you will have a practical solution for parking your vehicle. The infrastructure will be completely connected and preparations will be made for video surveillance. The completion of the works is planned for June 2024, and if you want to take over the furnished apartment, you can expect handover by professional interior designers in the fall of 2024. Interior renderings available on request. *** Dear clients, the agency commission is charged in accordance with the General Business Conditions: www.dux-nekretnine.hr/opci-uvjeti-poslovanja

ID CODE: 29341

Iva Mršić
Agent s licencom
Mob: +385 91 575 9388
Tel: +385 91 480 8808
E-mail: iva@dux-nekretnine.hr
www.dux-krk.com
Si vous voulez en savoir plus, vous pouvez parler à Iva Mršić.
Caractéristiques
Typologie
Appartement
Transaction
Vente
Étage
Rez-de-chaussée
Superficie
93 m²
Chambres/pièces
3
Chambres
2
Bains/douches
1
Meublé
Oui
Balcon
Non
Terrasse
Oui
Climatisation
Autonome, froid/chaud
Informations sur les prix
Prix
€ 560 000
Prix au m²
6 022 €/m²
Efficacité énergétique
  • Année de construction

    2024
  • État

    Nouveau / En construction
  • Climatisation

    Autonome, froid/chaud
  • Certification énergétique

    Exempt
Découvrez chaque recoin de la propriété
+17
Options additionnelles

Contacter l'annonceur

Ou