1/9


Maison individuelle 283 m², neuve, Labin
€ 778 000
Annonce mise à jour le 04/02/2026
Description
référence: 22475
ID CODE: 22475
Iva Zajc
Agent s licencom
Mob: +385 92 235 9472
Tel: +385 91 480 8808
E-mail: iva@dux-istra.com
www.dux-istra.com
Caractéristiques
- Typologie
- Maison individuelle
- Transaction
- Vente
- Étage
- 1
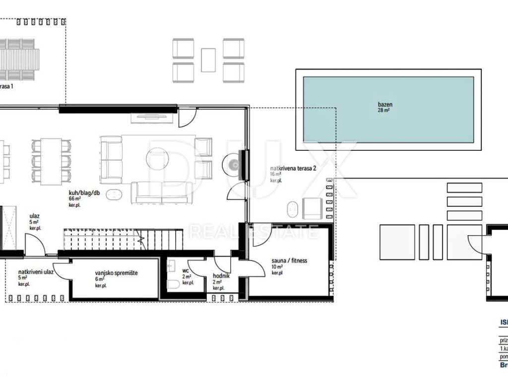
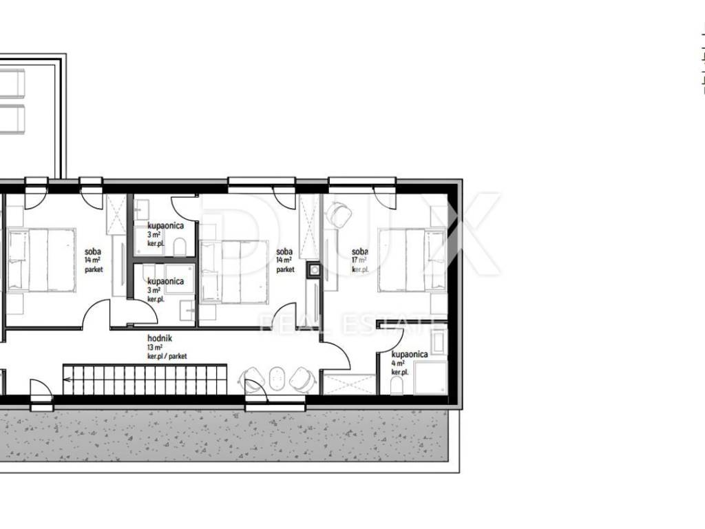
- Superficie
- 283 m² | commerciale 2 930 m²
- Chambres/pièces
- 5+
- Chambres
- 4
- Bains/douches
- 3+
- Balcon
- Non
- Terrasse
- Non
- Climatisation
- Autonome, froid/chaud
Autres caractéristiques
Détail de la surface
Habitation
- Étage
- 1
- Superficie
- 283,0 m²
- Coefficient
- 100%
- Type de superficie
- Habitable
- Sup. commercial
- 283,0 m²
Terrain
- Étage
- Rez-de-chaussée
- Superficie
- 2 647,0 m²
- Coefficient
- 100%
- Type de superficie
- Accessoires
- Sup. commercial
- 2 647,0 m²
Informations sur les prix
- Prix
- € 778 000
- Prix au m²
- 266 €/m²
Découvrez chaque recoin de la propriété
Options additionnelles