Magasin - Local commercial en Vente

€ 540 000
2
135 m²

Remarque

Annonce mise à jour le 04/02/2026
Description

référence: 21650

ISTRA, PULA - Poslovni prostor u centru grada!

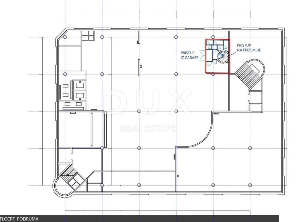
Prodaje se poslovni prostor u centru grada ukupne površine 135m2 koji se sastoji od prizemlja i podruma.
U prizemlju se nalazi uredski dio, dok se iz prizemlja unutarnjim stepenicama dolazi u podrum gdje su se smjestila 3 sanitarna čvora i ostava.
Prostor je u cijelosti klimatiziran.
Prostor ima 3 ulaza, jedan s glavne ceste, drugi s unutarnje strane zgrade i treći iz garaže.

Prostor je idealan za bilo kakvu vrstu poslovanja, a ono što ga čini zanimljivim jest lakoća dolaska i odlaska stranaka te blizina svih potrebnih sadržaja.

Poštovani klijenti, agencijska provizija naplaćuje se u skladu s Općim uvjetima poslovanja
www.dux-nekretnine.hr/opci-uvjeti-poslovanja

ID KOD AGENCIJE: 21650

DUX Pula
Mob: +385 91 480 8808
Tel: +385 51 518 174
E-mail: info@dux-istra.com
www.dux-istra.com
Caractéristiques
Transaction
Vente
Superficie
135 m²
Chambres/pièces
2 chambres/pièces
Informations sur les prix
Prix
€ 540 000
Prix au m²
4 000 €/m²
Efficacité énergétique
  • Climatisation

    Autonome, froid/chaud
Découvrez chaque recoin de la propriété
+13
Options additionnelles

Contacter l'annonceur

Ou