map icon

Appartement 3 chambres Vendita, Osijek

Osijek
€ 200 000
3

Remarque

Annonce mise à jour le 02/05/2026
Description

référence: 3001

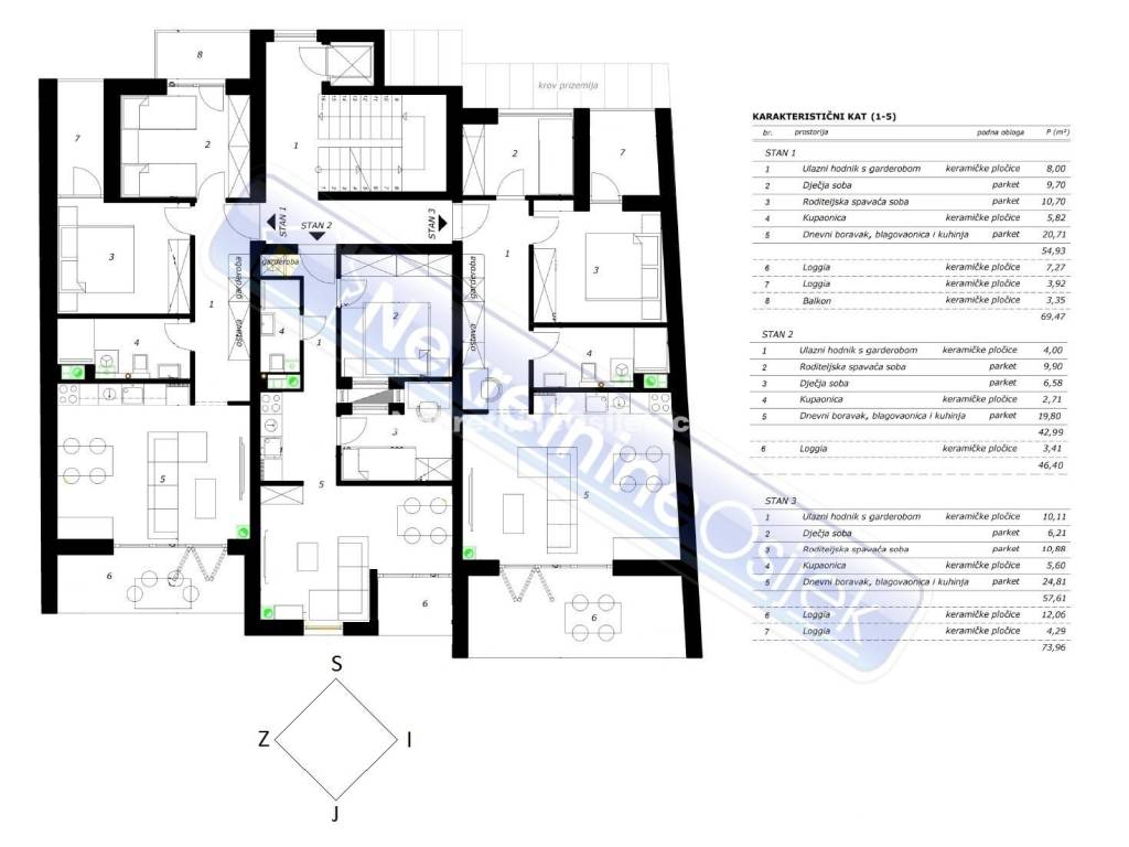
ŠIRI CENTAR GRADA,-POČETAK RETFALE... NOVOGRADNJA, zgrada u izgradnji.
-3-sobni stanovi od 69,47m2, 49,70m2, 73,96m2.
-Zgrada od 5 katova, lift u zgradi,
-osiguran parking, plinsko centralno grijanje, odvojena brojila, svaki stan ima balkon ili lođu.---
---KVALITETNA GRADNJA.....TOP LOKACIJA !!!

-Cijena: 2.600 eur/m2 + parking za 100% avansne uplate (inače dogovor ovisno o visini avansa)
-natkrivena ili nenatkrivena parkirna mjesta-
kupac ne plaća porez na promet nekretnina-

-planirani rok dovršetka kraj 2026g.-

-za više informacija slobodno nas nazovite-

-SVAKA NIŽA CIJENA OBJAVLJENA ZA OVU NEKRETNINU VRIJEDI I KOD NAS
- šifra nekretnine: 3001-

[gallery ids="14622,14623"]
Caractéristiques
Typologie
Appartement
Transaction
Vente
Chambres/pièces
3
Balcon
Non
Terrasse
Non
Informations sur les prix
Prix
€ 200 000
Efficacité énergétique
  • Certification énergétique

    Exempt
Options additionnelles

Contacter l'annonceur

Ou