Appartement 3 chambres neuf, premier étage, Tribunj

€ 405 960
3
105 m²
1
1
Terrasse

Remarque

Annonce mise à jour le 04/05/2026
Description

This description has been translated automatically and may not be accurate

référence: DA100066310

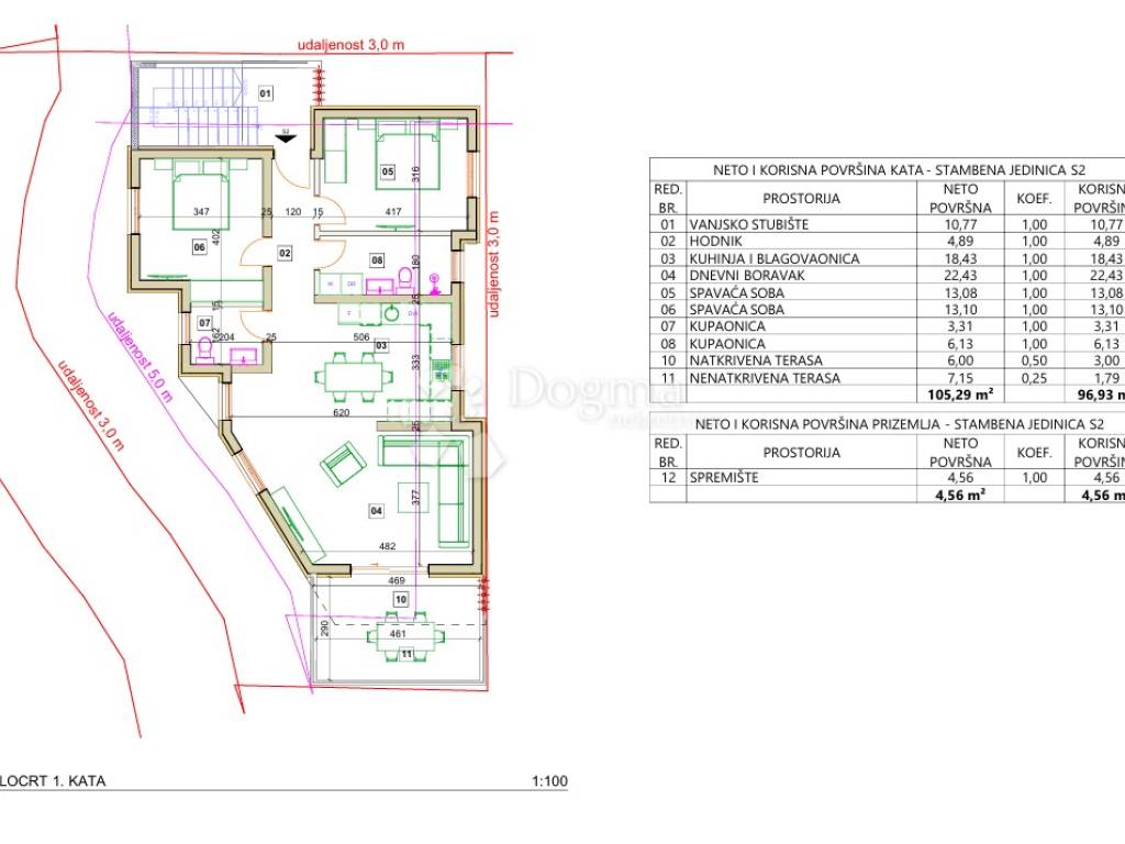
New Construction in Tribunj Modern Apartment S1, 400 m from the Sea, 105.29 m

We present an attractive apartment in a new development located in a quiet part of Tribunj, just 400 meters from the sea and 500 meters from the town center. Construction is scheduled to begin on September 15, 2026.

The apartment is situated in a smaller residential building with only two units, ensuring additional privacy and tranquility.

The apartment consists of two bedrooms, a spacious living room connected to the kitchen and dining area in an open-plan layout, a bathroom and a separate toilet, and a large terrace of 13.15 m, ideal for relaxing and enjoying the Mediterranean atmosphere.

The apartment also includes a storage room and one parking space.

The building is designed according to modern construction and energy efficiency standards, with an emphasis on high-quality materials and contemporary design. The location offers peace, privacy, and proximity to all necessary amenities shops, restaurants, and beaches.

For all inquiries or to schedule a viewing, please contact us with confidence.

Mikaela Anna Magdalena Grubišić
mikaela.grubisic@dogma-nekretnine.com

+385 95 547 7137

ID CODE: DA100066310

Ilija Računica
Asistent u posredovanju
Mob: 091/495-7567
Tel: 022/646-360, 022/646-361
E-mail: ilija.racunica@dogma-nekretnine.com
www.dogma-dalmacija.com
Si vous voulez en savoir plus, vous pouvez parler à Ilija Računica.
Caractéristiques
Typologie
Appartement
Transaction
Vente
Étage
1 étage
Superficie
105 m²
Chambres/pièces
3
Chambres
2
Bains/douches
1
Balcon
Non
Terrasse
Oui
Informations sur les prix
Prix
€ 405 960
Prix au m²
3 866 €/m²
Efficacité énergétique
  • Année de construction

    2027
  • État

    Nouveau / En construction
  • Certification énergétique

    Exempt
Découvrez chaque recoin de la propriété
+6
Options additionnelles

Contacter l'annonceur

Ou