1/19


Appartement 3 chambres deuxième étage, Primošten
€ 337 000
Annonce mise à jour le 11/12/2025
Description
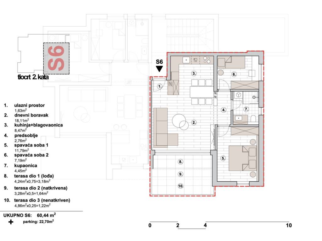
référence: DA100065507
ID CODE: DA100065507
Siniša Klem
Agent s licencom
Mob: 095/399-4450
Tel: 022/646-360, 022/646-361
E-mail: sinisa.klem@dogma-nekretnine.com
www.dogma-dalmacija.com
Caractéristiques
- Typologie
- Appartement
- Transaction
- Vente
- Étage
- 2 étage
- Superficie
- 71 m²
- Chambres/pièces
- 3
- Chambres
- 2
- Bains/douches
- 1
- Balcon
- Non
- Terrasse
- Non
Informations sur les prix
- Prix
- € 337 000
- Prix au m²
- 4 746 €/m²
Découvrez chaque recoin de la propriété
Options additionnelles