map icon

Appartement 4 chambres deuxième étage, Stari Medulin, Medulin

Medulin
€ 1
4
150 m²
2
2
Terrasse

Remarque

Annonce mise à jour le 18/11/2025
Description

This description has been translated automatically and may not be accurate

référence: IS1516544

Spacious elegant apartment in a prime location with a sea view.

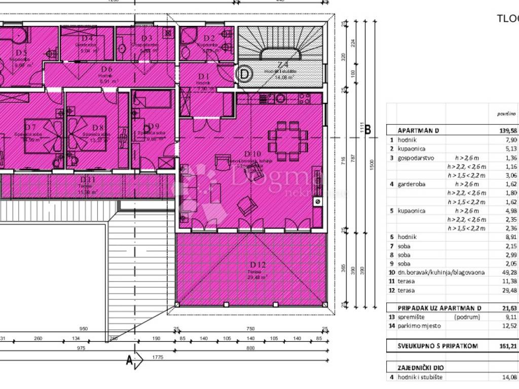
Apartment D, 2nd floor, net usable area of 150 m2, in nature 139 m2 of living space, consists of:
+ 3 bedrooms
+ 2 bathrooms
+ wardrobe
+ 1 utility room
+ living room
+ kitchen, dining room
+ 2 terraces (11 m2 and 29 m2)
+ storage room in the basement
+ 1 parking space

Heating / cooling is regulated by air conditioning.

Considering that the apartment is located in the municipality of Medulin, which is the second in Croatia in terms of the number of sunny days per year, a big bonus is that this property also has solar panels through which a considerable amount of energy is obtained.

Location

The location is extremely quiet and sunny with a pleasant climate even outside the summer months, and with various heating methods, solar panels and an 8 cm facade, staying in the house is pleasant throughout the year.
The sea is only 200 meters from the house, and within a radius of 500 meters there are all the necessary amenities, shops, restaurants, an adrenaline park, a pharmacy...
Premantura, and the beautiful nature and beaches of Cape Kamenjak are within your reach, just 4 km from the house, or a few minutes by car or bike.
The same distance of approximately 4 km is to Pula on one side or Medulin on the other, and 10 km to Pula airport.
All this shows us that the location is excellent for several reasons, primarily because of its beauty but also good connections and proximity to all important amenities and destinations!

* It is possible to buy the entire house or apartments individually.
* Neat papers, use permit, apartments are condominiums

A great choice for an investment that brings great income due to its attractive location or a pleasant private stay throughout the year for those who want to enjoy being close to the sea.

For all inquiries and property viewings - Contact:
Filip Panduric
Licensed Agent
+385 99 337 5980
filip.panduric@dogma-nekretnine.com

ID CODE: IS1516544

Filip Pandurić
Agent s licencom
Mob: 099/337-5980
Tel: 052 645 444
E-mail: filip.panduric@dogma-nekretnine.com
www.dogma-istra.com
Si vous voulez en savoir plus, vous pouvez parler à Filip Pandurić.
Caractéristiques
Typologie
Appartement
Transaction
Vente
Étage
2 étage
Superficie
150 m²
Chambres/pièces
4
Chambres
3
Bains/douches
2
Balcon
Non
Terrasse
Oui
Informations sur les prix
Prix
€ 1
Prix au m²
0 €/m²
Efficacité énergétique
  • Année de construction

    2015
  • Certification énergétique

    Exempt
Découvrez chaque recoin de la propriété
+15
Options additionnelles

Contacter l'annonceur

Ou