1/7


Appartement 3 chambres neuf, deuxième étage, Povljana
Povljana€ 340 000
Annonce mise à jour le 18/11/2025
Description
référence: DA100064066
ID CODE: DA100064066
Vlatko Šaran
Agent s licencom
Mob: 098/429-832
Tel: 023/551-400
E-mail: vlatko.saran@dogma-nekretnine.com
www.dogma-nekretnine.com
Caractéristiques
- Typologie
- Appartement
- Transaction
- Vente
- Étage
- 2 étage
- Ascenseur
- Oui
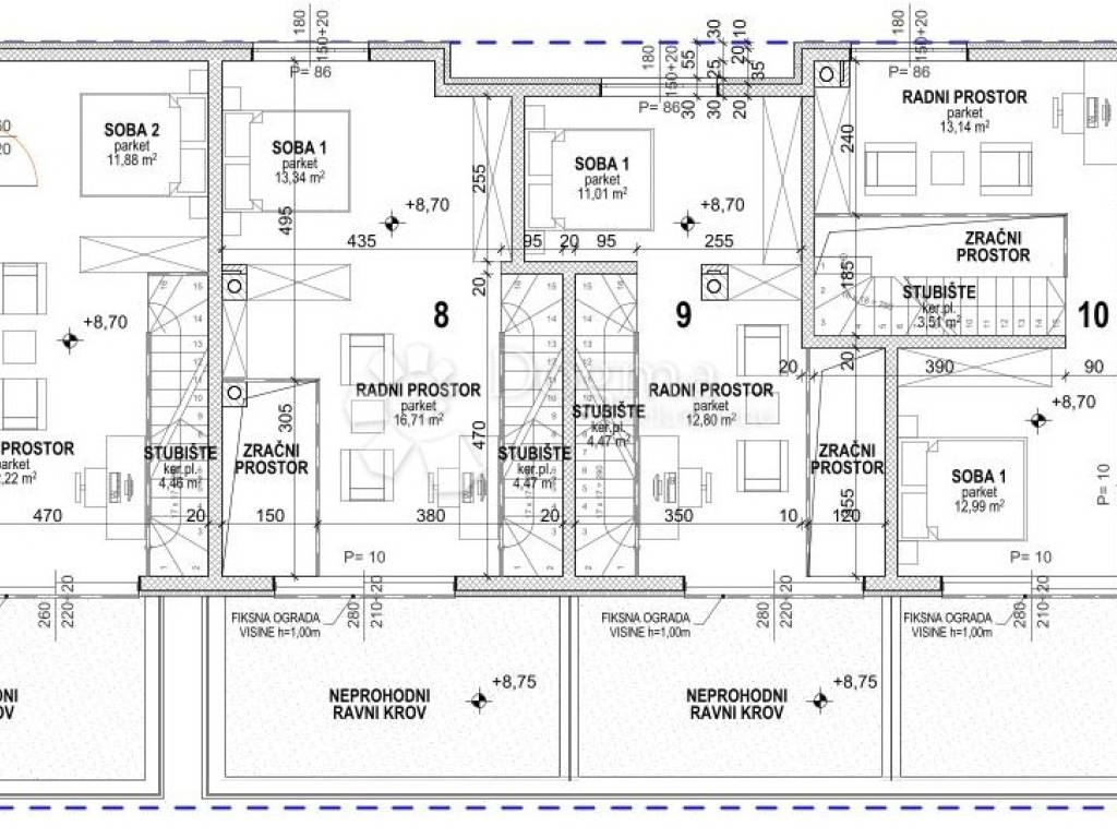
- Superficie
- 99 m²
- Chambres/pièces
- 3
- Chambres
- 2
- Balcon
- Non
- Terrasse
- Oui
- Box, places stationnement
- 1 dans garage/box
- Climatisation
- Autonome, froid/chaud
Informations sur les prix
- Prix
- € 340 000
- Prix au m²
- 3 434 €/m²
Découvrez chaque recoin de la propriété
Options additionnelles