1/3


Appartement 3 chambres neuf, deuxième étage, Centar, Krk
€ 265 000
Annonce mise à jour le 24/01/2026
Description
référence: APP8946
ID CODE: APP8946
Marina Polonijo
Agent s licencom
Mob: 098/329-462
Tel: 051/309-092
E-mail: marina.polonijo@dogma-nekretnine.com
www.dogma-nekretnine.com
Caractéristiques
- Typologie
- Appartement
- Transaction
- Vente
- Étage
- 2
- Ascenseur
- Oui
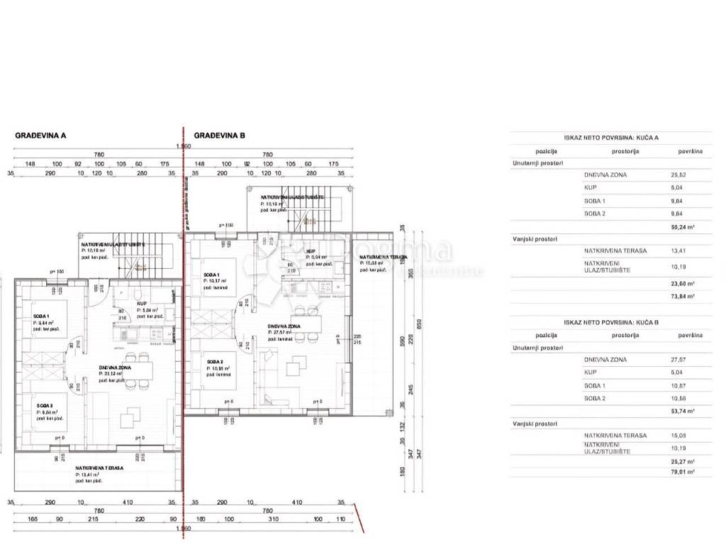
- Superficie
- 54 m² | commerciale 89 m²
- Chambres/pièces
- 3
- Chambres
- 2
- Bains/douches
- 1
- Balcon
- Oui
- Terrasse
- Non
Détail de la surface
Habitation
- Étage
- 2
- Superficie
- 54,0 m²
- Coefficient
- 100%
- Type de superficie
- Habitable
- Sup. commercial
- 54,0 m²
Terrain
- Étage
- Rez-de-chaussée
- Superficie
- 35,0 m²
- Coefficient
- 100%
- Type de superficie
- Accessoires
- Sup. commercial
- 35,0 m²
Informations sur les prix
- Prix
- € 265 000
- Prix au m²
- 2 978 €/m²
Options additionnelles