Appartement 4 chambres neuf, Vodice

€ 223 000
4
74 m²
1
Oui
Balcon
Terrasse

Remarque

Annonce mise à jour le 19/11/2025
Description

This description has been translated automatically and may not be accurate

référence: DA100062957

VODICE - Perfect apartment (new construction) in a quiet part of Vodice

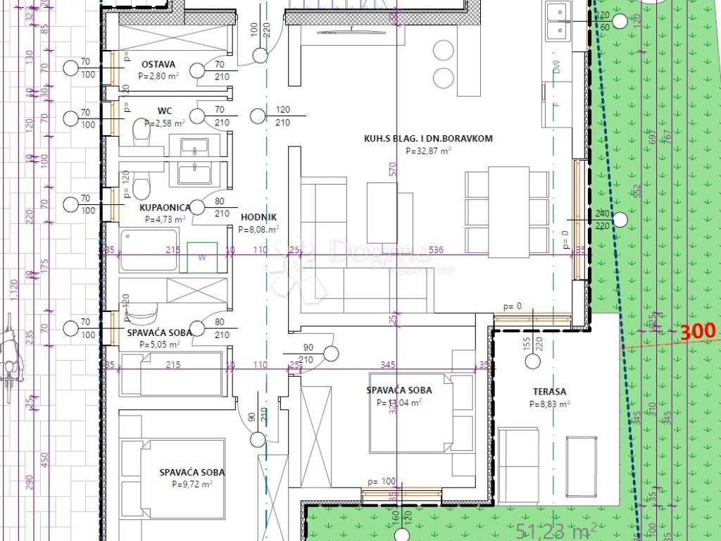
S2 GROUND FLOOR

A beautiful apartment for sale in a new building, located in a quiet part of the town of Vodice, only 1300 meters from the beach and the city center. Vodice is known for its rich history, beautiful beaches and lively tourist spirit, which makes it an ideal place for living and vacationing.

APARTMENT 2 - GROUND FLOOR

Kitchen, dining room
Living room 29.54 29.54
Hallway 7.60 7.60
Bedroom 1 10.72 10.72
Bedroom 2 9.41 9.41
Bedroom 3 5.02 5.02
Bathroom 4.53 4.53
WC 3.51 3.51
Covered terrace 8.60 4.30

Total gross 78.93 net 74.63

The common part of the staircase is 12.50 m2

The apartment is located in a quiet environment that provides the necessary privacy and tranquility, and at the same time is close enough to all important amenities. This spacious apartment features a modern design and functional layout, perfect for family life.

Inside the apartment, the large kitchen with dining room is equipped with modern appliances and offers plenty of space for cooking and spending time with family and friends. The bright and spacious living room is ideal for relaxing after a busy day, providing the comfort and warmth of home.

The apartment has three comfortable bedrooms, each with enough space for a wardrobe and personal belongings, providing privacy for each member of the family. In addition to the main bathroom, the apartment also has a separate toilet for guests, which contributes to functionality and practicality.

Don't miss this great opportunity.

Contact us with confidence.

ID CODE: DA100062957

Josipa Vrcić
Asistent u posredovanju
Mob: 095/901-4869
Tel: 022/646-360, 022/646-361
E-mail: josipa.vrcic@dogma-nekretnine.com
www.dogma-dalmacija.com
Si vous voulez en savoir plus, vous pouvez parler à Josipa Vrcić.
Caractéristiques
Typologie
Appartement
Transaction
Vente
Ascenseur
Oui
Superficie
74 m²
Chambres/pièces
4
Chambres
3
Bains/douches
1
Balcon
Oui
Terrasse
Oui
Informations sur les prix
Prix
€ 223 000
Prix au m²
3 014 €/m²
Efficacité énergétique
  • État

    Nouveau / En construction
  • Certification énergétique

    Exempt
Découvrez chaque recoin de la propriété
+8
Options additionnelles

Contacter l'annonceur

Ou