1/12


Appartement 3 chambres neuf, premier étage, Dobrinj
€ 249 000
Annonce mise à jour le 19/11/2025
Description
référence: APP8694
ID CODE: APP8694
Tihomir Bukvić
Agent s licencom
Mob: 095/906-9255
Tel: +385 51 341 080
E-mail: tihomir.bukvic@dogma-nekretnine.com
www.dogma-nekretnine.com
Caractéristiques
- Typologie
- Appartement
- Transaction
- Vente
- Étage
- 1 étage
- Ascenseur
- Oui
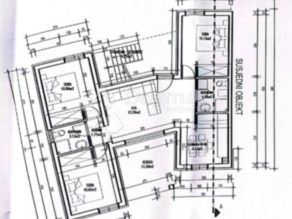
- Superficie
- 66 m²
- Chambres/pièces
- 3
- Chambres
- 2
- Bains/douches
- 1
- Balcon
- Oui
- Terrasse
- Non
Informations sur les prix
- Prix
- € 249 000
- Prix au m²
- 3 773 €/m²
Découvrez chaque recoin de la propriété
Options additionnelles