1/7


Maison individuelle 189 m², Labin
€ 1
5
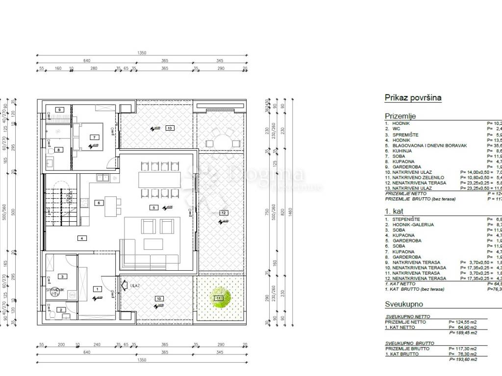
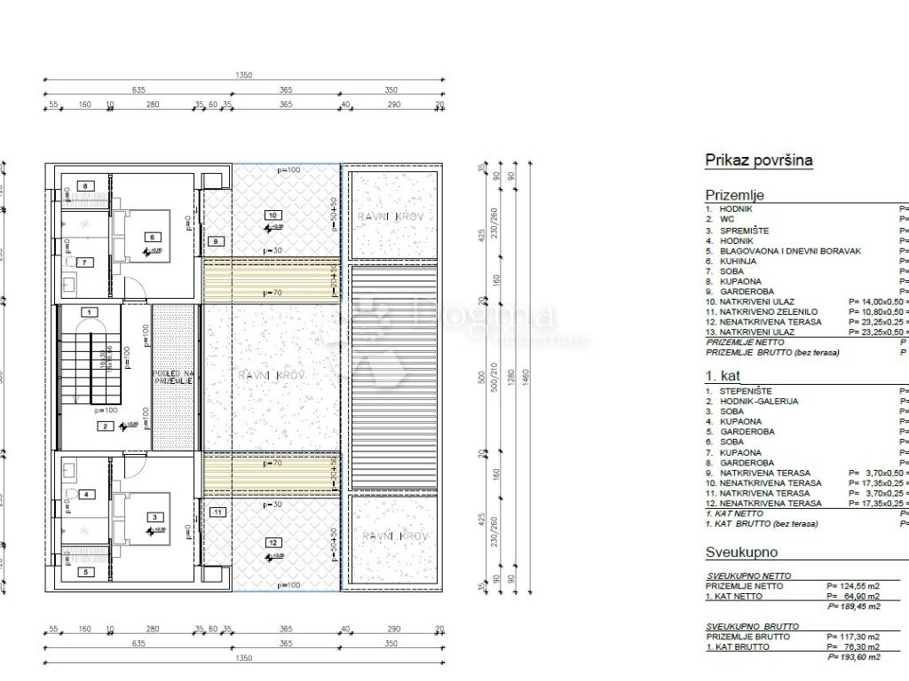
189 m²
3
Oui
Balcon
Terrasse
Annonce mise à jour le 19/11/2025
Description
référence: IS106108
ID CODE: IS106108
Lorena Kogej
Agent s licencom
Mob: 091/738-7200
Tel: 052/639-276
E-mail: lorena.kogej@dogma-nekretnine.com
www.dogma-nekretnine.com
Sandra Miletić
Agent s licencom
Mob: 091/988-5843
Tel: 052/639-276
E-mail: sandra.miletic@dogma-nekretnine.com
www.dogma-nekretnine.com
Caractéristiques
- Typologie
- Maison individuelle
- Transaction
- Vente
- Étage
- 1
- Ascenseur
- Oui
- Superficie
- 189 m² | commerciale 1 465 m²
- Chambres/pièces
- 5
- Chambres
- 3
- Bains/douches
- 3
- Balcon
- Oui
- Terrasse
- Oui
Autres caractéristiques
Détail de la surface
Habitation
- Étage
- 1
- Superficie
- 189,0 m²
- Coefficient
- 100%
- Type de superficie
- Habitable
- Sup. commercial
- 189,0 m²
Terrain
- Étage
- Rez-de-chaussée
- Superficie
- 1 276,0 m²
- Coefficient
- 100%
- Type de superficie
- Accessoires
- Sup. commercial
- 1 276,0 m²
Informations sur les prix
- Prix
- € 1
- Prix au m²
- 0 €/m²
Découvrez chaque recoin de la propriété
Options additionnelles