1/10


Appartement 3 chambres neuf, troisième étage, Vir
€ 390 000
Annonce mise à jour le 19/11/2025
Description
référence: DA784
ID CODE: DA784
Andrea Milak
Agent s licencom
Mob: 098/809-094
Tel: 023/551-400
E-mail: andrea.culi@dogma-nekretnine.com
www.dogma-nekretnine.com
Caractéristiques
- Typologie
- Appartement
- Transaction
- Vente
- Étage
- 3
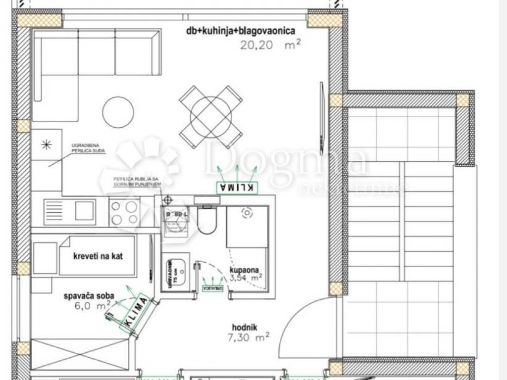
- Superficie
- 118 m² | commerciale 136 m²
- Chambres/pièces
- 3
- Chambres
- 2
- Bains/douches
- 2
- Balcon
- Non
- Terrasse
- Oui
Détail de la surface
Habitation
- Étage
- 3
- Superficie
- 118,0 m²
- Coefficient
- 100%
- Type de superficie
- Habitable
- Sup. commercial
- 118,0 m²
Terrain
- Étage
- Rez-de-chaussée
- Superficie
- 18,0 m²
- Coefficient
- 100%
- Type de superficie
- Accessoires
- Sup. commercial
- 18,0 m²
Informations sur les prix
- Prix
- € 390 000
- Prix au m²
- 2 868 €/m²
Découvrez chaque recoin de la propriété
Options additionnelles