1/10


Appartement 3 chambres neuf, deuxième étage, Vir
€ 340 000
Annonce mise à jour le 19/11/2025
Description
référence: DA781
ID CODE: DA781
Andrea Milak
Agent s licencom
Mob: 098/809-094
Tel: 023/551-400
E-mail: andrea.culi@dogma-nekretnine.com
www.dogma-nekretnine.com
Caractéristiques
- Typologie
- Appartement
- Transaction
- Vente
- Étage
- 2
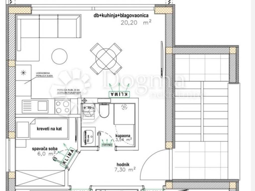
- Superficie
- 116 m² | commerciale 128 m²
- Chambres/pièces
- 3
- Chambres
- 2
- Bains/douches
- 2
- Balcon
- Non
- Terrasse
- Oui
Détail de la surface
Habitation
- Étage
- 2
- Superficie
- 116,0 m²
- Coefficient
- 100%
- Type de superficie
- Habitable
- Sup. commercial
- 116,0 m²
Terrain
- Étage
- Rez-de-chaussée
- Superficie
- 12,0 m²
- Coefficient
- 100%
- Type de superficie
- Accessoires
- Sup. commercial
- 12,0 m²
Informations sur les prix
- Prix
- € 340 000
- Prix au m²
- 2 656 €/m²
Découvrez chaque recoin de la propriété
Options additionnelles