map icon

Appartement 3 chambres 150 m², Šibenik

Šibenik
€ 550 000
3
150 m²
3

Remarque

Annonce mise à jour le 03/05/2026
Description

référence: 2258

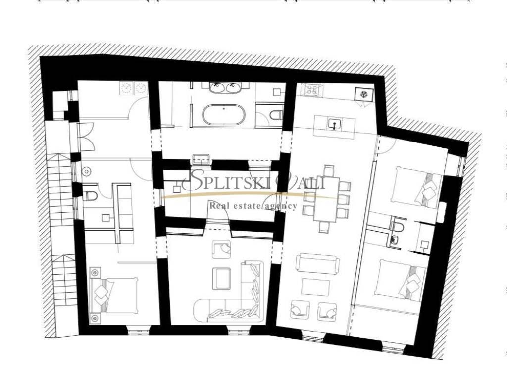
Prodaje se ekskluzivan stan u staroj gradskoj jezgri Šibenika, smješten na prvom katu kamene kuće uz more.
Stan ima 150 m te nudi panoramski pogled na more i šibenski kanal sv. Ante.
Sastoji se od ulaznog predsoblja, prostranog dnevnog boravka s kuhinjom i blagovaonicom, dvije spavaće sobe s zajedničkom kupaonicom te dodatne kupaonice.
U središnjem dijelu stana nalazi se unutarnji atrij koji pruža dodatan privatni vanjski prostor (postavljene instalacije za jacuzzi).
Na desnoj strani nekretnine smješten je dodatni stambeni prostor koji uključuje kuhinju, dnevni boravak, spavaću sobu i kupaonicu.
Zahvaljujući rasporedu prostorija, stan omogućuje prenamjenu u dvije zasebne stambene jedinice, svaka s vlastitim ulazom.
Stan je u potpunosti renoviran, pri čemu su zamijenjene sve instalacije, keramika, podovi i vanjski otvori. Kupaonice su opremljene podnim grijanjem, a na ulazu u kuću postavljene su instalacije za video nadzor i parlafon.
Agencijska provizija iznosi 2%+PDV.
Za razgled nekretnine potrebno je potpisati Ugovor o posredovanju, sukladno Zakonu o prometu nekretninama.
Za više informacija i razgledavanje, kontaktirajte nas.
Petra- 099 165 5551
Si vous voulez en savoir plus, vous pouvez parler à Petra Pahor.
Caractéristiques
Typologie
Appartement
Transaction
Vente
Superficie
150 m²
Chambres/pièces
3
Chambres
3
Bains/douches
3
Meublé
Non
Climatisation
Froid/chaud
Informations sur les prix
Prix
€ 550 000
Prix au m²
3 667 €/m²
Efficacité énergétique
  • Climatisation

    Froid/chaud
  • Certification énergétique

    Exempt
Découvrez chaque recoin de la propriété
+14
Options additionnelles

Contacter l'annonceur

Ou