Maison individuelle 122 m², neuve, Centar - Gulići, Poreč

€ 505 000
4
122 m²
3+
Non
Cave

Remarque

Annonce mise à jour le 23/12/2025
Description

This description has been translated automatically and may not be accurate

référence: 1818

K182
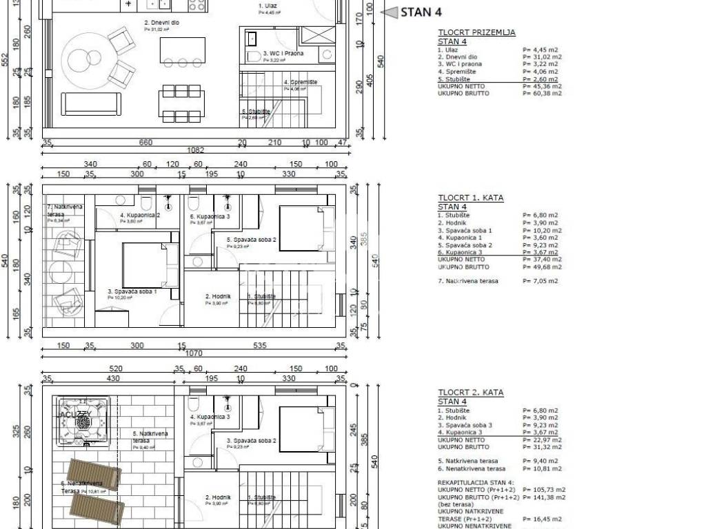
The house extends over three floors and has a total net area of 122.18m2 with covered terraces.
On the ground floor there is a dining room, kitchen and living room according to the open space concept with access to the terrace and yard 30 m2, guest toilet with laundry room, storage room.
On the 1st floor, there are two bedrooms, each with its own bathroom, and one bedroom has access to a covered terrace of 6.34 m2.
On the 2nd floor, there is a master bedroom with its own bathroom and access to a spacious terrace with a place for a jacuzzi with a beautiful view of the sea.
The house has one parking space.
All floors have electric underfloor heating and inverter air conditioners.
The planned completion of construction is at the end of 2024.
This house is an ideal solution to the housing issue or as an investment for the purpose of tourist rental.
All necessary facilities are located near the apartment, school, kindergarten, shops, post office, pharmacy, hospital...
When buying this property, the buyer does not pay the 3% real estate tax.
Caractéristiques
Typologie
Maison individuelle
Transaction
Vente
Étage
1
Étages du bâtiment
3
Ascenseur
Non
Superficie
122 m² | commerciale 152 m²
Chambres/pièces
4
Chambres
3
Bains/douches
3+
Meublé
Non
Box, places stationnement
1 place(s) de parking
Chauffage
Individuel, au sol
Climatisation
Froid/chaud
Détail de la surface

Habitation

Étage
1
Superficie
122,0 m²
Coefficient
100%
Type de superficie
Habitable
Sup. commercial
122,0 m²

Terrain

Étage
Rez-de-chaussée
Superficie
30,0 m²
Coefficient
100%
Type de superficie
Accessoires
Sup. commercial
30,0 m²
Informations sur les prix
Prix
€ 505 000
Prix au m²
3 322 €/m²
Efficacité énergétique
  • Année de construction

    2024
  • État

    Nouveau / En construction
  • Chauffage

    Individuel, au sol
  • Climatisation

    Froid/chaud
Découvrez chaque recoin de la propriété
+8
Options additionnelles

Contacter l'annonceur

Ou