Villa indépendante 277 m², neuve, Centar - Gulići, Poreč

€ 1 500 000
4
277 m²
3+
Non

Remarque

Annonce mise à jour le 02/05/2026
Description

This description has been translated automatically and may not be accurate

référence: 1872

K197
Modern villa with swimming pool and roof terrace 300m from the sea.
The villa will spread over three floors, ground floor, first floor and roof terrace.
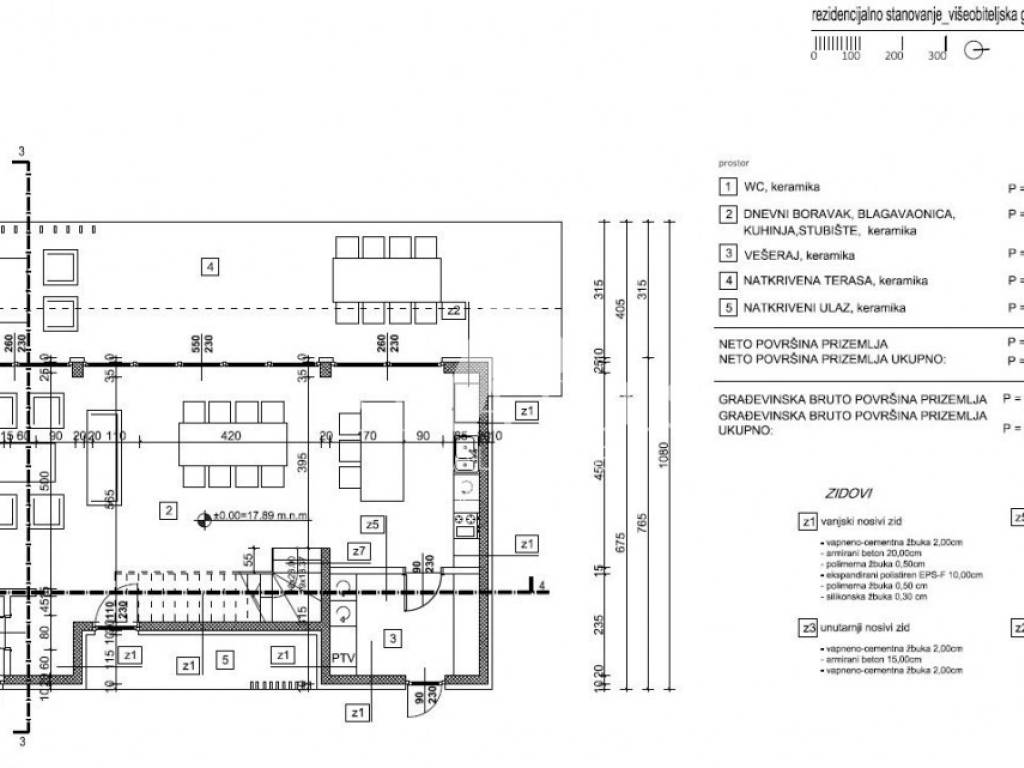
On the ground floor there is a guest toilet, boiler room/laundry room, spacious living room, kitchen and dining room according to the open space concept, with access to a covered terrace and yard where there is a sunbathing area and a swimming pool.
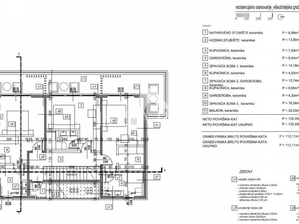
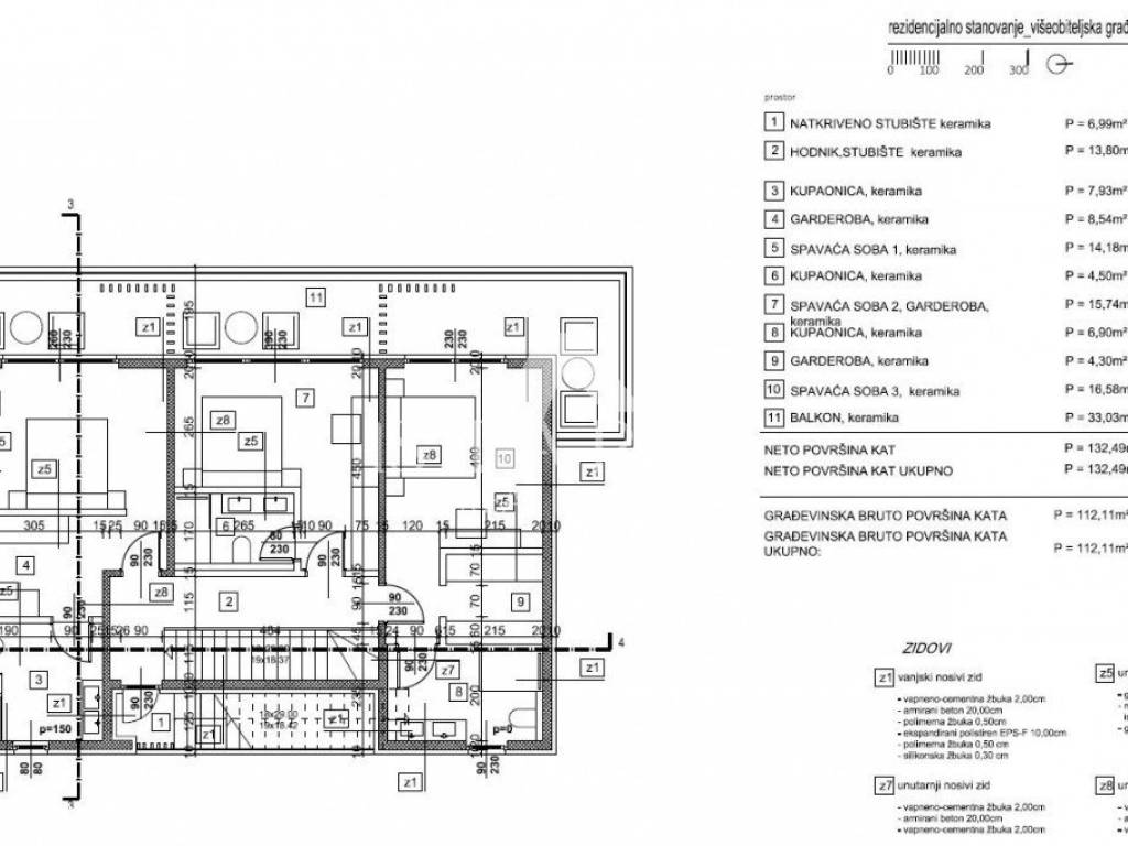
On the first floor there are three bedrooms, each with its own bathroom and access to the terrace, while two bedrooms have their own wardrobes.
From the 1st floor, stairs lead to the roof terrace with a pergola, where there will be a sun deck and a jacuzzi connection. The roof terrace will offer a wonderful view of the Istrian landscape, the sea and a beautiful sunset in the evening.
The villa will have 2 parking spaces.
Caractéristiques
Typologie
Villa indépendante
Transaction
Vente
Étage
1
Étages du bâtiment
2
Ascenseur
Non
Superficie
277 m² | commerciale 677 m²
Chambres/pièces
4
Chambres
3
Bains/douches
3+
Meublé
Non
Box, places stationnement
1 place(s) de parking
Chauffage
Individuel, au sol
Climatisation
Froid/chaud
Autres caractéristiques
  • Piscine
Détail de la surface

Habitation

Étage
1
Superficie
277,0 m²
Coefficient
100%
Type de superficie
Habitable
Sup. commercial
277,0 m²

Terrain

Étage
Rez-de-chaussée
Superficie
400,0 m²
Coefficient
100%
Type de superficie
Accessoires
Sup. commercial
400,0 m²
Informations sur les prix
Prix
€ 1 500 000
Prix au m²
2 216 €/m²
Efficacité énergétique
  • Année de construction

    2024
  • État

    Nouveau / En construction
  • Chauffage

    Individuel, au sol
  • Climatisation

    Froid/chaud
Découvrez chaque recoin de la propriété
+24
Options additionnelles

Contacter l'annonceur

Ou