Appartement 3 chambres 131 m², Banjole, Medulin

€ 325 000
3
131 m²
2
Cave

Remarque

Annonce mise à jour le 03/05/2026
Description

This description has been translated automatically and may not be accurate

référence: 3412

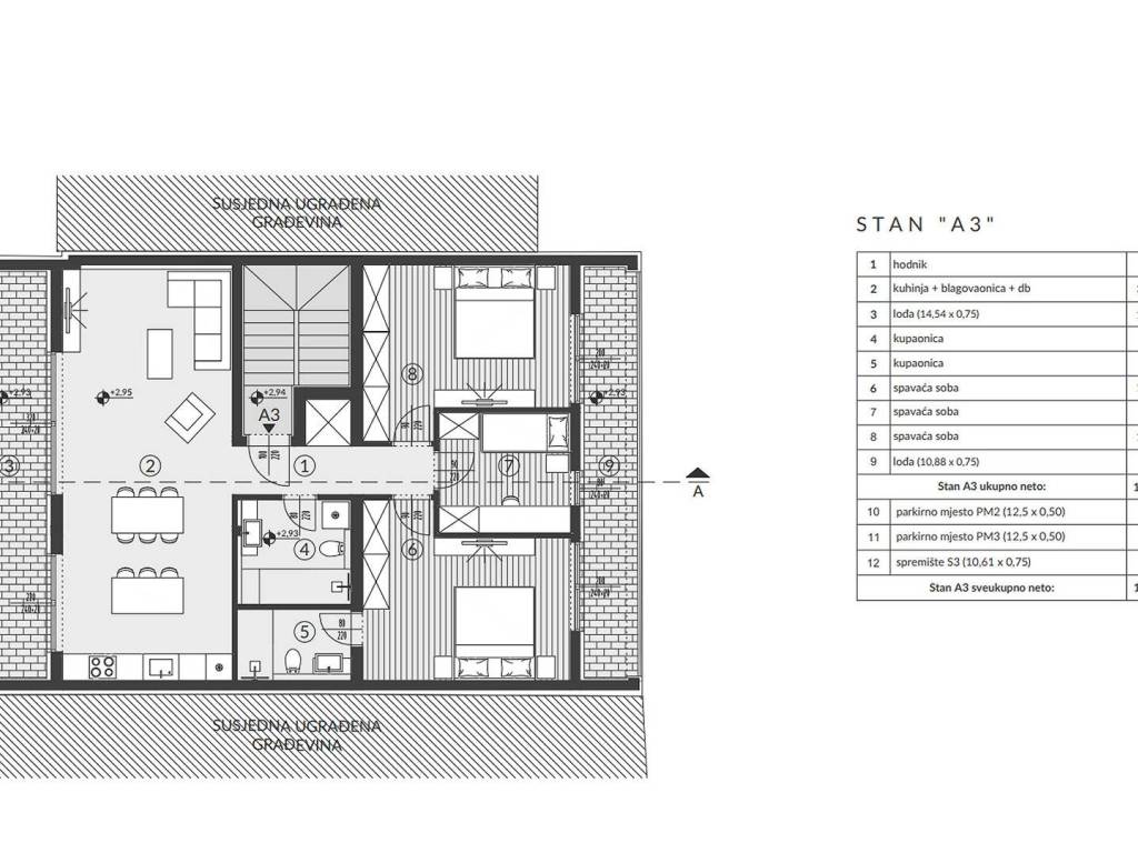
Spacious three-bedroom apartment in Banjole (Medulin), located on the first floor with a total area of 130.63 m, consists of an open-space living room, kitchen and dining area, three bedrooms (one with its own bathroom), additional bathroom, hallway, two terraces and a storage room, includes two parking spaces and a basement storage.The apartment has 3 air conditioners.PRICE REDUCED, GREAT OPPORTUNITY!
Caractéristiques
Typologie
Appartement
Transaction
Vente
Superficie
131 m²
Chambres/pièces
3
Chambres
3
Bains/douches
2
Meublé
Non
Climatisation
Froid/chaud
Informations sur les prix
Prix
€ 325 000
Prix au m²
2 481 €/m²
Efficacité énergétique
  • Climatisation

    Froid/chaud
  • Certification énergétique

    Exempt
Découvrez chaque recoin de la propriété
+23
Options additionnelles

Contacter l'annonceur

Ou