Bureau - Cabinet en Vente

€ 100 000
1

Remarque

Annonce mise à jour le 26/11/2025
Description

This description has been translated automatically and may not be accurate

référence: RE880246

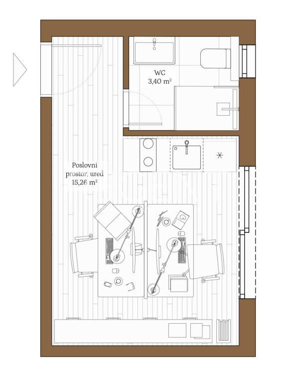
Kaštela, Kaštel Lukšić - espace commercial au rez-de-chaussée

Au rez-de-chaussée d'un nouvel immeuble à Kaštel Lukšić se trouve un espace commercial d'une superficie totale de 18,66 m². L'espace convient aux activités de bureau, aux services de conseil, à un salon de coiffure ou à des usages similaires. Il se compose d'une partie principale de bureau d'une superficie de 15,26 m² et de sanitaires (WC) d'une superficie de 3,40 m². L'espace est fonctionnel, avec un éclairage naturel, une entrée séparée et la possibilité de créer sa propre marque. L'emplacement se situe entre Kaštel Lukšić et Kaštel Kambelovac, dans un quartier calme avec de bonnes liaisons de transport. À proximité se trouvent des commerces, des écoles, des jardins d'enfants et des appartements au sein du même projet, ce qui garantit une clientèle potentielle pour les services locaux. Le début de la construction est prévu pour septembre 2025. L'achèvement des travaux est prévu pour fin 2026, et l'emménagement sera possible après l'obtention du permis d'utilisation. Le paiement peut être convenu par phases, en fonction de l'avancement de la construction. Pour plus d'informations ou pour organiser une visite, n'hésitez pas à nous contacter.
Caractéristiques
Transaction
Vente
Typologie
Bureau - Cabinet
Chambres/pièces
1 bain/douche
Étages du bâtiment
2
Box, places stationnement
1 dans garage/box
Disponibilité
Libre
Informations sur les prix
Prix
€ 100 000
Efficacité énergétique
  • Année de construction

    2026
  • État

    Nouveau / En construction
  • Chauffage

    Collectif, avec air, alimentation électrique
Plan
Découvrez chaque recoin de la propriété
+2
Options additionnelles

Contacter l'annonceur

Ou