Immeuble en Vente

€ 140 000
1

Remarque

Annonce mise à jour le 26/11/2025
Description

This description has been translated automatically and may not be accurate

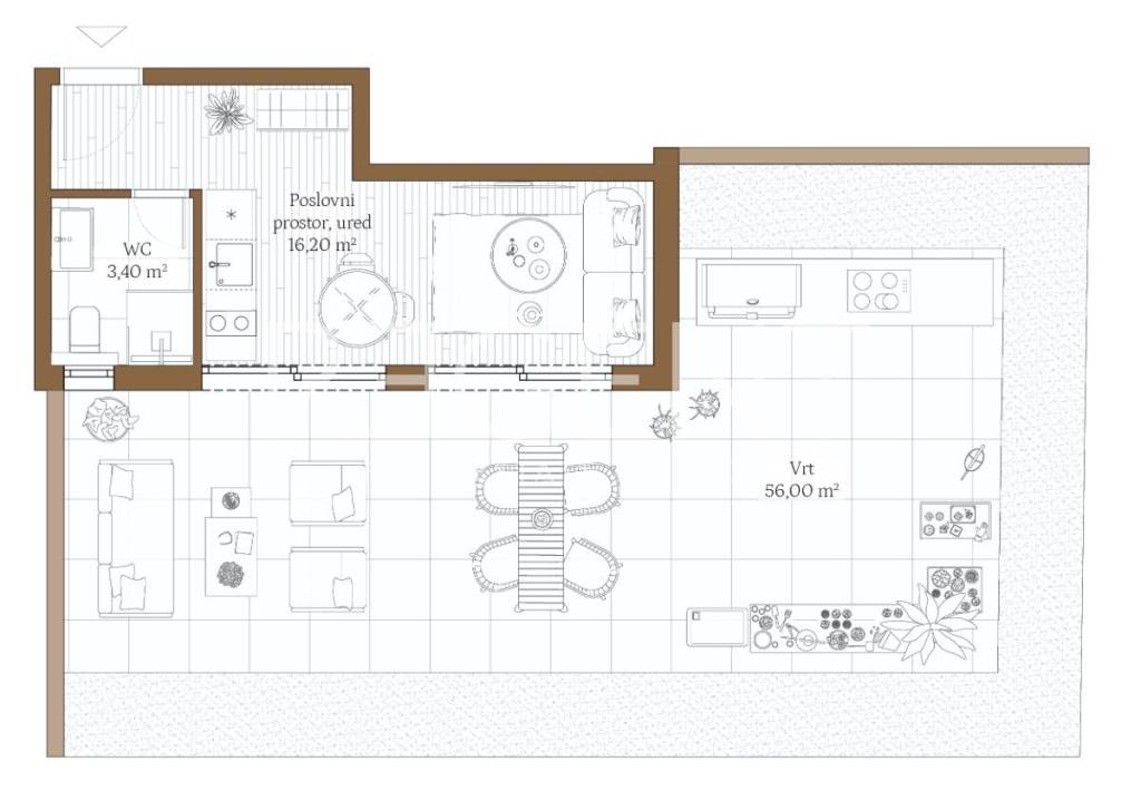
référence: RE264934

Kaštela, Kaštel Lukšić - Espace commercial avec jardin

Au rez-de-chaussée d'un nouveau bâtiment à Kaštel Lukšić, un espace commercial de 33,60 m² est disponible avec un jardin attenant de 56 m². L'espace est adapté aux activités qui nécessitent un emplacement calme et un espace extérieur supplémentaire pour le travail ou les clients, mais aussi comme investissement touristique potentiel avec la possibilité de le transformer en appartement ou en un hébergement similaire. La partie intérieure se compose d'un espace de bureau de 16,20 m² et de sanitaires (WC) de 3,40 m². Le jardin offre la possibilité d'organiser des séances en plein air, des présentations, des ateliers ou du contenu destiné aux clients et aux touristes. Situé entre Kaštel Lukšić et Kaštel Kambelovac, l'espace est situé au rez-de-chaussée d'un immeuble résidentiel moderne dans un quartier calme de la ville. À proximité se trouvent des locataires au sein du projet, ce qui assure des utilisateurs potentiels des services, ainsi que la proximité de la route principale, des commerces, des écoles et des jardins d'enfants. Le début de la construction est prévu pour septembre 2025. L'achèvement des travaux est prévu d'ici la fin de 2026, et l'installation sera possible après l'obtention du permis d'utilisation. Le paiement peut être convenu par étapes, en fonction de l'avancement de la construction. Pour plus d'informations et pour une visite, n'hésitez pas à nous contacter.
Caractéristiques
Transaction
Vente
Typologie
Immeuble
Chambres/pièces
1 bain/douche
Étages du bâtiment
2
Box, places stationnement
1 dans garage/box
Informations sur les prix
Prix
€ 140 000
Efficacité énergétique
  • Année de construction

    2025
  • État

    Nouveau / En construction
  • Chauffage

    Collectif, avec air, alimentation électrique
Plan
Découvrez chaque recoin de la propriété
+2
Options additionnelles

Contacter l'annonceur

Ou