Maison individuelle 1 m², bon état, Dubrava – Klaka - Miroševac, Zagreb

€ 360 000
4
1 m²
1
Non
Balcon
Terrasse

Remarque

Annonce mise à jour le 26/11/2025
Description

This description has been translated automatically and may not be accurate

référence: RE693266

Zagreb, Dubrava - maison familiale avec opportunité d'investissement

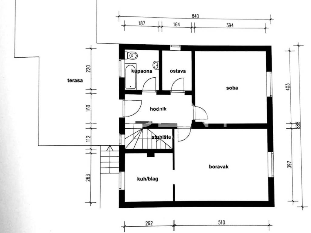
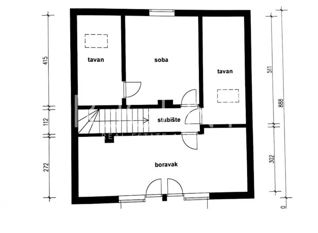
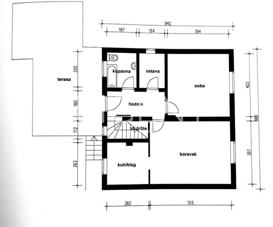
La maison familiale est située dans un quartier calme de Dubrava à Zagreb, dans le cadre verdoyant de la rue Potočka. La propriété est située sur un terrain spacieux et est idéale pour les familles, les investisseurs ou les visionnaires à la recherche d'un mélange de confort et de potentiel. La maison a une superficie totale de 180 m², répartis sur un terrain de 900 m². Le rez-de-chaussée se compose d'une chambre, d'un salon avec salle à manger et d'une cuisine séparée, d'une salle de bains et d'un débarras dans le couloir. L'étage se compose de deux chambres et de deux greniers (débarras) - l'ensemble faisant de la maison une propriété familiale fonctionnelle de quatre pièces. À l'extérieur, il y a un garage et un parking extérieur pour 2 à 3 voitures, et jusqu'à 4 si nécessaire. A côté de la maison se trouve également une terrasse de 35 m², parfaite pour le repos et les réunions. Elle est équipée du chauffage central au gaz de ville et de la climatisation. La propriété est située à proximité immédiate de l'école (400 m), de la maternelle (150 m), de la faculté, du centre de santé, de KB Dubrava (150 m), des centres commerciaux, des installations sportives, de la forêt et du parc de Maksimir. Les liaisons de tramway et de bus sont excellentes, il faut donc seulement 20 minutes en voiture pour rejoindre le centre-ville. La rue est calme et sûre, et le quartier est connu pour sa qualité de vie et son environnement familial agréable. La parcelle offre la possibilité de construction supplémentaire - de nouveaux logements, garages ou locaux commerciaux, ce qui fait de cette propriété une excellente opportunité à la fois pour la vie et pour l'investissement. Pour plus d'informations ou pour organiser une visite, n'hésitez pas à nous contacter.
Caractéristiques
Typologie
Maison individuelle
Transaction
Vente
Étage
Rez-de-chaussée
Étages du bâtiment
1
Ascenseur
Non
Superficie
1 m²
Chambres/pièces
4
Chambres
3
Bains/douches
1
Balcon
Oui
Terrasse
Oui
Box, places stationnement
4 place(s) de parking
Chauffage
Collectif, avec air, alimentation électrique
Climatisation
Autonome, froid/chaud
Informations sur les prix
Prix
€ 360 000
Prix au m²
360 000 €/m²
Efficacité énergétique

Consommation d'énergie

B

Plan
Découvrez chaque recoin de la propriété
+29
Options additionnelles

Contacter l'annonceur

Ou