Appartement 3 chambres neuf, rez-de-chaussée, Kaštela

Prix sur demande
3
1 m²
3+
0
Oui

Remarque

Annonce mise à jour le 26/11/2025
Description

This description has been translated automatically and may not be accurate

référence: RE83690

Split, Kaštela - Appartement de trois pièces avec terrasse de 109 m2 NOUVELLE CONSTRUCTION

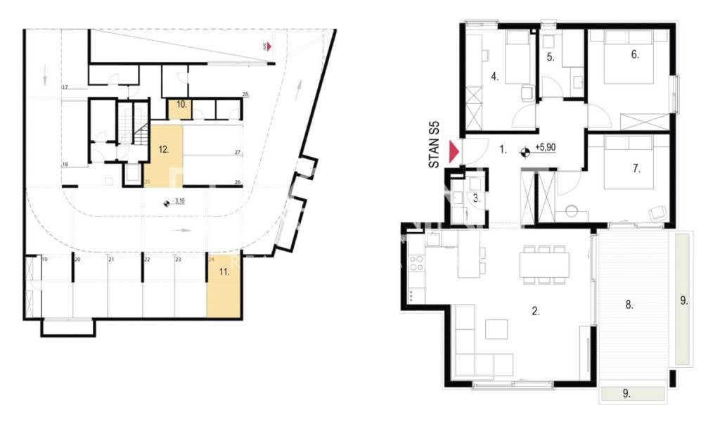
Nous servons d'intermédiaire dans la vente d'un appartement de trois pièces à Kaštela, situé au deuxième étage d'un immeuble résidentiel en construction. La superficie totale de l'appartement est de 109,94 m2. Il contient 84,32 m2 d'espace intérieur et une partie correspondante de la superficie totale de 25,62 m2. L'espace intérieur comprend : un hall d'entrée d'une superficie totale de 11,06 m2, trois chambres d'une superficie totale de 13,26 m2, 11,28 m2 et 9,61 m2, un salon, une cuisine et une salle à manger d'une superficie totale de 32,69 m2, une salle de bain d'une superficie totale de 4,20 m2, des toilettes d'une superficie totale de 2,22 m2. La partie correspondante comprend : une terrasse couverte d'une superficie totale de 8,25 m2 un débarras d'une superficie totale de 1,52 m2, deux places de parking dans le garage de 7,25 m2 et 7,25 m2. La propriété est située dans un quartier résidentiel composé de 10 bâtiments avec 70 appartements. Chaque bâtiment aura 7 appartements, deux au rez-de-chaussée, deux au premier étage, deux au deuxième étage et un dans la superstructure. Grâce au terrain légèrement en cascade sur la micro-localisation, la plupart des appartements auront une vue sur la mer, tandis que tous les autres appartements auront de grandes oasis de verdure et des jardins privés. L'équipement des appartements répond aux normes les plus élevées, en utilisant les meilleurs matériaux en acier et en béton en quantités et en qualité supérieures aux normes et normes antisismiques requises, y compris une structure en béton armé avec des fondations antisismiques, une isolation thermique, une efficacité énergétique selon les normes les plus élevées, des menuiseries PVC de qualité supérieure. La céramique et les sanitaires italiens, ainsi que les parquets de qualité supérieure, soulignent davantage l'impression luxueuse de l'espace. Tous les appartements seront équipés d'un éclairage, d'une climatisation et d'un chauffage SMART HOME numérique à commande WIFI, de systèmes anti-effraction et de systèmes de protection solaire. De plus, la colonie susmentionnée intégrera les dernières réalisations horticoles. En raison de son emplacement à proximité des écoles, des jardins d'enfants, des commerces et de la route principale, l'appartement offre toutes les commodités nécessaires à la vie quotidienne. Pour plus d'informations, n'hésitez pas à nous contacter !
Caractéristiques
Typologie
Appartement
Transaction
Vente
Étage
Rez-de-chaussée
Ascenseur
Oui
Superficie
1 m²
Chambres/pièces
3
Chambres
3
Bains/douches
3+
Terrasse
Non
Informations sur les prix
Prix
Prix sur demande
Efficacité énergétique
  • État

    Nouveau / En construction
  • Certification énergétique

    Exempt
Plan
Screenshot 2024-10-14 at 15.22.26
Découvrez chaque recoin de la propriété
+17
Options additionnelles

Contacter l'annonceur