Appartement 2 chambres neuf, rez-de-chaussée, Makarska

€ 283 408
2
3+
0
Oui

Remarque

Annonce mise à jour le 26/11/2025
Description

This description has been translated automatically and may not be accurate

référence: RE78083

Makarska - Appartement moderne de deux pièces de 75 m2 NOUVELLE CONSTRUCTION

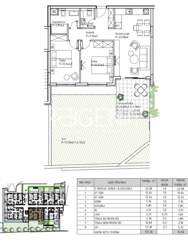
Nous servons d'intermédiaire dans la vente d'un appartement de deux pièces dans un nouveau bâtiment situé dans la magnifique Makarska. L'appartement est situé dans un excellent emplacement, à proximité de la mer, des commerces et de toutes les commodités nécessaires à la vie quotidienne. La superficie de l'appartement est de 74,66 m2 et il est situé au rez-de-chaussée de l'immeuble, et se compose d'un couloir d'une superficie totale de 7,76 m2, d'une salle de bain d'une superficie totale de 5,85, de toilettes supplémentaires d'une superficie totale de 2,31 m2, de deux chambres d'une superficie totale de 12,34 m2, 12,04 m2, d'un salon et d'une cuisine avec salle à manger d'une superficie totale de 22,98 m2, d'une loggia d'une superficie totale de 1,60 m2, d'une terrasse couverte de 1,89 m2, d'une terrasse non couverte d'une superficie totale de 2,18 m2 et d'un jardin d'une superficie totale de 5,72 m2. L'appartement comprend également une place de parking dans le garage qui n'est pas incluse dans le prix. Le prix d'une place de garage au premier étage est de 25 000 euros, tandis qu'au deuxième étage, il est de 22 500 euros. En raison de son orientation, cet appartement est rempli de lumière naturelle et offre la possibilité de profiter du soleil méditerranéen sur la terrasse spacieuse. L'appartement est entièrement climatisé et les salles de bains sont équipées d'un chauffage au sol, ce qui lui offre plus de confort. Cet appartement est une combinaison parfaite de confort et d'esthétique, vous offrant une maison où vous vous sentirez calme et à l'aise, et en raison de son emplacement, il est également idéal pour la location touristique. Découvrez l'atmosphère vivante de Makarska dans le confort de cet espace moderne et pratique !
Caractéristiques
Typologie
Appartement
Transaction
Vente
Étage
Rez-de-chaussée
Ascenseur
Oui
Chambres/pièces
2
Chambres
2
Bains/douches
3+
Terrasse
Non
Chauffage
Collectif, avec air, alimentation électrique
Autres caractéristiques
  • Piscine
Informations sur les prix
Prix
€ 283 408
Efficacité énergétique
  • État

    Nouveau / En construction
  • Chauffage

    Collectif, avec air, alimentation électrique
  • Certification énergétique

    En attente de certification
Plan
S8 - PRIZEMLJE0001
Découvrez chaque recoin de la propriété
+15
Options additionnelles

Contacter l'annonceur

Ou