Terreno edificabile in Vendita

€ 370.000
1.003 m²

Nota

Annuncio aggiornato il 13/02/2026
Descrizione

This description has been translated automatically and may not be accurate

riferimento: 111194-206

TERRENO EDILIZIO A 40 m DAL MARE + PROGETTO DI VILLA DI LUSSO E PISCINA

VINIŠĆE – TERRENO EDIFICABILE A 40 m DAL MARE + PROGETTO VILLA DI LUSSO CON PISCINA

Intermediamo la vendita di un attraente terreno edificabile di 1.003 m2 in una delle location più ambite di Vinišće – a soli 40 metri dal mare e a pochi minuti a piedi dalla spiaggia, negozi e ristoranti.
Vinišće è un tranquillo borgo dalmata situato in una pittoresca baia, noto per il mare cristallino, le spiagge di ciottoli e la natura incontaminata. È ideale per una vacanza familiare rilassante o per il turismo di lusso. Dista solo 20 minuti di auto da Trogir e circa 40 minuti da Spalato, rendendolo la combinazione perfetta tra privacy e vicinanza a tutti i servizi.

Il lotto è pianeggiante, di forma regolare (lunghezza circa 66,5 m, larghezza da 15 a 19 m), con accesso a strada asfaltata. Tutte le infrastrutture sono nelle immediate vicinanze.

Proprietà 1/1 – senza vincoli.
Permesso di costruzione per progetto di villa di lusso con piscina (piano terra + primo piano)
Vista mare – vicino al mare, ambiente tranquillo.

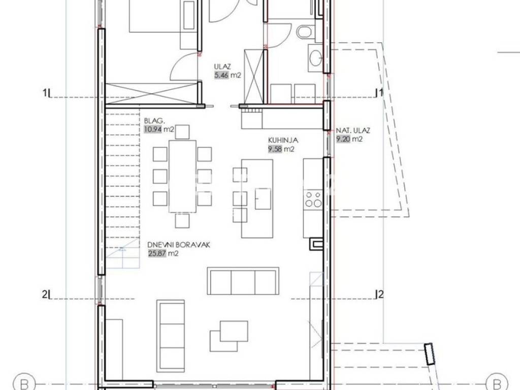
PROGETTO VILLA – PIANO TERRA + PRIMO PIANO

Piano terra:

- Ingresso coperto: 9,20 m2


- Ingresso: 5,46 m2


- Soggiorno open-space, sala da pranzo e cucina: 46 m2

- Soggiorno: 25,87 m2


- Sala da pranzo: 10,94 m2


- Cucina: 9,58 m2



- Camera da letto


- Bagno


- Terrazza coperta: 16,52 m2 e cucina estiva (2,24 m2)


- Grande piscina nel cortile



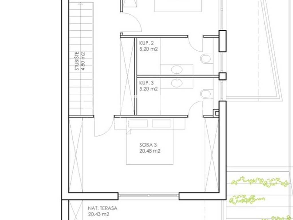
Primo piano:

- Camera 1: 13,20 m2 + bagno 5,70 m2


- Camera 2: 12,30 m2 + bagno 5,20 m2 + uscita su terrazza coperta di 11,40 m2 con vista mare


- Camera 3: 20,48 m2 + bagno 5,20 m2 + uscita su terrazza coperta di 20,43 m2 con splendida vista mare



(Le immagini della villa sono rendering illustrativi – l’oggetto della vendita è il terreno con progetto e permesso di costruzione ottenuto.)

Commissione d’Agenzia:

L’acquirente paga una commissione d’agenzia del 2% + IVA sul prezzo di vendita concordato. Questa commissione include tutte le fasi necessarie per una compravendita sicura e veloce, compresi i costi per la redazione del preliminare e/o del contratto di compravendita, i costi per la loro autenticazione presso il notaio e la trascrizione del diritto di proprietà sull’immobile.

Politica Aziendale:

Organizziamo la visita dell’immobile solo dopo che il cliente ha firmato una dichiarazione di visita, garantendo trasparenza e tutela degli interessi di tutte le parti, e offriamo esclusività e discrezione nella presentazione di questo immobile unico.

Per ulteriori informazioni e per fissare una visita, vi preghiamo di contattarci via e-mail:

E-mail: jurica.pazanin@c21.hr

Jurica Pažanin
Il vostro agente immobiliare autorizzato
Caratteristiche
Contratto
Vendita
Tipologia
Terreno edificabile
Superficie
1.003 m²
Informazioni sul prezzo
Prezzo
€ 370.000
Prezzo al m²
369 €/m²
Scopri ogni angolo dell'immobile
+6
Opzioni aggiuntive

Contatta l'inserzionista

Oppure