Terreno edificabile in Vendita

€ 590.000
748 m²

Nota

Annuncio aggiornato il 20/02/2026
Descrizione

This description has been translated automatically and may not be accurate

riferimento: ZG2230

VODICE – TERRENO EDIFICABILE 748 m² CON PERMESSO DI COSTRUIRE DEFINITIVO, POSIZIONE TOP!

In vendita terreno edificabile di alta qualità di superficie 748 m2 in una delle migliori posizioni a Vodice. Opportunità ideale per investitori – il terreno dispone di permesso di costruzione definitivo per la realizzazione di un edificio moderno con 4 unità abitative e terrazza sul tetto, e i allacciamenti alle utenze sono direttamente sul terreno (acqua, elettricità), il che accelera notevolmente l'inizio dei lavori di costruzione.

POSIZIONE

- a soli 200 m dalla spiaggia recentemente ristrutturata Vodice – Tribunj


- 1000 m dal centro di Vodice


- zona tranquilla, micro posizione eccellente


- vicinanza alla spiaggia, al lungomare e a tutti i servizi



PROGETTO – COSTRUZIONE APPROVATA

L’edificio è previsto su 4 piani:

PIANO TERRA

- Appartamento S1 – monolocale, 44,95 m2


- Appartamento S2 – bilocale, 64,45 m2



PRIMO PIANO

- Appartamento S3 – trilocale, 102,23 m2



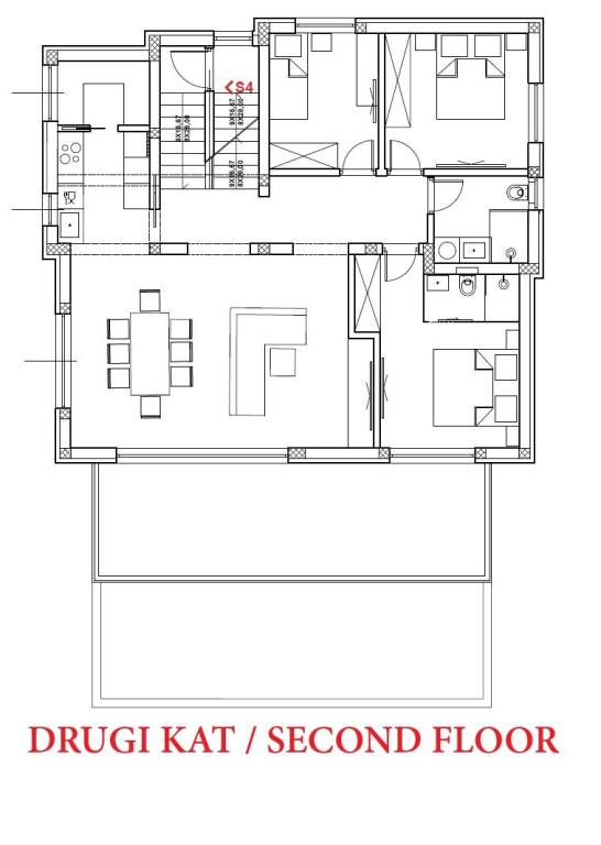
SECONDO PIANO

- Appartamento S4 – trilocale, 104,07 m2



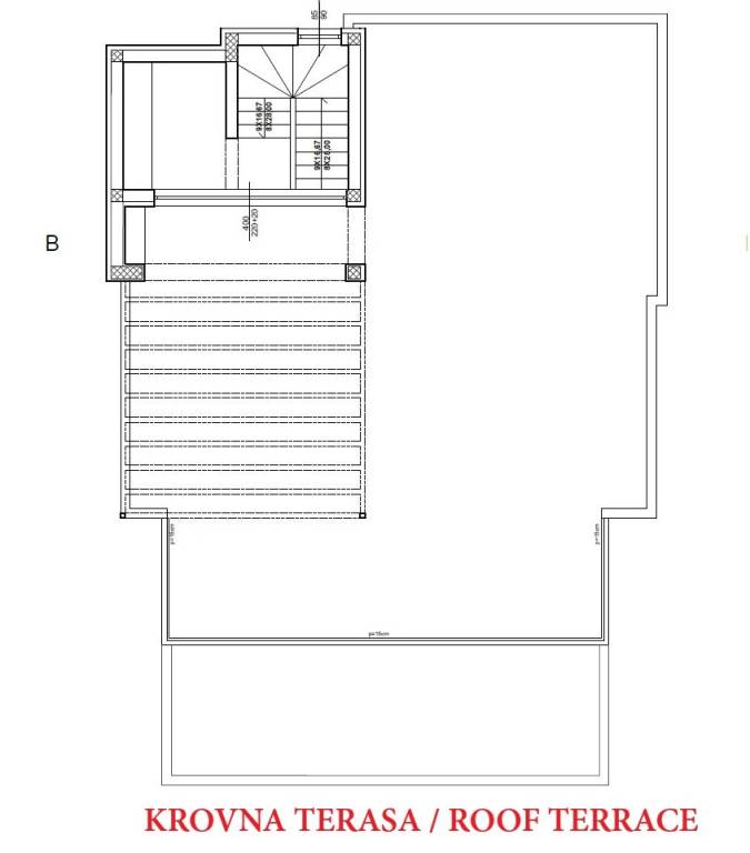
PISOLO SUL TETTO

- ampia terrazza sul tetto di 126,66 m2, di pertinenza dell’appartamento S4


- ideale per jacuzzi, solarium o zona lounge



INOLTRE

- 6 posti auto


- allacciamenti alle utenze sul terreno (pronto per costruzione)


- progetto architettonico moderno, ideale per appartamenti di lusso
Caratteristiche
Contratto
Vendita
Tipologia
Terreno edificabile
Superficie
748 m²
Altre caratteristiche
  • Allaccio acqua
  • Allaccio elettricità
Informazioni sul prezzo
Prezzo
€ 590.000
Prezzo al m²
789 €/m²
Planimetria
Scopri ogni angolo dell'immobile
+4
Opzioni aggiuntive

Contatta l'inserzionista

Oppure