map icon

Trilocale nuovo, primo piano, Parenzo

Parenzo
€ 278.000
3
69 m²
1
1

Nota

Annuncio aggiornato il 02/05/2026
Descrizione

This description has been translated automatically and may not be accurate

riferimento: 1136

Appartamento non lontano dal centro città e dal mare

Parenzo, Istria, Parenzo

È in vendita un appartamento in un nuovo edificio. L'appartamento è situato al primo piano della palazzina, su un totale di 4 appartamenti.
Una scala esterna conduce al primo piano.

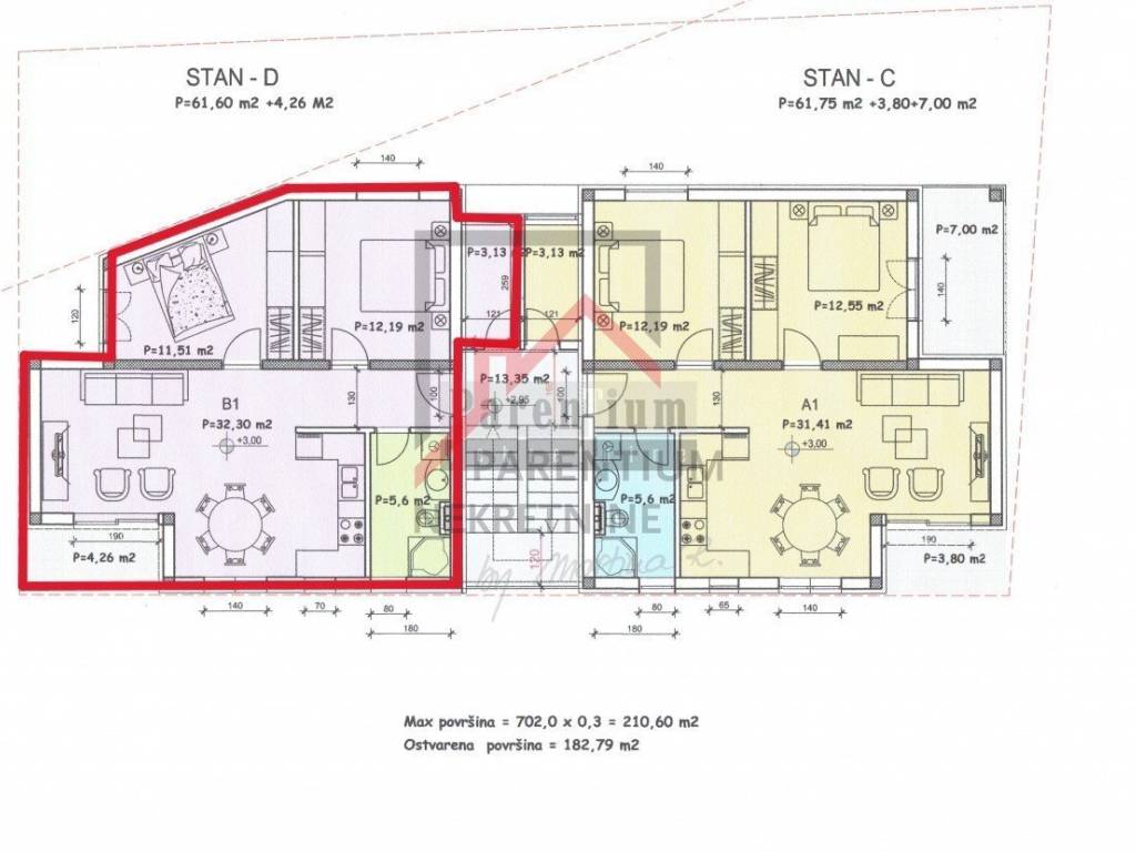
L'appartamento D, 69m2, si trova al primo piano di un edificio residenziale. L'appartamento è composto da un corridoio, due camere da letto, un bagno e una cucina con sala da pranzo e soggiorno. Dal soggiorno si accede ad un terrazzo di 4,26 mq. L'appartamento dispone di un ripostiglio di 3 mq.

L'appartamento sarà riscaldato tramite pompa di calore in due camere da letto e nel soggiorno.

Ceramiche italiane di qualità saranno posizionate sul pavimento, in tutto l'appartamento. In questa fase di costruzione, i clienti possono ancora scegliere la ceramica che preferiscono.
La carpenteria sarà in PVC con tapparelle elettriche.

L'appartamento dispone di un posto auto.

Il completamento dell'edificio è previsto per marzo 2026.

L'acquirente NON paga l'imposta sulla vendita degli immobili, perché il venditore è una persona giuridica. Nel caso in cui una persona giuridica acquisti un appartamento, l'acquirente è esente dal pagamento dell'IVA nella misura del 25%.
Appartamento D
Caratteristiche
Tipologia
Appartamento
Contratto
Vendita
Piano
1 piano
Piani edificio
1
Superficie
69 m²
Locali
3
Bagni
1
Box, posti auto
1 posto auto
Informazioni sul prezzo
Prezzo
€ 278.000
Prezzo al m²
4.029 €/m²
Efficienza energetica
  • Anno di costruzione

    2025
  • Stato

    Nuovo / In costruzione
  • Certificazione energetica

    Non classificabile
Scopri ogni angolo dell'immobile
+20
Opzioni aggiuntive

Contatta l'inserzionista

Oppure