map icon

Appartamento primo piano, Fasana

Fasana
€ 284.000
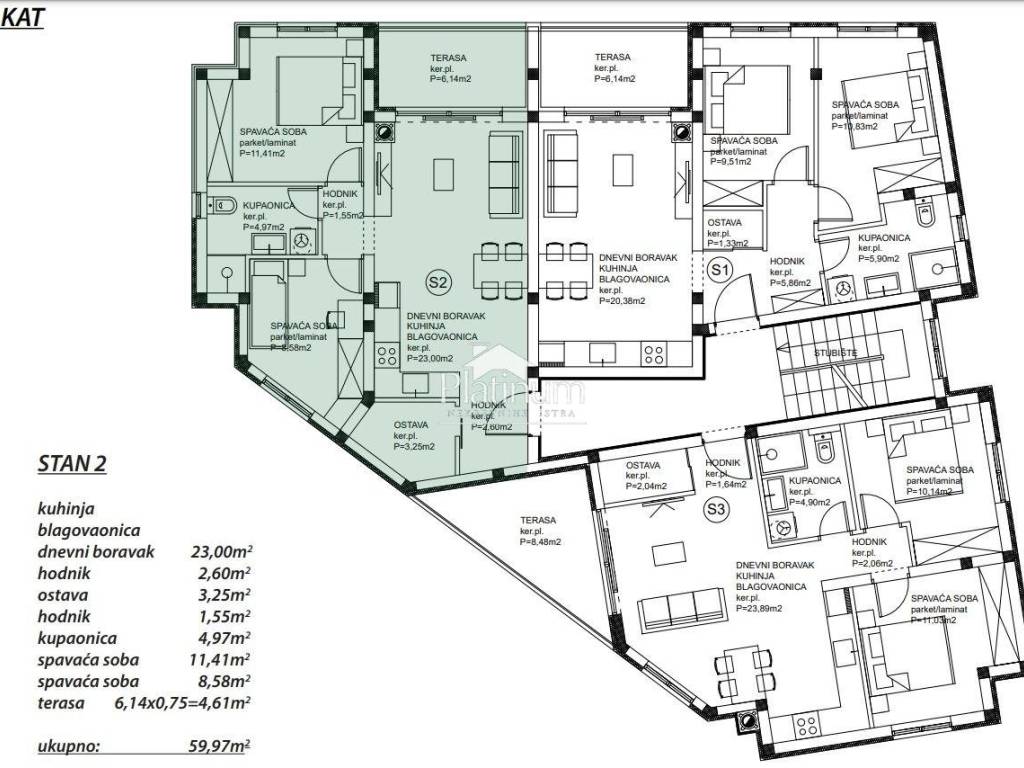
60 m²
1
1

Nota

Annuncio aggiornato il 24/02/2026
Descrizione

This description has been translated automatically and may not be accurate

riferimento: 3095

ISTRIA, FAŽANA PEROJ, NUOVI APPARTAMENTI IN ULTERIORE POSIZIONE CON GARAGE


ISTRA FAŽANA PEROJ Vendiamo appartamenti al 1 e 2 piano con annessi garage (16m2-25m2). Gli appartamenti misurano 59 m2 e 60 m2 e sono composti da corridoio, bagno, soggiorno, cucina con zona pranzo e una comoda terrazza con vista sul mare. vendiamo bellissimi appartamenti in costruzione in ottima posizione. L'edificio è composto da soli 6 bellissimi appartamenti costruiti con una qualità molto elevata, i materiali di costruzione sono di altissimo livello. Tutti gli appartamenti sono dotati di riscaldamento a pavimento integrato e aria condizionata inverter per il riscaldamento e il raffreddamento. La possibilità di scegliere l'installazione dei materiali del pavimento (laminato e piastrelle di 1a classe). Porta antieffrazione del marchio DIERRE. Tapparelle elettriche su tutte le finestre. A 500 METRI DAL MARE!!! Completamento della costruzione alla fine del 2025. PREZZO CON IVA ACCETTIAMO PRENOTAZIONI INFO ALLO 00385911608456
Caratteristiche
Tipologia
Appartamento
Contratto
Vendita
Piano
1 piano
Superficie
60 m²
Bagni
1
Box, posti auto
1 in box privato/box in garage
Informazioni sul prezzo
Prezzo
€ 284.000
Prezzo al m²
4.733 €/m²
Efficienza energetica
  • Certificazione energetica

    Non classificabile
Scopri ogni angolo dell'immobile
+15
Opzioni aggiuntive

Contatta l'inserzionista

Oppure