1/4


Terreno edificabile in Vendita
€ 154.000
Annuncio aggiornato il 16/01/2026
Descrizione
riferimento: ZG2247
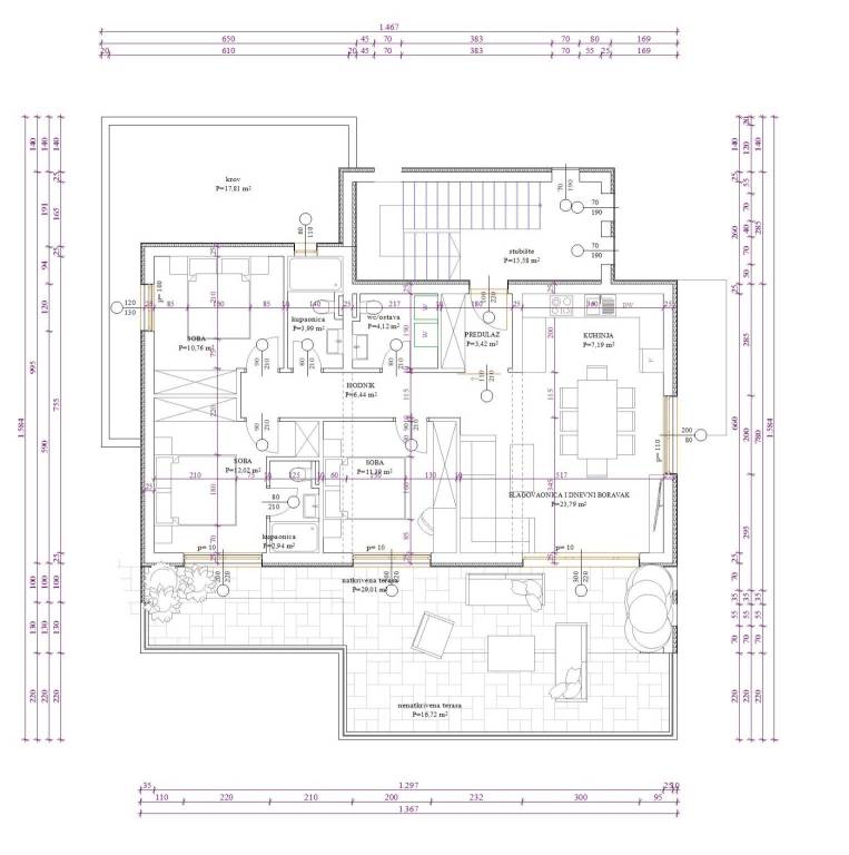
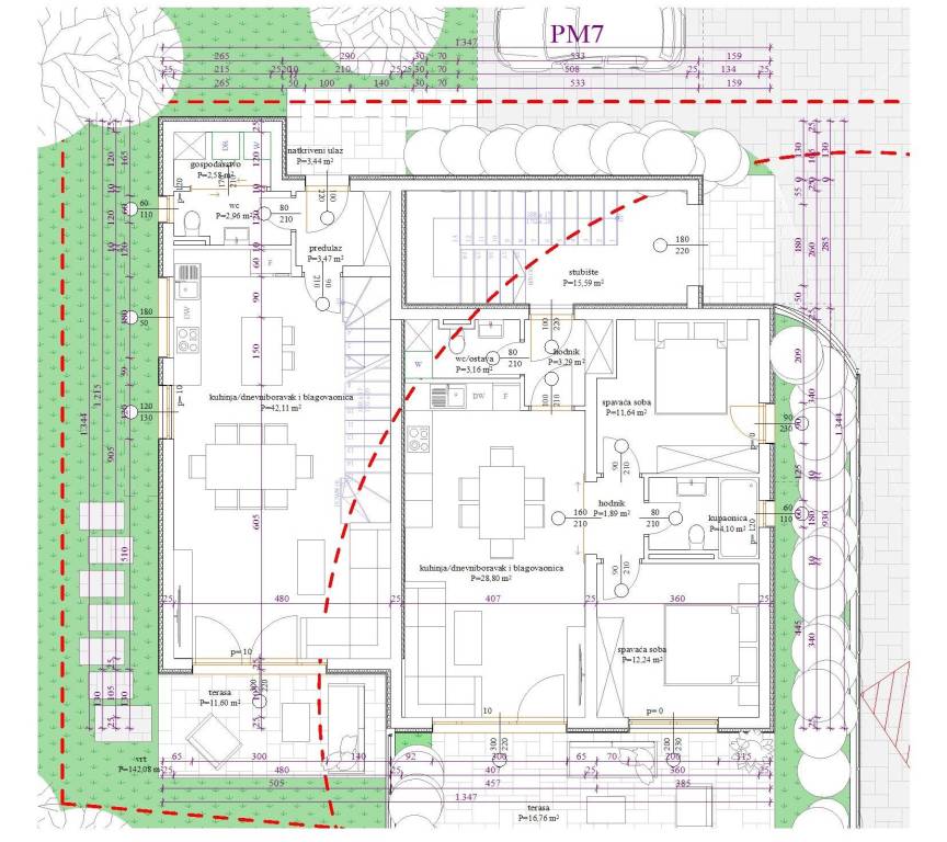
Vodice- prodaje se zemljište površine 701 m2, pravilnog oblika približno 30x23, sa projektnom dokumentacijom za zgradu sa 4 stambene jedinice.
prizemlje = dvosoban stan S1 - 58 m2 sa pripakom vrta i 1 parkirno mjesto,
prizemlje + kat = dvoetažni stan S2 - površine 108.60 m2 sa pripatkom vrta, terase i parkirno mjesto ( ukupno netto 120 m2)
I KAT= stan s3 -površine 74,82 m2
II KAT = S4- površine 104.75 m2
- Kupac na ovu nekretninu ne plaća agencijsku proviziju.
Caratteristiche
- Contratto
- Vendita
- Tipologia
- Terreno edificabile
- Superficie
- 701 m²
Informazioni sul prezzo
- Prezzo
- € 154.000
- Prezzo al m²
- 220 €/m²
Scopri ogni angolo dell'immobile
Opzioni aggiuntive