Villa a schiera 4 locali, Odra, Zagabria

€ 295.000
4
101 m²
2

Nota

Annuncio aggiornato il 19/04/2026
Descrizione

riferimento: 206

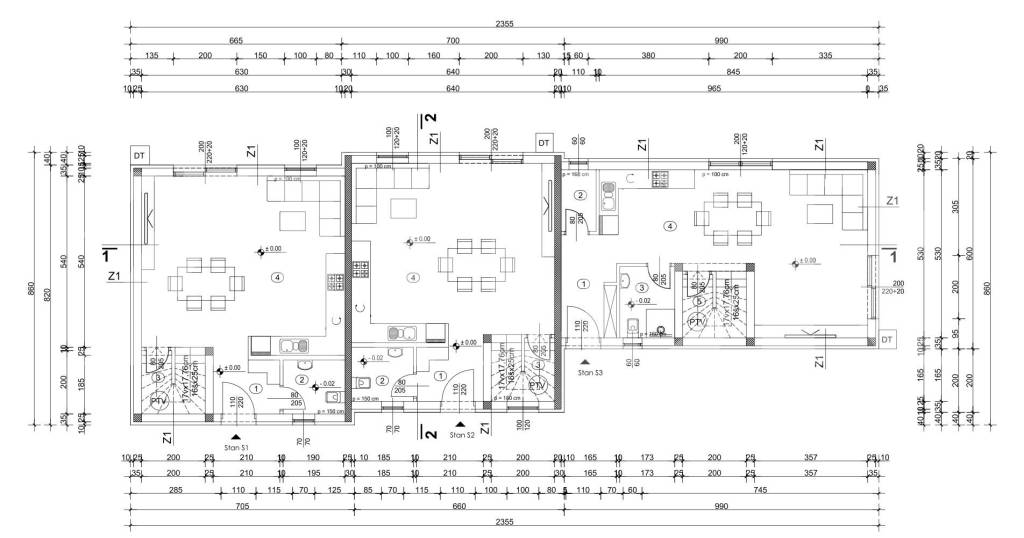
Prodaju se tri kuće u nizu u izgradnji, planirano useljenje 10/2026 g.
Kuće se sastoje od prizemlja u kojem se nalazi ulazni hodnik, spremište, dnevni boravak s kuhinjom i blagavaonicom, wc-a/kupaonice, a na katu se nalaze tri spavaće sobe i kupaonica.
Kuća S1 - PRODANO
Kuća S2 - 90,33 m2 + vrt 48 m2 + 2 parkirna mjesta = 295.000 eur
Kuća S3 - PRODANO
Oprema : podno grijanje preko dizalica topline, PVC stolarija s troslojnim staklom i komarnicima, klima uređaj.
Objekt se nalazi na odličnoj lokaciji u samom centru Hrašća Turopoljskog, 1 km udaljen od
autoputa Zagreb -Sisak i zagrebačke obilaznice, šoping centar Super Nova udaljen cca
1,5km, odlična veza sa zračnom lukom Franjo Tuđman i Velikom Goricom.
Autobusna stanica na 400 m, sa ZET linijom cca svakih 15 minuta prema Glavnom Kolodvoru u ZG, brza željeznica cca 400m - vlak vozi 10 minuta do Glavnog kolodvora.
U blizini škole, dječijeg vrtića ljekarne i trgovine.
Za sve informacije nazovite 098/359876
ZIHERAgencija za posredovanje u prometu nekretninama
Caratteristiche
Tipologia
Villa a schiera
Contratto
Vendita
Piano
Su più livelli
Superficie
101 m²
Locali
4
Camere da letto
3
Bagni
2
Riscaldamento
Autonomo, ad aria, alimentato a pompa di calore
Altre caratteristiche
  • Infissi esterni in vetro / PVC
Informazioni sul prezzo
Prezzo
€ 295.000
Prezzo al m²
2.921 €/m²
Dettaglio dei costi
Spese condominio
Nessuna spesa condominiale
Efficienza energetica
  • Anno di costruzione

    2026
  • Riscaldamento

    Autonomo, ad aria, alimentato a pompa di calore
  • Certificazione energetica

    Non classificabile
Planimetria
Zagreb, Novi Zagreb - zapad
Zagreb, Novi Zagreb - zapad
Zagreb, Novi Zagreb - zapad
Scopri ogni angolo dell'immobile
+4
Opzioni aggiuntive

Contatta l'inserzionista

Oppure