Trilocale Kantrida, Rijeka, Turan - Kantrida - Costabella, Fiume

€ 1
3
87 m²
1
1
Terrazzo

Nota

Annuncio aggiornato il 24/02/2026
Descrizione

This description has been translated automatically and may not be accurate

riferimento: 5869

KANTRIDA, APPARTAMENTO IN NUOVA COSTRUZIONE

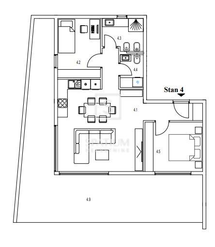
KANTRIDA, proponiamo un appartamento con due camere da letto in un eccellente edificio di nuova costruzione. L'appartamento è composto da un corridoio, due camere da letto, un bagno, un WC, un soggiorno con cucina e sala da pranzo, e dispone di due posti auto in garage e un ripostiglio. Tutte le camere hanno accesso a un'ampia terrazza. Una disposizione semplice e uno spazio ben sfruttato, nonché un ambiente tranquillo e verde sono i vantaggi di questa proprietà, così come un ascensore che conduce dal garage all'ingresso dell'appartamento. L'appartamento ha una superficie di 62,10 m², una terrazza di 42 m². Ci sono due posti auto in garage, ciascuno di 13,50 m², mentre il ripostiglio è di 1,90 m². L'edificio è in cemento armato, ben costruito e attrezzato. Gli infissi esterni sono una combinazione di alluminio e legno, con zanzariere e motori elettrici. I pavimenti sono in parquet di rovere o ceramiche italiane di prima qualità, e anche i sanitari sono di rinomati produttori. Il riscaldamento è a pavimento tramite una pompa di calore Mitsubishi, mentre ogni camera e la zona giorno sono dotate di aria condizionata dello stesso produttore. Posizione eccellente e tranquilla, circondata da case familiari, vicino a tutti i servizi necessari, a pochi minuti a piedi dalla prima spiaggia e a pochi minuti di auto dal centro di Fiume e Abbazia. Cantrida (Cantrida - Borgomarina in italiano) è un quartiere nella parte occidentale di Fiume, e comprende Kostanda e Marčeljeva Draga (e alcune località più piccole). Cantrida (sedia) prende il nome dalla cava utilizzata per costruire il porto di Fiume, che assomiglia a una sedia gigante. Per ulteriori informazioni, non esitate a contattarci con fiducia. Azalea Kegalj Agente autorizzato +385 95 905 5464 azalea@spatium.hr Spatium nekretnine +385 51 272 903 info@spatium.hr

ID CODE: 5869

Azalea Kegalj
Agent s licencom
Mob: +385 95 905 5464
Tel: +385 51 272 903
E-mail: azalea@spatium.hr
www.spatium.hr
Caratteristiche
Tipologia
Appartamento
Contratto
Vendita
Piano
1 piano
Piani edificio
2
Ascensore
Superficie
87 m²
Locali
3
Camere da letto
2
Bagni
1
Balcone
No
Terrazzo
Box, posti auto
1 in box privato/box in garage, 2 posto auto
Riscaldamento
Autonomo, ad aria
Climatizzazione
Autonomo, freddo/caldo
Informazioni sul prezzo
Prezzo
€ 1
Prezzo al m²
0 €/m²
Efficienza energetica

Consumo di energia

A+

Scopri ogni angolo dell'immobile
+7
Opzioni aggiuntive

Contatta l'inserzionista

Oppure